复古棕榈
作品详情
  • Details of the work 标题横线
    头像或者logo
    图片 何静 南京云上设计师俱乐部特约推荐
    城市:南京
    公司: 南舍空间设计
    参赛作品: 复古棕榈
    空间类型:公寓(150㎡以下)
    个人/公司简介:
    设计理念:物物而不物于物
    设计说明 | Design Instruction
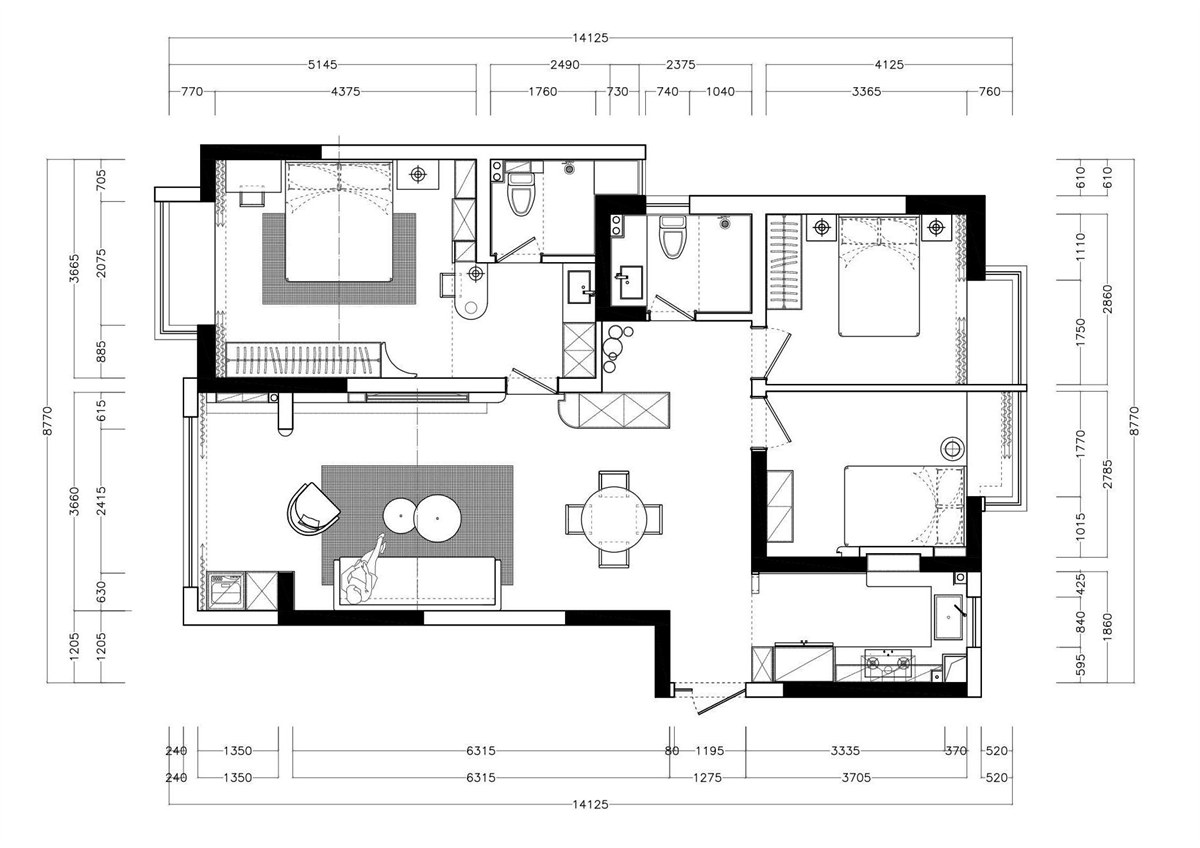
  • 项目位于星叶瑜憬湾,建筑面积121平,女主人是位可爱的手作面包烘培师,居家时间较多且酷爱健身。对厨房与公共空间的交流性要求较高。所以我们尽可能得打开了厨房空间并留白一面墙体供后期业主添置洞洞板补充储物。 女主晨间会直播跳操,因此动、静区域我们利用电视背景与餐边柜相结合,划分得非常明确。再通过材质与色块的不同来分割整面背景墙比例。 风格上我们利用罗马柱、虎头石膏线条、复古小花砖以及胡桃木色的木作来强调复古浪漫的基调。并给主卧室设计了一款“独一无二”的洞洞板隐形门来增添空间的趣味性。女主也非常喜欢空间设计上的“小心思”,并十分配合。 设计回归于生活,落地时就已经可以想像业主住进去的模样......两人一狗,三餐四季,闲暇之余,坐看云卷云舒,慵懒且浪漫。
  • 图片
  • 图片
  • 图片
  • 图片
  • 图片
  • 图片
  • 图片
  • 图片
  • 图片
  • 图片
  • 图片
  • 图片
  • 图片
  • 图片
  • 图片
  • 图片
  • 上一个 下一个
    《金腾奖优秀作品年鉴》 私宅丨地产丨餐饮丨酒店丨办公丨商业丨公共丨产品丨公益丨人气 jintengAWARD(小金_金腾奖组委会) 广州市海珠区琶洲大道68号华新中心21楼
    金腾奖视频号 金腾奖小红书号 监制:闫虹
    统筹:吴佳佳
    运营:朱倩仪 王赫萱 张芷莹 胡岚恩 小金
    新媒体:王贝贝 严洁 侯乐 鹅姐
    经纪:刘译遥 石征 曹凯月
    技术:张桐 黄天佑
    最终解释权归金腾奖主办方所有