JIAN·SU
作品详情
  • Details of the work 标题横线
    头像或者logo
    图片 顾伟
    城市:南京
    公司: 南京龙瑞装饰设计工程有限公司
    参赛作品: 简·塑
    空间类型:公寓(150㎡以下)
    个人/公司简介:
    2022-2023 “星空间”杯银奖 2022 40 UNDER 40中国(江苏)设计杰出青年 (2022-2023) 2022 40 UNDER 40中国(南京)设计杰出青年 (2022-2023) 2021-2022 芒果奖-中国别墅优胜奖 2021 40 UNDER 40中国(江苏)设计杰出青年 (2021-2022) 2021 40 UNDER 40中国(南京)设计杰出青年 (2021-2022) 2020 40 UNDER 40中国(江苏)设计杰出青年 (2020-2021) 2021 DESIGN FOCUS 国际空间设计大奖度别墅豪宅空间设计大奖 2020 国际环艺创新设计 办公空间类 金奖 2019 金住奖一中国(南京)十大居住空间设计师 2019 德国高仪•中国住宅设计精英榜优秀奖 2019 芒果奖&最佳别墅设计奖 2018 "A'DESIGN AWARD" IRON AWARD 2018 中国装饰设计奖(CBDA设计奖)公寓、别墅空间工程类银奖 2018 江苏省第十三届室内装饰设计大奖赛二等奖 2018 江苏省室内设计协会“拾朝杯”金奖 2017-2018 年度国际环艺创新设计作品大赛别墅豪宅空间类 金奖 2018“金堂奖”年度优秀别墅设计 2018 第六届中国装饰设计奖 银奖 2018 第12 届大金内装设计大赛江苏地区美宅设计 别墅组铜奖 2018 第九届国际空间设计大奖-艾特将南京赛区 铜奖 2018 星河 •第三空间“DS大奖”别墅空间设计奖 2018"AI DESIGN AWARD"设计优胜奖 2018 法国双面神 “GPDP AWARD”国际设计大奖 提名奖 2017 “永隆•星空间杯”室内设计大赛优秀奖 2017 芒果奖&十间坊晋级奖 2017 第11届大金内装设计大赛江苏赛区空间设计奖 2017 “赛唯雅卫浴杯”南京室内设计大奖赛(实景类、方案类)优秀奖 2017 ldea-Tops 国际空间设计大奖(艾特奖)入围奖 2016 年度ldea-Tops 国际空间设计大奖(艾特奖)入围奖 2016 “赛唯雅卫浴杯”南京室内设计大奖赛三等奖 2016 “赛唯雅卫浴杯”南京室内设计大奖赛优秀奖 2015 第九届大金内装设计大赛江苏地区美宅设计-公寓组 银奖 2015 “雷士杯”全国设计大赛江苏赛区 优秀奖 2015 华耐新中源杯南京室内设计大奖赛优秀奖 .....
    设计说明 | Design Instruction
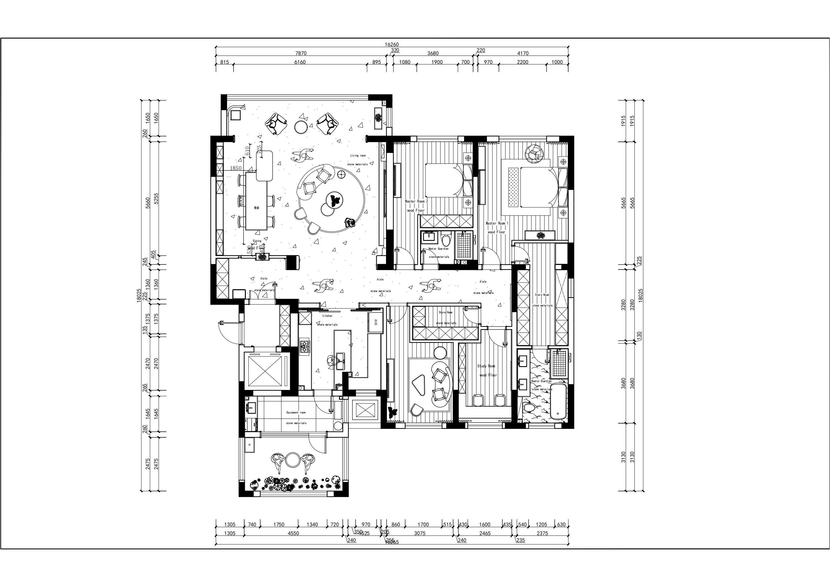
  • 本案为侘寂风格的别墅方案设计。整体设计中,通过材料的运用来体现侘寂的质感,从而选择了艺术涂料这个目前比较流行的材料。墙面、顶面均统一使用了这个。使得整体的空间充满延伸感。适当的绿植搭配是的氛围感到位。 后面的软装搭配则是以舒适为主题进行搭配,在侘寂的空间感下,舒适的软装使得空间更加质朴。 在空间设计方面,将原有的公卫改造拆除给与厨房合并使得厨房整体扩大,增加了空间的延伸感,其次搭配了门厅的弧形造型设计相辅相成。整体的客厅结合阳台内阔,使得室内室外融为一体,更加体现人与自然的相结合。也衬托了侘寂的质朴的内在含义。
  • 图片
  • 图片
  • 图片
  • 图片
  • 图片
  • 图片
  • 图片
  • 图片
  • 图片
  • 图片
  • 图片
  • 图片
  • 图片
  • 图片
  • 图片
  • 图片
  • 图片
  • 上一个 下一个
    《金腾奖优秀作品年鉴》 私宅丨地产丨餐饮丨酒店丨办公丨商业丨公共丨产品丨公益丨人气 jintengAWARD(小金_金腾奖组委会) 广州市海珠区琶洲大道68号华新中心21楼
    金腾奖视频号 金腾奖小红书号 监制:闫虹
    统筹:吴佳佳
    运营:朱倩仪 王赫萱 张芷莹 胡岚恩 小金
    新媒体:王贝贝 严洁 侯乐 鹅姐
    经纪:刘译遥 石征 曹凯月
    技术:张桐 黄天佑
    最终解释权归金腾奖主办方所有