ERYA
作品详情
  • Details of the work 标题横线
    头像或者logo
    图片 张霞
    城市:成都
    公司: 成都宏福樘设计
    参赛作品: 尔雅
    空间类型:公寓(150㎡以下)
    个人/公司简介:
    “生活即设计,懂生活才能更懂设计”是张霞一直坚持的创作理念,她一直认为只有不满足表象,不随波逐流,用独特的视角去挖掘屋主的情绪与温度,才是设计师的价值所在。 我们一直认为设计不像体育竞技有绝对的标尺来衡量。它是一种综合了美学与艺术范畴的灵感创作,是一个审美并且创造美的过程。 2022寻找国民好设计阿里巴巴每平每屋设计国民好设计TOP300 2022 TINTA金邸奖优胜奖 2022第22届成都建筑装饰设计奖银奖 2022第十二届中国国际空间设计大赛居住空间工程类铜奖 2022好好住&营造家 FUTURE私宅坐标人物TOP50 2022 40UNDER40中国(成都)设计杰出青年 2022金案奖全国优胜奖 2022 室内设计联盟年度佳作评选年度佳作 TOP 502021亚洲软装风尚大奖优胜奖 2021中国家装设计百强人物 2021 ICS国际色彩空间 年度优秀色彩空间设计奖 2021 Rayli瑞丽轻奢生活空间最佳设计奖 2021 40 UNDER 40中国(省区)设计杰出青年 2021 百度馨居奖 大户型年度十佳奖 2021 木兰奖十佳住宅空间 2020 私宅设计·年度TOP100作品奖 2020 私宅设计·城市榜成都TOP10设计师 2020 私宅设计·全国TOP100杰出设计师 2020 CIFF广州 · 设计千人计划年度人物奖 2020 银杏金鸟奖 2020 住小帮年度金牌设计师 2020 金堂奖年度杰出住宅公寓空间 2020 PChouse Award私宅设计大奖城市榜BEST10 2020好好住营造家西南赛区top100 2020一兜糖最有温度设计作品TOP100 2020瑞丽无界轻奢生活方式最佳大宅设计奖 2020芒果奖&十间坊中国住宅创意奖 2020金住奖十大居住空间设计师 2020红棉中国设计室内设计奖 2020 40 UNDER 40中国(省区)设计杰出青年 2020她设计年度优秀空间设计奖 2020我要去米兰设计大赛青年榜网络人气TOP10 2019幸福家设计大赛优秀设计师 2019设计本「这就是设计」年度最佳居住空间奖 2019 IDF“为中国设计发声”精英人物 2019 IFI 中国家装设计百强人物 2019 IFI 中国家装设计百强机构 2019好好住&营造家奖最佳人气设计机构奖 2019中国(成都)十大居住空间设计师-金住奖 2019芒果奖&十间坊中国住宅优胜奖 2019好好住「营造家奖」西南赛区TOP20 2019红棉奖年度优秀雅奢空间设计 2019第七届Hi-Design室内设计大赛优秀奖 2019第七届Hi-Design室内设计大赛团体奖 2019 40UNDER40中国(省区)设计杰出青年 2019第六届芒果奖优秀作品奖2019第九届筑巢奖金奖提名奖 2019 M+中国高端室内设计大赛全国城市赛区TOP奖 2019德国高仪中国住宅设计精英榜全国优秀创意奖全国20强 2018金堂奖年度优秀住宅公寓设计 2018第九届国际空间设计艾特奖最佳住宅建筑设计 2018中国设计年度人物年度最佳设计机构 2018一兜糖年度糖粉力荐人气奖 2018第四届金瓦奖年度优秀设计作品 2018 40UNDER40荣获中国(省区)设计杰出青年 2018中国新地产设计大会年度优秀公寓设计师全国十强 2018 M+中国高端室内设计大赛年度优秀设计师 2018芒果奖&十间坊中国住宅优胜奖 2018我要去米兰中国设计力青年榜TOP100晋级 2018年度艾舍奖住宅建筑设计金奖 2018红棉奖最美雅奢空间设计奖优秀雅奢空间设计 2017芒果奖陈设艺术设计优秀作品奖 2017芒果奖&十间坊芒果十间坊晋级 2017年度艾舍奖陈设艺术设计优秀作品奖
    设计说明 | Design Instruction
  • 设计说明 该案是为四口之家打造,夫妻二人和两个女儿,主题围绕着家人和陪伴延展。一楼规划为开放的多功能公区,2楼为私密空间,将两间卧室拆分为三间。创造出一个既符合屋主生活习惯和审美偏好,又充满趣味和包容性的居住空间。 结构:该案多处运用互相呼应的材质让不同体块的厨房柜体变得不再呆板,并带来准确的秩序。同时以垂直对称、纵深弧线形的设计手法成属于这间居所的独特语言。 尤其是餐厅部分设计,空间前后形成多种虚实关系,利用凸显与隐后的设计手法将餐厅展示柜以悬空的视觉方式呈现,给人以轻盈之感。 软装:以极简形态、低饱和色彩、现代解构元素构成视觉主体。由不同形状的极简单体组成(banlan沙发、茶几,coconordic fred沙发椅、togo单人沙发)分出区域与高度层次。 材质:重视触感与质感,利用更经久耐用的岩板、皮革、大理石来替代浮华的装饰,形成连续的、有机的空间系统。同时注重体现多元化又独立的单品挑选,将生活品质向上发展。木饰材质贯穿玄关与餐厅空间,作为视觉延伸,形成整体的框架结构。 色彩:以暖白、沙茶、雾霾灰为空间主色调,融入抹茶绿、暗夜黑做局部点缀,去掉过于用力会产生的繁杂效果,打造出更符合屋主的空间感染力。 质感:无论是选择家具或是衣物,统一都会选择更精简、经典的款式遵循LESS IS MORE的原则青睐简洁、质感的材质和开放、独立的功能。故全屋均选择Bonaldo 、Flos 、coconordic、togo等品牌经典原单,营造出更具沉浸式的舒适享受。 改造说明: 一楼 ❶ 扩充厨房空间,打造开放式厨房 ❷ 生活阳台一分为二,部分纳入客厅,迎光入室。部分独立设备区,满足功能需求 ➌ 楼梯间视野较窄,反向改造楼梯方向,扩大梯间视野的同时扩大公卫空间 二楼 ❶ 重新划分面积,将原始主卧面积整理为主卧+儿童房A空间 ❷ 因功能需求,满足三区分离即可,原始主卫一分为二,满足主卫及次卫两卫功能使用 ➌ 原始次卧套房(卫生间+卧室),合二为一为儿童房B空间,满足起居+学习功能
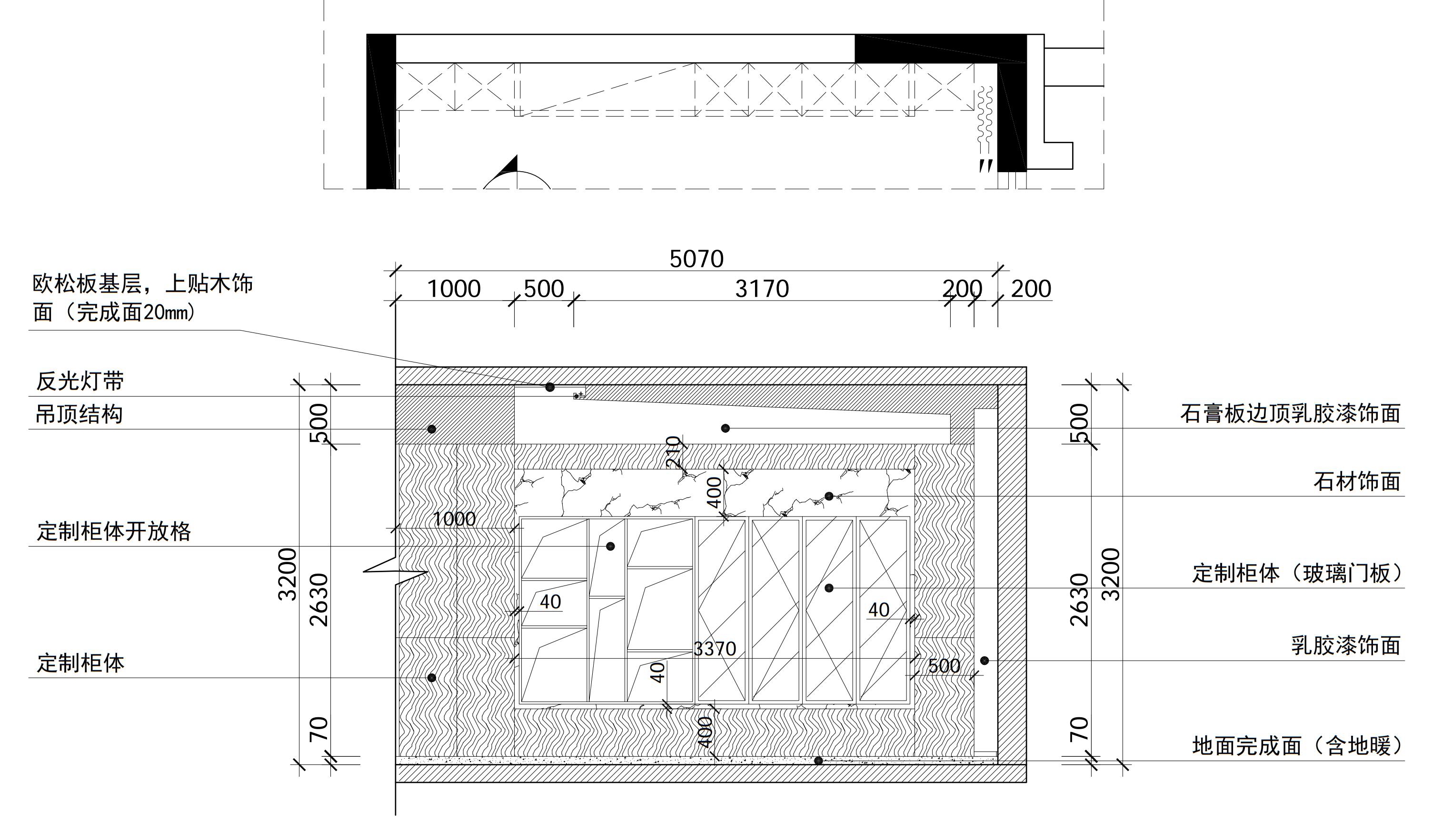
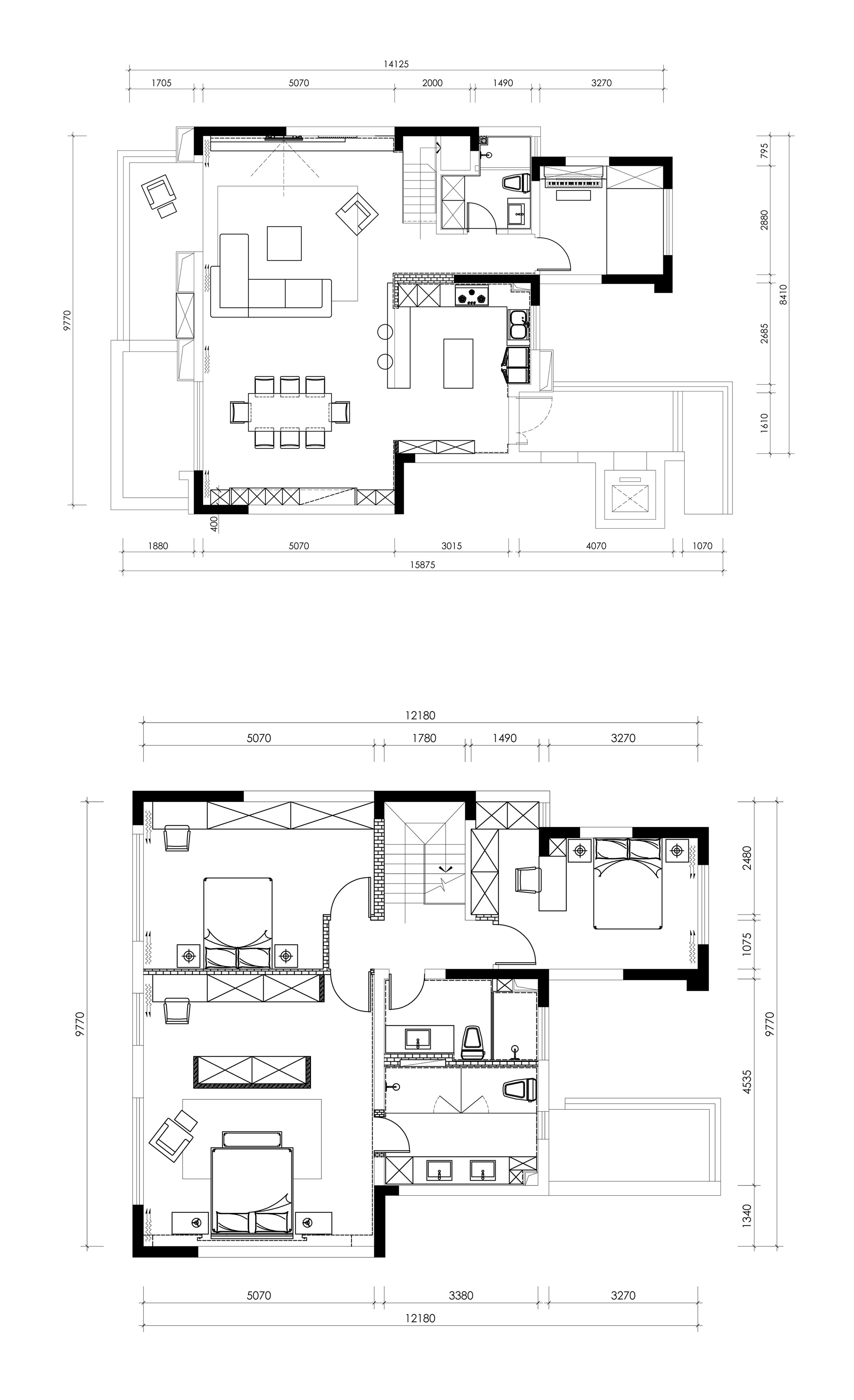
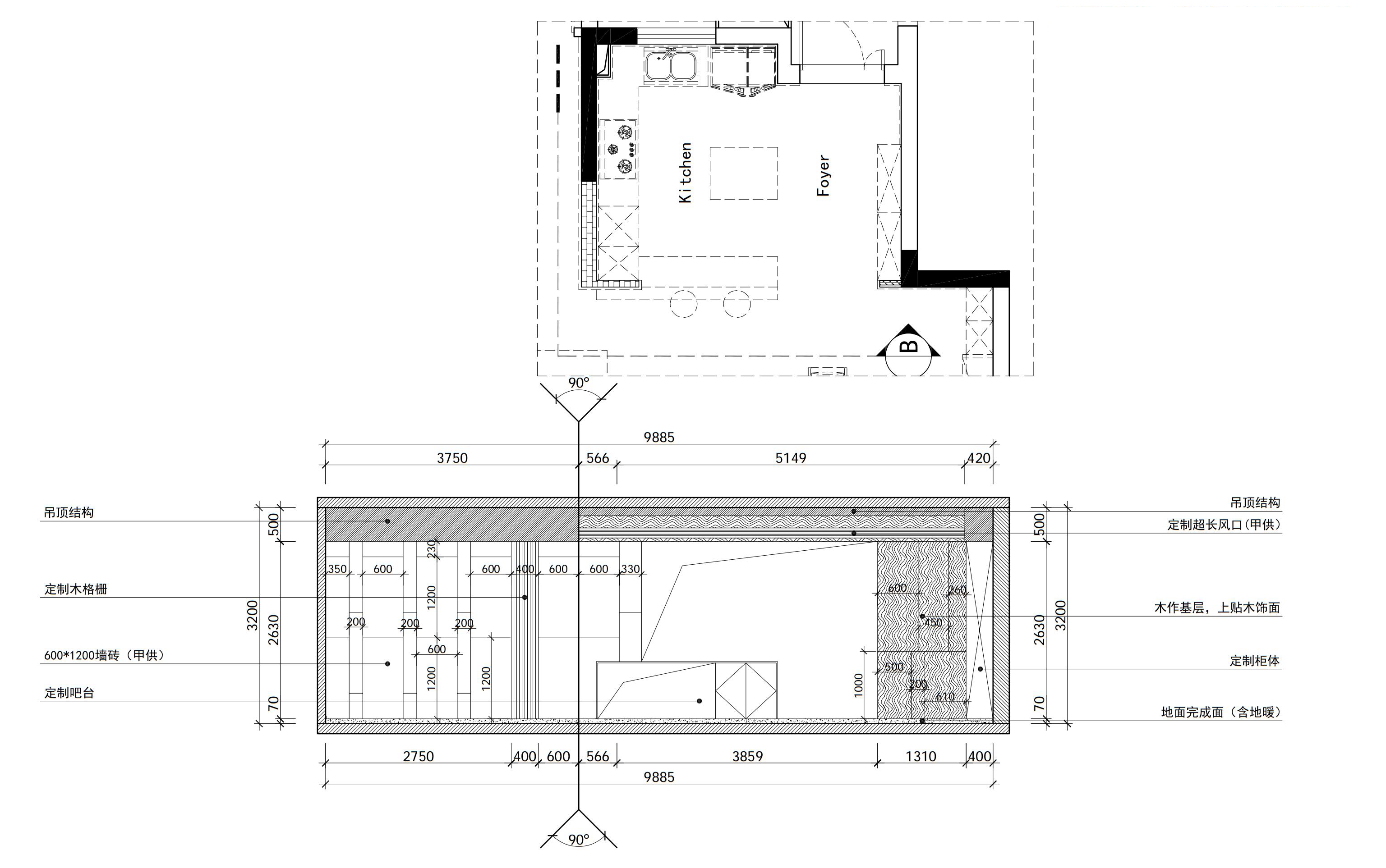
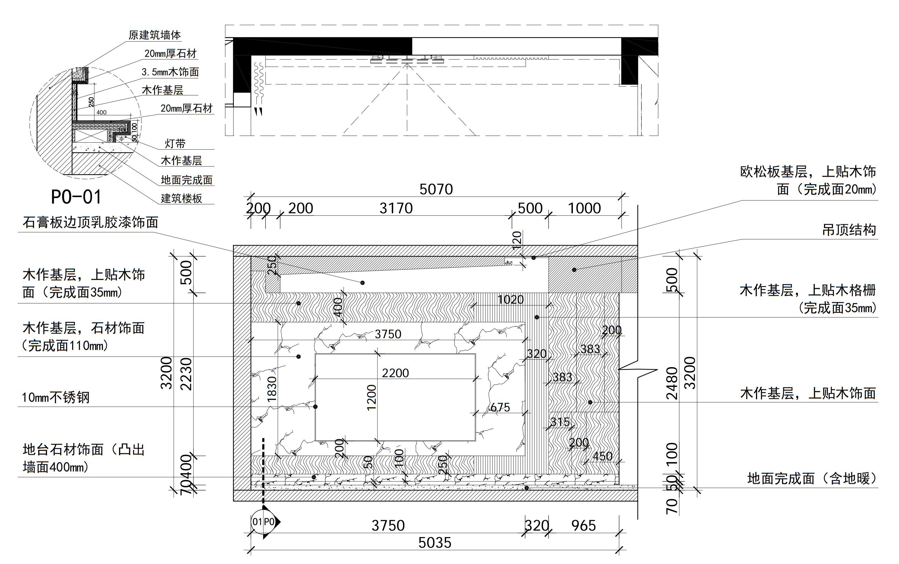
  • 图片
  • 图片
  • 图片
  • 图片
  • 图片
  • 图片
  • 图片
  • 图片
  • 图片
  • 图片
  • 图片
  • 图片
  • 图片
  • 图片
  • 图片
  • 图片
  • 图片
  • 图片
  • 图片
  • 图片
  • 图片
  • 图片
  • 图片
  • 图片
  • 图片
  • 图片
  • 图片
  • 图片
  • 图片
  • 图片
  • 图片
  • 图片
  • 图片
  • 图片
  • 上一个 下一个
    《金腾奖优秀作品年鉴》 私宅丨地产丨餐饮丨酒店丨办公丨商业丨公共丨产品丨公益丨人气 jintengAWARD(小金_金腾奖组委会) 广州市海珠区琶洲大道68号华新中心21楼
    金腾奖视频号 金腾奖小红书号 监制:闫虹
    统筹:吴佳佳
    运营:朱倩仪 王赫萱 张芷莹 胡岚恩 小金
    新媒体:王贝贝 严洁 侯乐 鹅姐
    经纪:刘译遥 石征 曹凯月
    技术:张桐 黄天佑
    最终解释权归金腾奖主办方所有