Boundless design studio
作品详情
  • Details of the work 标题横线
    头像或者logo
    图片 无边空间设计有限公司
    城市:苏州
    公司:无边空间设计有限公司
    参赛作品: 无边设计工作室
    空间类型:餐饮
    个人/公司简介:
    无边设计是一家具有专业性能力的设计机构,专注于住宅、别墅、商业等空间设计。通过全案设计方式,帮助客户解决设计到施工到落地的问题烦恼,将最完美的效果展现出来。 在设计中,我们不以固定的风格来拘束自己,找出最适合的搭配来呈现空间最美好的一面,让造型和层次结合,开创“无边空间”设计语言,秉持设计专业视野,给每个客户无限空间想象与无瑕居住感受。
    设计说明 | Design Instruction
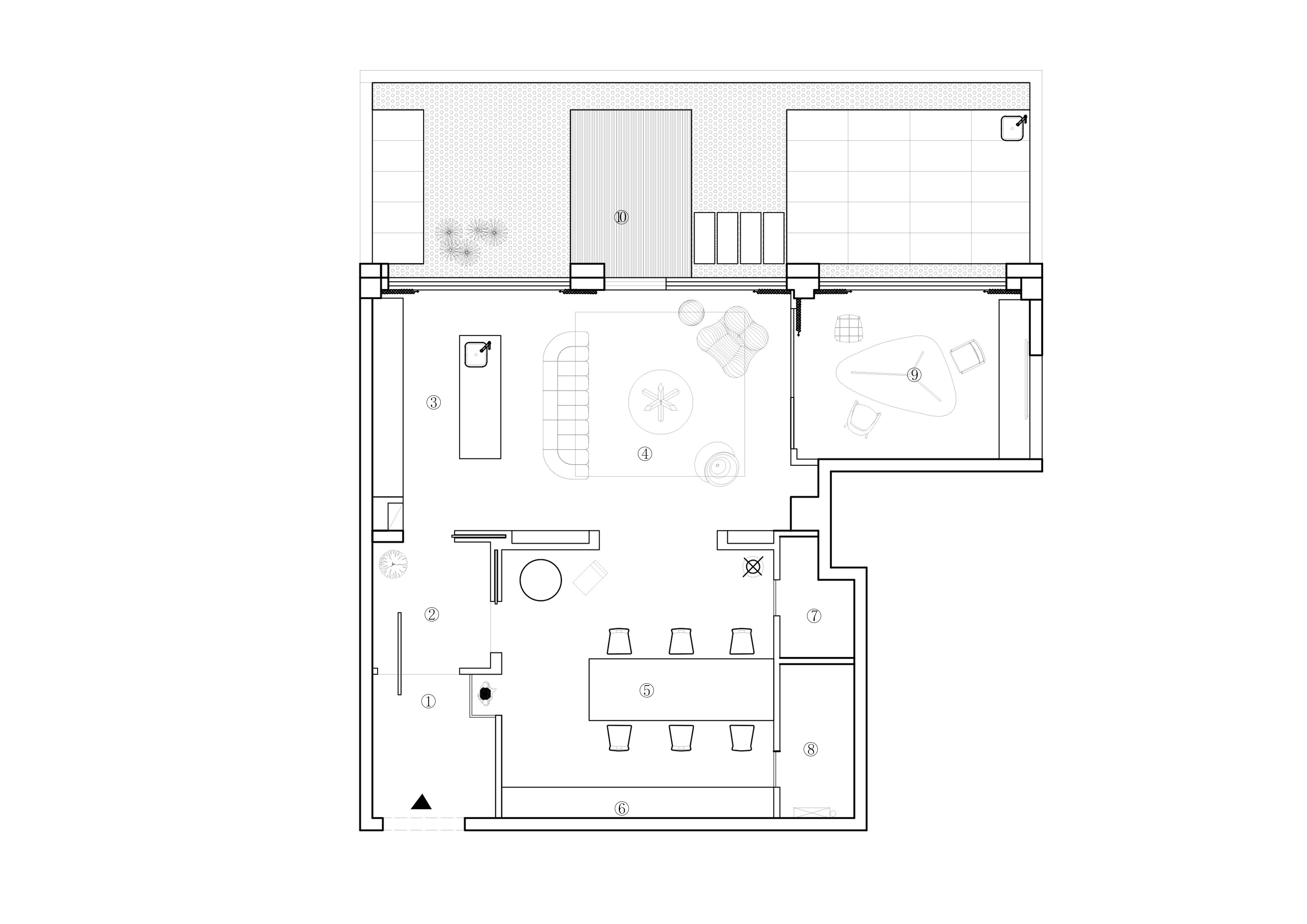
  • 无边设计办公空间,位于江苏省苏州市姑苏区苏纶场内,室内整体面积为170㎡,户外露台面积为30㎡。设计以营造氛围与激发创作灵感为目标,将工装散发的理性气质与家装释放的感性气质交织,促成无拘无束的松弛感。 让身体有一种“逃离办公室”的错觉。 内外双玄关的设计,解决了原始建筑写字楼的限制,也让空间动线更多样性。塑造从明转暗,再由暗转明的空间脉络,于自然过渡的动线之内阐释简约空间的多样性、层次性与可能性,也让每一个来工作室的人都有一段不一样的印象。 逐渐有序地构建“家的感觉”。 在办公与接待功能维稳的状态下,扩展西厨与露台的面积,强调家的和谐温馨、轻松愉快的氛围,链接办公空间与居家情态,让休闲娱乐也成为“工作的一部分”,未来也能让在这办公的设计师们迸发出更多设计灵感。 立足不同的洽谈功能,打造舒适场域,令亲如朋友的客户们放下拘谨,更为轻松自在地展开沟通,规划出汇报区,利用空间结构与留白张力赋能正式交流情境,让设计变的更加生动,尽显工作室的品味格调,以及专业性与服务性。 黑与白,明与暗,是一种比较级。 通过空间的纵深特征顺势包容内部空间,把控暗调与明调的呈现比例,利用几何轮廓勾勒光影之美,以刚柔共生的矛盾感串联不同视角捕获的叙事形态。
  • 图片
  • 图片
  • 图片
  • 图片
  • 图片
  • 图片
  • 图片
  • 图片
  • 图片
  • 图片
  • 图片
  • 图片
  • 图片
  • 图片
  • 图片
  • 图片
  • 图片
  • 图片
  • 图片
  • 图片
  • 图片
  • 图片
  • 图片
  • 图片
  • 图片
  • 图片
  • 图片
  • 上一个 下一个
    《金腾奖优秀作品年鉴》 私宅丨地产丨餐饮丨酒店丨办公丨商业丨公共丨产品丨公益丨人气 jintengAWARD(小金_金腾奖组委会) 广州市海珠区琶洲大道68号华新中心21楼
    金腾奖视频号 金腾奖小红书号 监制:闫虹
    统筹:吴佳佳
    运营:朱倩仪 王赫萱 张芷莹 胡岚恩 小金
    新媒体:王贝贝 严洁 侯乐 鹅姐
    经纪:刘译遥 石征 曹凯月
    技术:张桐 黄天佑
    最终解释权归金腾奖主办方所有