Living in the Aesthetic World of French Retro
作品详情
  • Details of the work 标题横线
    头像或者logo
    图片 无边空间设计有限公司
    城市:苏州
    公司:无边空间设计有限公司
    参赛作品: 住进法式复古的美学世界
    空间类型:公寓(150㎡以下)
    个人/公司简介:
    无边设计是一家具有专业性能力的设计机构,专注于住宅、别墅、商业等空间设计。通过全案设计方式,帮助客户解决设计到施工到落地的问题烦恼,将最完美的效果展现出来。 在设计中,我们不以固定的风格来拘束自己,找出最适合的搭配来呈现空间最美好的一面,让造型和层次结合,开创“无边空间”设计语言,秉持设计专业视野,给每个客户无限空间想象与无瑕居住感受。
    设计说明 | Design Instruction
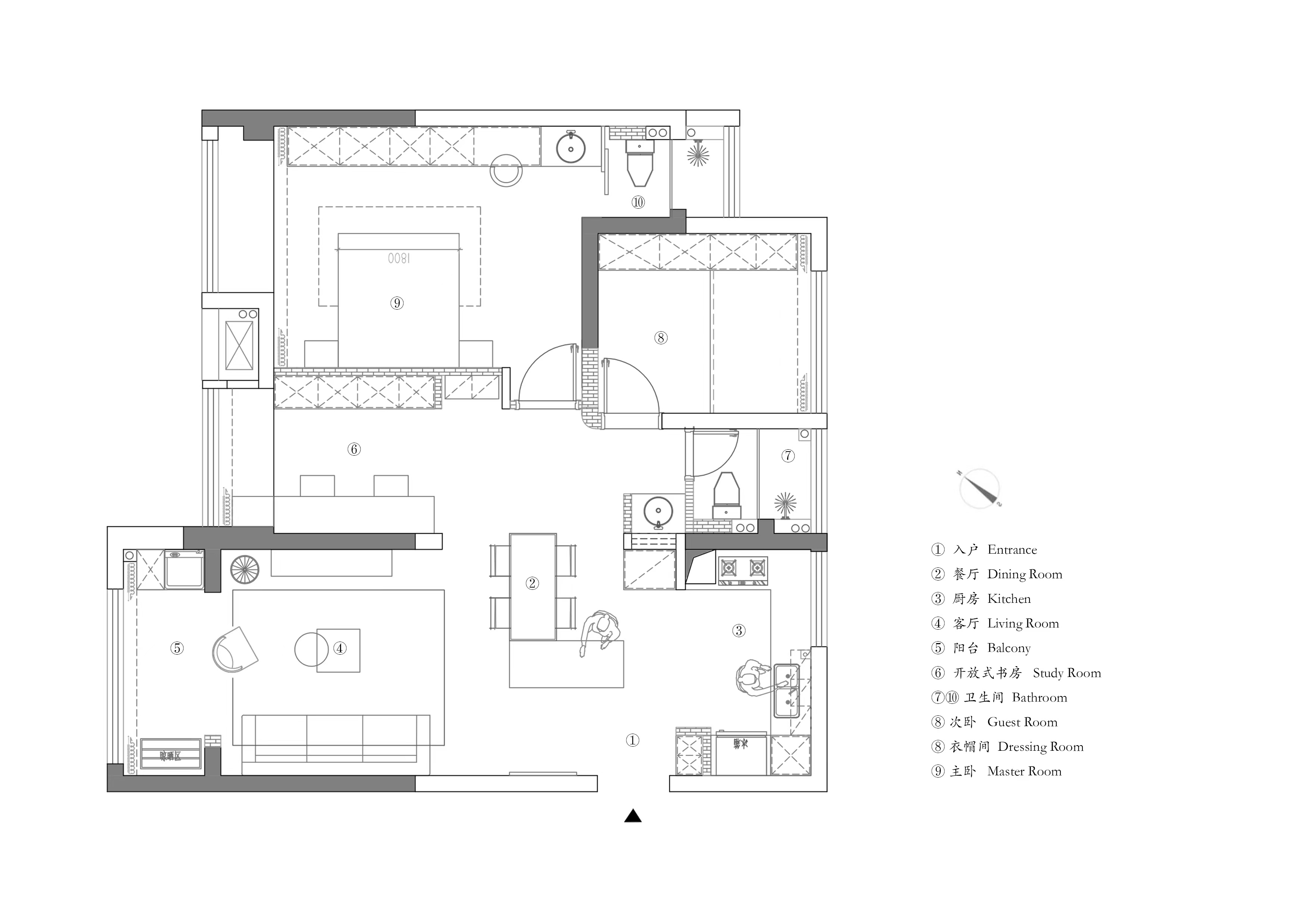
  • 混搭风尚,重构经典 本案利用开间互通的优势,重构经典元素,在混搭、交织、碰撞的语境下,表述空间的个性与内核。以组合式功能满足生活所需,确立灵活宽敞的动线与精致和谐的视觉图景,带人探索空间的魅力,洞悉生活的本质。空间像独一无二的黑胶唱片,为生活“降噪”。 共生关系,就是最好的创造力 步入其间,窥见生活的——自然、真实、浪漫。打通多余隔墙,考量公区的尺度、采光、功能,结合居住者的生活习惯,最终采用居中构图的形式串联玄关、岛台与餐厅的情态,从人与空间初识的瞬间,给予情感、心灵无限包裹的温馨感与归属感。 “空间像一首经典的歌曲,像一部浪漫的电影,像秋天的午后撞进柔软的风里,让人不想起身。”精简陈设,划分主次视觉,让艺术饱含的生命力在家中流淌。连接阳台,透过实墙遮挡打造洗衣烘干区域,并以木饰面加以围合,萦绕出自然和谐的观感。空间节奏跟随结构而变化,经历餐厅的“浓墨重彩”,来到半开放式书房,公区的石膏造型蔓延过来,形成新的叙事画面,墨绿色块将复古调性沉淀,令人快速地进入阅读状态,后方的柜面亦虚亦实,与金属元素一起丰盈视效。 精致的石膏造型,内外呼应,阐述了生活的情趣与仪式感。人字拼地板,是卧室联通外界的表征,墨绿屋顶携同棕调元素,塑造了“绿野仙踪的秘境”,模糊了现实与理想,从色、形、质等方面着手,让人放松身心。
  • 图片
  • 图片
  • 图片
  • 图片
  • 图片
  • 图片
  • 图片
  • 图片
  • 图片
  • 图片
  • 图片
  • 图片
  • 图片
  • 图片
  • 图片
  • 图片
  • 图片
  • 图片
  • 图片
  • 图片
  • 图片
  • 上一个 下一个
    《金腾奖优秀作品年鉴》 私宅丨地产丨餐饮丨酒店丨办公丨商业丨公共丨产品丨公益丨人气 jintengAWARD(小金_金腾奖组委会) 广州市海珠区琶洲大道68号华新中心21楼
    金腾奖视频号 金腾奖小红书号 监制:闫虹
    统筹:吴佳佳
    运营:朱倩仪 王赫萱 张芷莹 胡岚恩 小金
    新媒体:王贝贝 严洁 侯乐 鹅姐
    经纪:刘译遥 石征 曹凯月
    技术:张桐 黄天佑
    最终解释权归金腾奖主办方所有