Shanghai Peral River Rose Garden
作品详情
  • Details of the work 标题横线
    头像或者logo
    图片 李长娜
    城市:上海
    公司: 璞物空间设计&一衡一墅
    参赛作品: 上海珠江玫瑰花园
    空间类型:公寓(150㎡以下)
    个人/公司简介:
    个人经历 Personalexperience 北京中国装饰集团 ·........ 工装主案策划师 北京东易日盛集团·........ 专家级主任设计师 上海室内装饰集团 ......... 设计总监 一衡一墅空间设计 ......... 创始人兼设计总监 上海璞物设计STUDIO......... 创始人兼设计总监 中国室内设计装饰协会高级设计师。 殊荣Award 2003年11月竣工作品"女王SPA梦幻生活馆”荣获2003年中国室内设计大奖赛公共空间类二等奖。2003年11月,竣工作品“女王SPA梦幻生活馆”荣获2003年亚太区室内设计商业组冠军奖 2006年作品"现代食尚"荣获"箭牌杯"海峡两岸四地室内设计大奖赛三等奖 2009年著书《唯美拾年》 2016年荣获上海市建设工程”白玉兰"奖 2018年著书《足迹》作品收录在《唯美拾年》2019年创新中国 空间设计艺术大赛 十大领军设计人物 2020年设计本年度盛典 年度杰出设计师 2022年华语设计领袖榜卓越设计人物 2023扬州天下宋式美学别墅荣获美国缪斯设计奖.金奖 2023亚大空间设计十大精英设计师
    设计说明 | Design Instruction
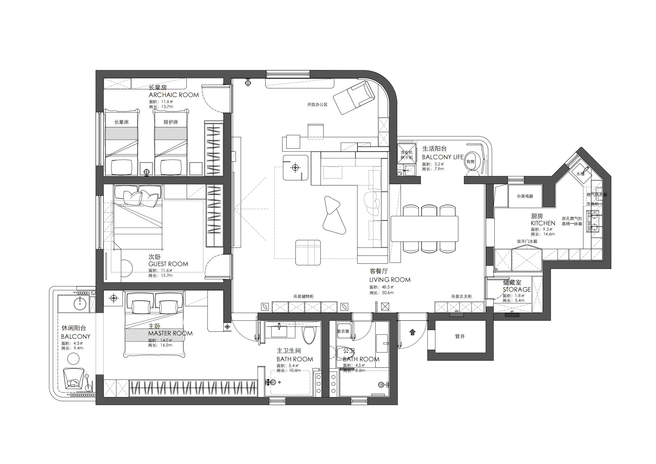
  • 该项目位于上海黄浦江边,房子主要是业主和老人居住,儿子从澳大利亚归国之后打算单独购入一套住宅,偶尔回来住。因此,这套房子与以往不同,我们需要考虑两位60后业主分房居住的情况,同时还要考虑业主的父母——为80岁以上的老人覆盖一些适老化设计。 在整体颜值上,一家三代还是比较统一的,希望未来的新房子除了有极简的清爽和轻奢的质感,也需要符合滨江豪宅的一些品味所在。因此整个设计呈现了一些前卫新颖的手法。 从MINOTTI沙发中提取了轻奢和极具质感的元素,在整个设计方案中,车线皮革、金属、哑光烤漆和岩板等元素贯穿其中,利用材质的反射光泽的渐变和高级的质感拉升室内的居住体验,最大程度延续客餐厅的建筑尺度。 同时在平面方案上我们将客餐厅更加紧密相连,通过矮柜沙发餐桌做成错落有致的造型搭配,将原本鸡肋的西面客厅空间规划成多功能开放书房,作为第三厅的形式加入到开放式空间的布局内。业主最满意的区域也在于此。傍晚的阳光通过窗户洒落进书房间,家人在这办公看书静享岁月静好。
  • 图片
  • 图片
  • 图片
  • 图片
  • 图片
  • 图片
  • 图片
  • 图片
  • 图片
  • 图片
  • 图片
  • 图片
  • 图片
  • 图片
  • 图片
  • 图片
  • 图片
  • 图片
  • 图片
  • 图片
  • 图片
  • 图片
  • 图片
  • 图片
  • 图片
  • 图片
  • 图片
  • 图片
  • 图片
  • 图片
  • 图片
  • 图片
  • 图片
  • 图片
  • 图片
  • 图片
  • 图片
  • 图片
  • 图片
  • 图片
  • 图片
  • 图片
  • 图片
  • 图片
  • 图片
  • 图片
  • 图片
  • 图片
  • 图片
  • 图片
  • 上一个 下一个
    《金腾奖优秀作品年鉴》 私宅丨地产丨餐饮丨酒店丨办公丨商业丨公共丨产品丨公益丨人气 jintengAWARD(小金_金腾奖组委会) 广州市海珠区琶洲大道68号华新中心21楼
    金腾奖视频号 金腾奖小红书号 监制:闫虹
    统筹:吴佳佳
    运营:朱倩仪 王赫萱 张芷莹 胡岚恩 小金
    新媒体:王贝贝 严洁 侯乐 鹅姐
    经纪:刘译遥 石征 曹凯月
    技术:张桐 黄天佑
    最终解释权归金腾奖主办方所有