Ca-nest
作品详情
  • Details of the work 标题横线
    头像或者logo
    图片 都水设计 i室设圈漂亮家居设计家特约推荐
    城市:彰化
    公司:都水设计
    参赛作品: 窠巢
    空间类型:公寓(150㎡以下)
    个人/公司简介:
    都水设计
    设计说明 | Design Instruction
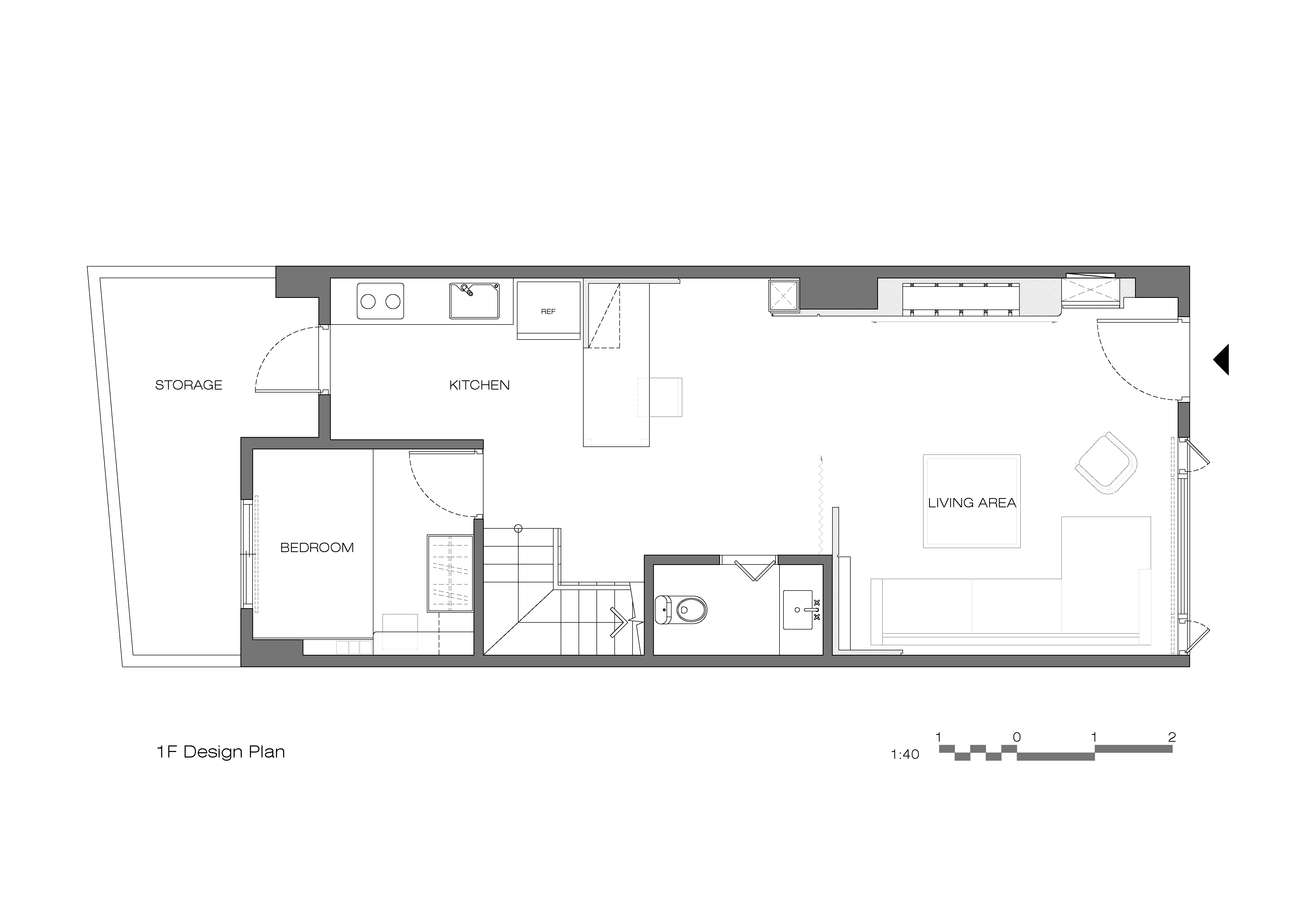
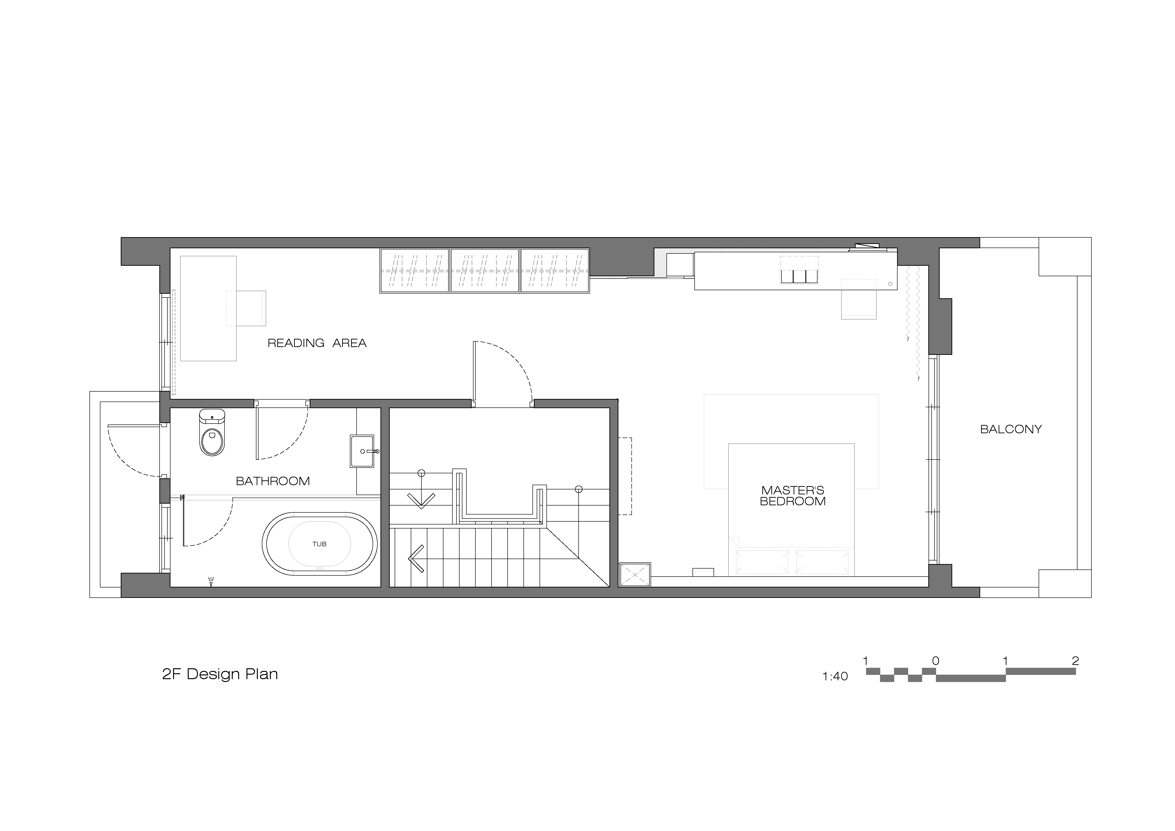
  • 「窠巢」灵感来自于自然界中的巢穴。巢穴能够为鸟类提供安全的家,同时也惊叹于结构编织而成的美丽创造。 将这部分形态汲取灵感融入设计当中,细腻的木纹与手工榫接工法的运用,不仅能够展现木材的纯粹美感,更可以将匠人工艺的细腻与之结合。 墙面连结不同型态的凹凸柜体,兼具实用性与层次感,提供了充足且隐蔽的收纳空间。 添加金黄色泽契合整体空间色彩,自然纹理的矿物漆墙面呈现独特的质感对比,寓意其蕴藏的独特与珍贵。 伴随日夜推移,对应不同空间情境下的变换,呼应着窠巢所带来的安逸与祥和感受。
  • 图片
  • 图片
  • 图片
  • 图片
  • 图片
  • 图片
  • 图片
  • 图片
  • 图片
  • 图片
  • 图片
  • 图片
  • 图片
  • 图片
  • 图片
  • 图片
  • 上一个 下一个
    《金腾奖优秀作品年鉴》 私宅丨地产丨餐饮丨酒店丨办公丨商业丨公共丨产品丨公益丨人气 jintengAWARD(小金_金腾奖组委会) 广州市海珠区琶洲大道68号华新中心21楼
    金腾奖视频号 金腾奖小红书号 监制:闫虹
    统筹:吴佳佳
    运营:朱倩仪 王赫萱 张芷莹 胡岚恩 小金
    新媒体:王贝贝 严洁 侯乐 鹅姐
    经纪:刘译遥 石征 曹凯月
    技术:张桐 黄天佑
    最终解释权归金腾奖主办方所有