K Vertical Village
作品详情
  • Details of the work 标题横线
    头像或者logo
    图片 乘四建筑师事务所 i室设圈漂亮家居设计家特约推荐
    城市:台北
    公司:乘四建筑师事务所
    参赛作品: K垂直村庄
    空间类型:公寓(150㎡以下)
    个人/公司简介:
    空间中有松,有紧,比例拿捏得当,就能成就一个好空间。 Studio X4 成立于2010年,由建筑师、专业室内设计师以及灯光技师所组成。 作品坚持质量与人的温度,亦荣获多项国际奖项肯定。
    设计说明 | Design Instruction
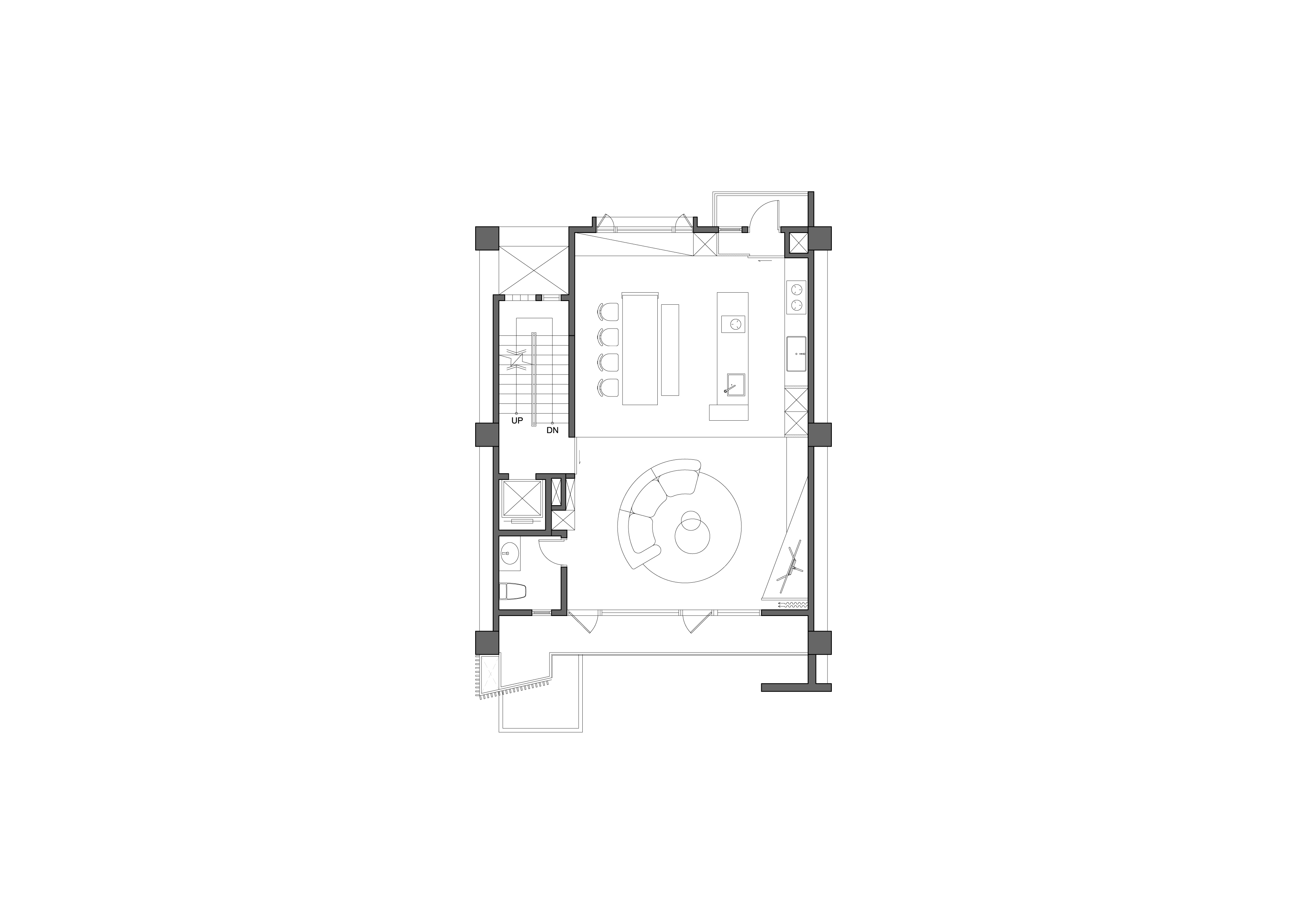
  • "本案位于台北盆地,在5.5层的复层空间中,三个不同的家庭属于同一家族,共同生活;在隐私及共享中,找寻对于传统家族三合院的向往, 在我们居住的现代都市中,受惠也受限于经济起飞的快速发展,长久以来囚禁于鸟笼大楼,在几十年不断发展及演绎的洪流中,不知不觉失去了人与人互动的机会与空间。而在垂直生活充满前瞻性的概念于千禧年间被提出,如何透过复层住宅建物,消弭人与人之间关系的疏远,成为本案思考的重点。全栋建筑室内以相近材质贯穿每一楼层,其同质性带出归属感,并凭基地优越的采光条件,空间色彩仅以泥灰作为主调,与原木交织一缕缕生机,最终经自然光叠加出安定的空间氛围。 登上一楼车库后,迎来宽阔的休闲空间,敞开空间不但乘载整个家族起居,且成为每位家人的共享空间。三个家庭各自使用单一楼层,由于二楼配置已提供视听及烹饪…等动态环境,本案三、四、五楼层的起居配置更顾及每一家庭的内在生活,依各自需求独立打造成适合阅读或居家办公的友善环境。 多处转折以圆弧延伸,增加视觉律动;往顶楼露台前的回廊,则藉由折白纸般轻盈的踏阶,与挑高的五楼空间产生连结,轻量化设计丰富了垂直生活中的自然互动。 儒家思想「修身、齐家、治国、平天下」,贴切地替梳理了我们的设计概念,在自身、家庭、家族、社会之间,自身与家是一座桥梁,进而对外连结。在这个垂直空间中,人与家庭连结、家庭与家族共享、家族与社群共同生活,角色之间相互依偎。"
  • 图片
  • 图片
  • 图片
  • 图片
  • 图片
  • 图片
  • 图片
  • 图片
  • 图片
  • 图片
  • 图片
  • 图片
  • 图片
  • 图片
  • 图片
  • 图片
  • 图片
  • 图片
  • 图片
  • 图片
  • 图片
  • 图片
  • 上一个 下一个
    《金腾奖优秀作品年鉴》 私宅丨地产丨餐饮丨酒店丨办公丨商业丨公共丨产品丨公益丨人气 jintengAWARD(小金_金腾奖组委会) 广州市海珠区琶洲大道68号华新中心21楼
    金腾奖视频号 金腾奖小红书号 监制:闫虹
    统筹:吴佳佳
    运营:朱倩仪 王赫萱 张芷莹 胡岚恩 小金
    新媒体:王贝贝 严洁 侯乐 鹅姐
    经纪:刘译遥 石征 曹凯月
    技术:张桐 黄天佑
    最终解释权归金腾奖主办方所有