Journey of Heart
作品详情
  • Details of the work 标题横线
    头像或者logo
    图片 御见设计企业有限公司 i室设圈漂亮家居设计家特约推荐
    城市:台北
    公司:御见设计企业有限公司
    参赛作品: 心灵之旅
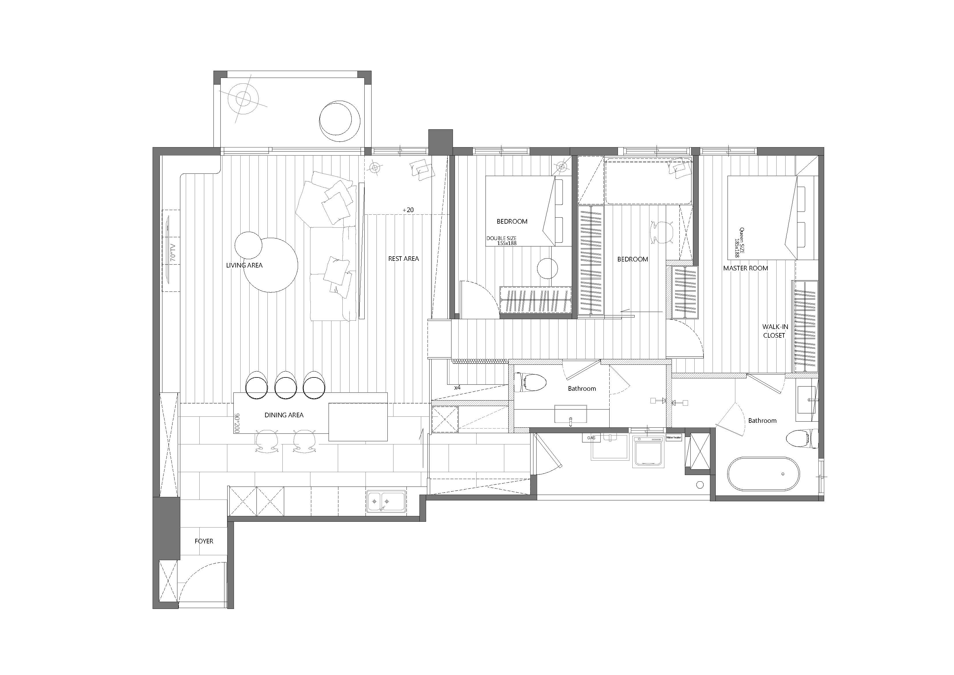
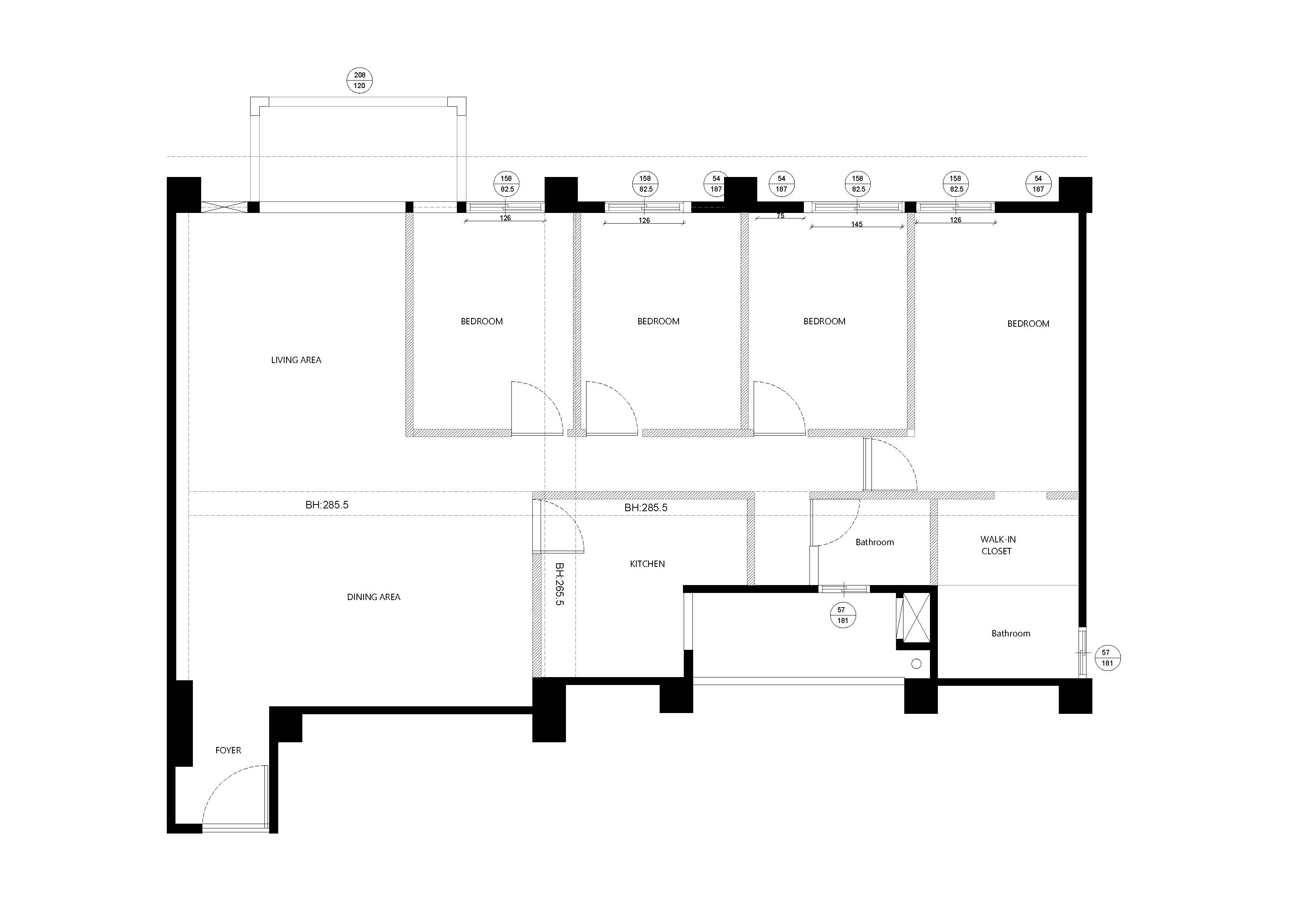
    空间类型:公寓(150㎡以下)
    个人/公司简介:
    "得奖纪录 2020 意大利 A'Design 住宅设计 银奖 2020 意大利A'Design 办公空间设计 铜奖 2020 澳洲墨尔本设计奖 住宅设计 银奖 2020 美国Muse 住宅设计 金奖 2020 美国Muse 办公空间设计 银奖 "
    设计说明 | Design Instruction
  • "空间,是盛接平凡却深刻日常的容器,褪去繁杂的语汇,玄关落下墨黑色石英砖,彷彿止住了外头一切喧嚣,促成心灵沉淀的场域;天花板裸露的水泥与不修饰的灰阶色调,都是粗犷主义代表的设计语汇。藉由新旧交织的设计手法,将原有部分硬派的几何线条转化为曲线,柔软整体空间的视觉。 刻意裸露的楼板、梁柱,直述大梁大柱结构性的美感, 金属、石材和混凝土建构而成,粗旷的梁柱彰显了建材原始的自然之美,混凝土墙面搭配线条利落的石材及不锈钢金属层板,粗旷中又不乏都市摩登的风格。 裸露的管线、赤裸的材质与几何线条是过去人们对未来的想象刻画 过去数世纪以来,我们通过不断加乘堆栈的艺术美学,不断将每一个间隙空白填满,再满足地称之为「完美的」;直到当代的人们终于发现,原来「不完美即是完美」 粗旷与精致元素撞击出的美丽火花 喜好细致的建筑材料,却又不想放弃令人心动的原始质感 以多种异质素材型塑出空间的轮廓,打造不同凡响的品味生活。当看似冲突的粗旷与精致元素相互撞击,结果却产生出令人惊艳的冲突美感 同时运用不同的材料表现,铁件、金属、石材于空间纹理中,展现出年轻多变的居家氛围。地坪异材质的变化,石板砖与木纹序列交错,延伸至客厅与书房交界混搭出新与旧的设计气息。"
  • 图片
  • 图片
  • 图片
  • 图片
  • 图片
  • 图片
  • 图片
  • 图片
  • 图片
  • 图片
  • 图片
  • 图片
  • 图片
  • 图片
  • 上一个 下一个
    《金腾奖优秀作品年鉴》 私宅丨地产丨餐饮丨酒店丨办公丨商业丨公共丨产品丨公益丨人气 jintengAWARD(小金_金腾奖组委会) 广州市海珠区琶洲大道68号华新中心21楼
    金腾奖视频号 金腾奖小红书号 监制:闫虹
    统筹:吴佳佳
    运营:朱倩仪 王赫萱 张芷莹 胡岚恩 小金
    新媒体:王贝贝 严洁 侯乐 鹅姐
    经纪:刘译遥 石征 曹凯月
    技术:张桐 黄天佑
    最终解释权归金腾奖主办方所有