Excellent
作品详情
  • Details of the work 标题横线
    头像或者logo
    图片 御见设计企业有限公司 i室设圈漂亮家居设计家特约推荐
    城市:新北
    公司:御见设计企业有限公司
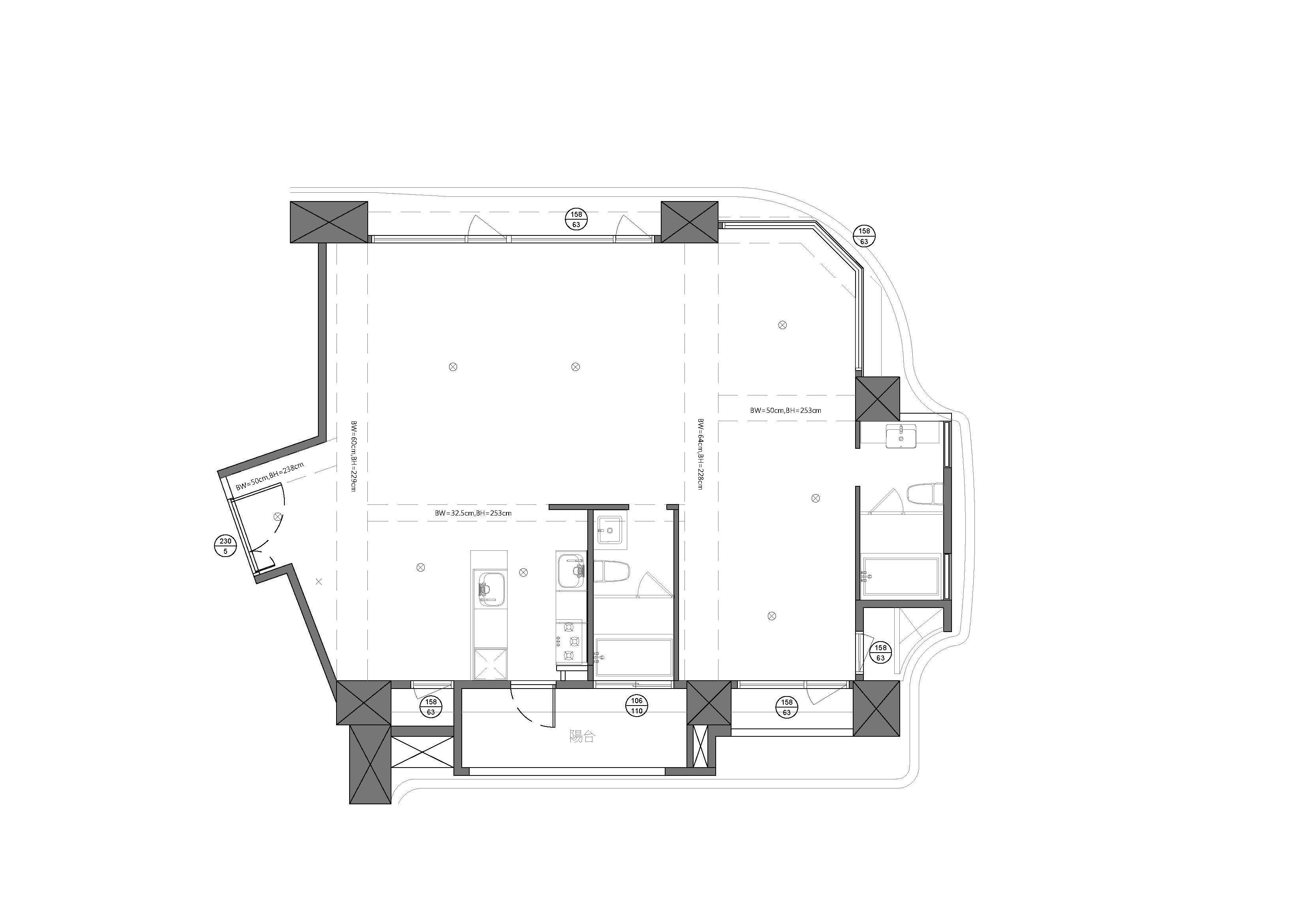
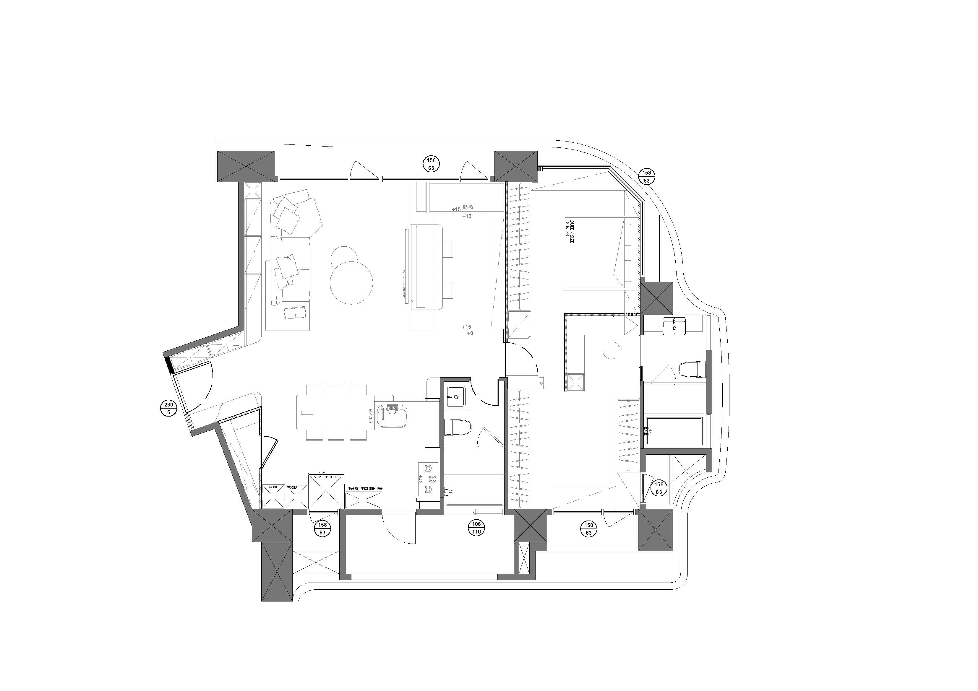
    参赛作品: 卓居
    空间类型:公寓(150㎡以下)
    个人/公司简介:
    "得奖纪录 2020 意大利 A'Design 住宅设计 银奖 2020 意大利A'Design 办公空间设计 铜奖 2020 澳洲墨尔本设计奖 住宅设计 银奖 2020 美国Muse 住宅设计 金奖 2020 美国Muse 办公空间设计 银奖 "
    设计说明 | Design Instruction
  • "游走于变形与形变之间,将各种空间机能相互结合,把空间释放给生活。达到生活空间最大化之外,建筑所在的环境,倚靠着窗边,诗意般的河畔绿景,随处一隅,便能感受沉静,更是屋主选择在此成家的关键要素之一。 低调是一种生活态度,奢华则是一种生活的体验与感受;以镀钛的金属光泽与木皮的结合,在温润之中展现出些许的精品质感,并以大理石的质地,造就如私人会所般的大器场域,显现出屋主的卓越成就,造就这一切的不凡。"
  • 图片
  • 图片
  • 图片
  • 图片
  • 图片
  • 图片
  • 图片
  • 图片
  • 图片
  • 图片
  • 图片
  • 图片
  • 图片
  • 图片
  • 上一个 下一个
    《金腾奖优秀作品年鉴》 私宅丨地产丨餐饮丨酒店丨办公丨商业丨公共丨产品丨公益丨人气 jintengAWARD(小金_金腾奖组委会) 广州市海珠区琶洲大道68号华新中心21楼
    金腾奖视频号 金腾奖小红书号 监制:闫虹
    统筹:吴佳佳
    运营:朱倩仪 王赫萱 张芷莹 胡岚恩 小金
    新媒体:王贝贝 严洁 侯乐 鹅姐
    经纪:刘译遥 石征 曹凯月
    技术:张桐 黄天佑
    最终解释权归金腾奖主办方所有