light
作品详情
  • Details of the work 标题横线
    头像或者logo
    图片 御见设计企业有限公司 i室设圈漂亮家居设计家特约推荐
    城市:台湾
    公司:御见设计企业有限公司
    参赛作品: 光韵
    空间类型:公寓(150㎡以下)
    个人/公司简介:
    "得奖纪录 2020 意大利 A'Design 住宅设计 银奖 2020 意大利A'Design 办公空间设计 铜奖 2020 澳洲墨尔本设计奖 住宅设计 银奖 2020 美国Muse 住宅设计 金奖 2020 美国Muse 办公空间设计 银奖 "
    设计说明 | Design Instruction
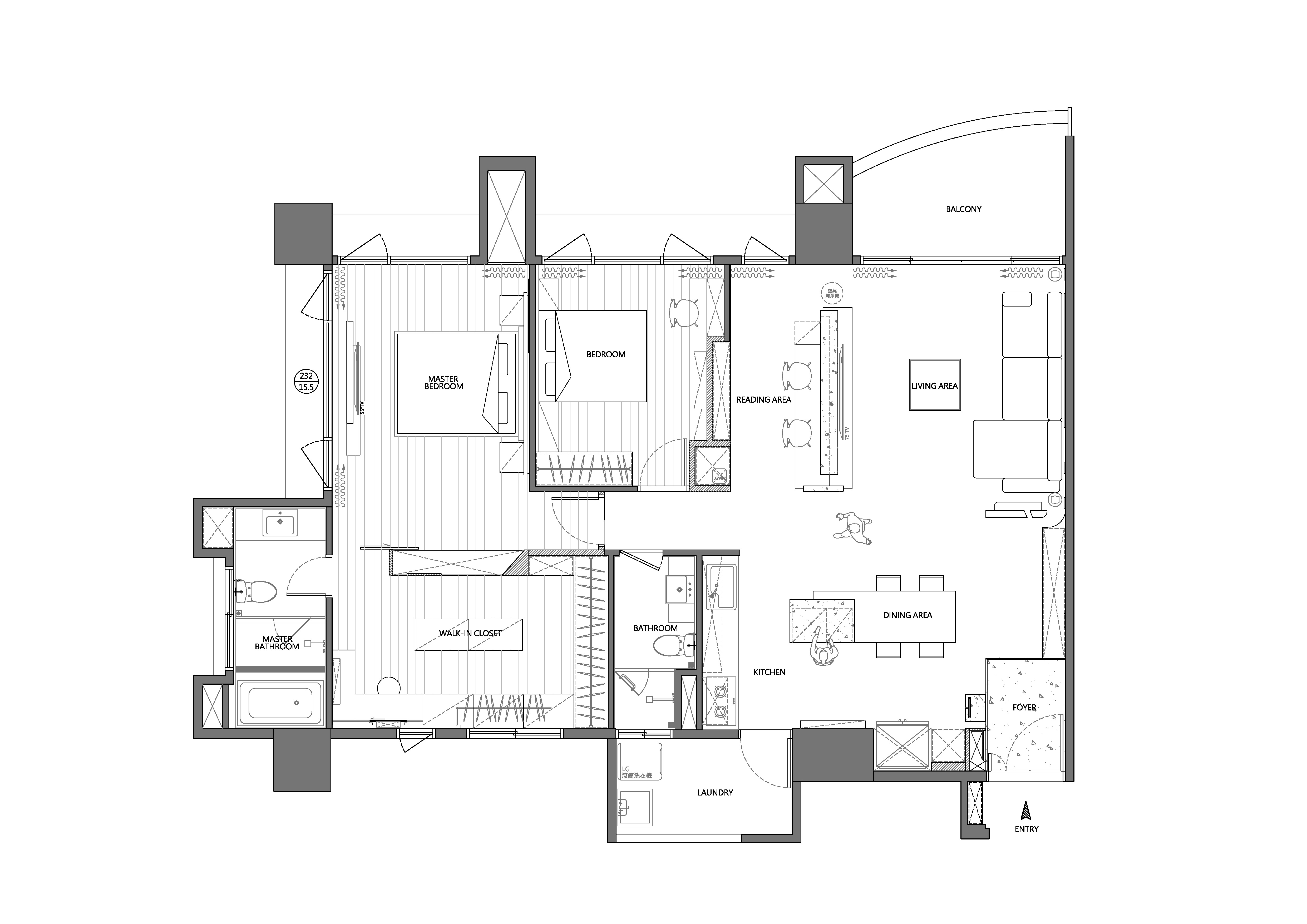
  • 『光』在空间中扮演着极为重要的角色,随着时间流动,光影的变化总能赋予空间不同的面貌,而整个空间以灰色调为基底,也意味着光影中黑与白之间色阶的变化。屋主本身喜欢收藏艺术公仔,我们希望将居住者的个性及兴趣体现于空间之中。一进门,玄关的隔屏以几何线条的分割,融合不同的材质(涂料、镀钛板、铁件)、灯光、以及篓空的设计(引光),以艺术品-画作的意象,来做为入口的迎宾墙面。而天花板则以不同的材质来界定各个空间,木皮天花下的餐厨空间将中岛、餐桌相崁接合,与订制桌角三者刻意呈现不对称的几合量体;餐桌衬板下的黑色线条与上方天花板的灯条相作呼应,水平轴向强烈的明暗对比,连结整个公共空间。另外,天花以白色为基底的公共区域,电视墙用灰、黑色调的大理石包覆,与餐厅中岛的材质相引呼应,象征原石般经由线条、比例的切割,以艺术品-雕塑的概念,来刻划出完美的形体。整体而言,不论是引入自然光的投影、或是细部的灯光设计,皆将『光』的特性与抽象的艺术概念融合于空间之中。
  • 图片
  • 图片
  • 图片
  • 图片
  • 图片
  • 图片
  • 图片
  • 图片
  • 图片
  • 图片
  • 图片
  • 图片
  • 图片
  • 图片
  • 上一个 下一个
    《金腾奖优秀作品年鉴》 私宅丨地产丨餐饮丨酒店丨办公丨商业丨公共丨产品丨公益丨人气 jintengAWARD(小金_金腾奖组委会) 广州市海珠区琶洲大道68号华新中心21楼
    金腾奖视频号 金腾奖小红书号 监制:闫虹
    统筹:吴佳佳
    运营:朱倩仪 王赫萱 张芷莹 胡岚恩 小金
    新媒体:王贝贝 严洁 侯乐 鹅姐
    经纪:刘译遥 石征 曹凯月
    技术:张桐 黄天佑
    最终解释权归金腾奖主办方所有