A Peaceful Time
作品详情
  • Details of the work 标题横线
    头像或者logo
    图片 构设计 i室设圈漂亮家居设计家特约推荐
    城市:台湾
    公司:构设计
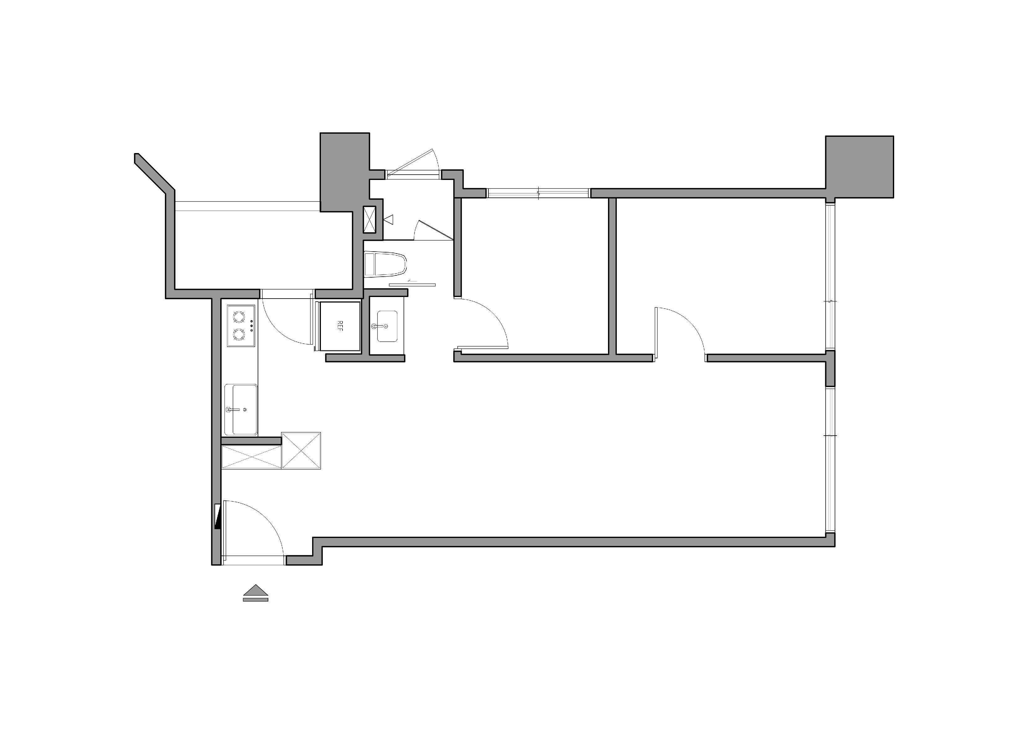
    参赛作品: 岁月静好
    空间类型:公寓(150㎡以下)
    个人/公司简介:
    『家』是成长、思考、放松、休息的地方,可以很有趣、有个性、也可以很温暖。三分设计,七分生活,用绿意装点空间。将玩设计的心带入生活中是我们最好的理念,于国内外夺得多项设计大奖,【2023】MUSE金奖【2022】Good design/DNA/A'Design/TINTA/40UNDER40【2021】IF Design Award/AMP/NDA【2020】A'Design银奖/TINTA居住空间复层住宅类优胜【2022】IDA国际设计大奖/TINTA商业空间类优选。
    设计说明 | Design Instruction
  • "17坪的新成屋原格局为2房,为使空间更贴近需求,选择更动原始格局。 以中岛为空间架构,将部分玄关空间挪用,增加厨房的工作区域,作为空间的区域划分。 客厅单面大面采光,利用拱门的开阖运用,导入光线整合空间氛围。藉此创造半开放的多重活动弹性空间,串连空间创造更多样可能性,增加视觉延伸感。 角落一隅,透过光线晕染、材质交叠,将法式的慵懒和质感带入空间,实现法式慢活的梦幻想象。"
  • 图片
  • 图片
  • 图片
  • 图片
  • 图片
  • 图片
  • 图片
  • 图片
  • 图片
  • 图片
  • 图片
  • 图片
  • 图片
  • 图片
  • 上一个 下一个
    《金腾奖优秀作品年鉴》 私宅丨地产丨餐饮丨酒店丨办公丨商业丨公共丨产品丨公益丨人气 jintengAWARD(小金_金腾奖组委会) 广州市海珠区琶洲大道68号华新中心21楼
    金腾奖视频号 金腾奖小红书号 监制:闫虹
    统筹:吴佳佳
    运营:朱倩仪 王赫萱 张芷莹 胡岚恩 小金
    新媒体:王贝贝 严洁 侯乐 鹅姐
    经纪:刘译遥 石征 曹凯月
    技术:张桐 黄天佑
    最终解释权归金腾奖主办方所有