Residence H
作品详情
  • Details of the work 标题横线
    头像或者logo
    图片 caps_A design studio i室设圈漂亮家居设计家特约推荐
    城市:台湾
    公司:caps_A design studio
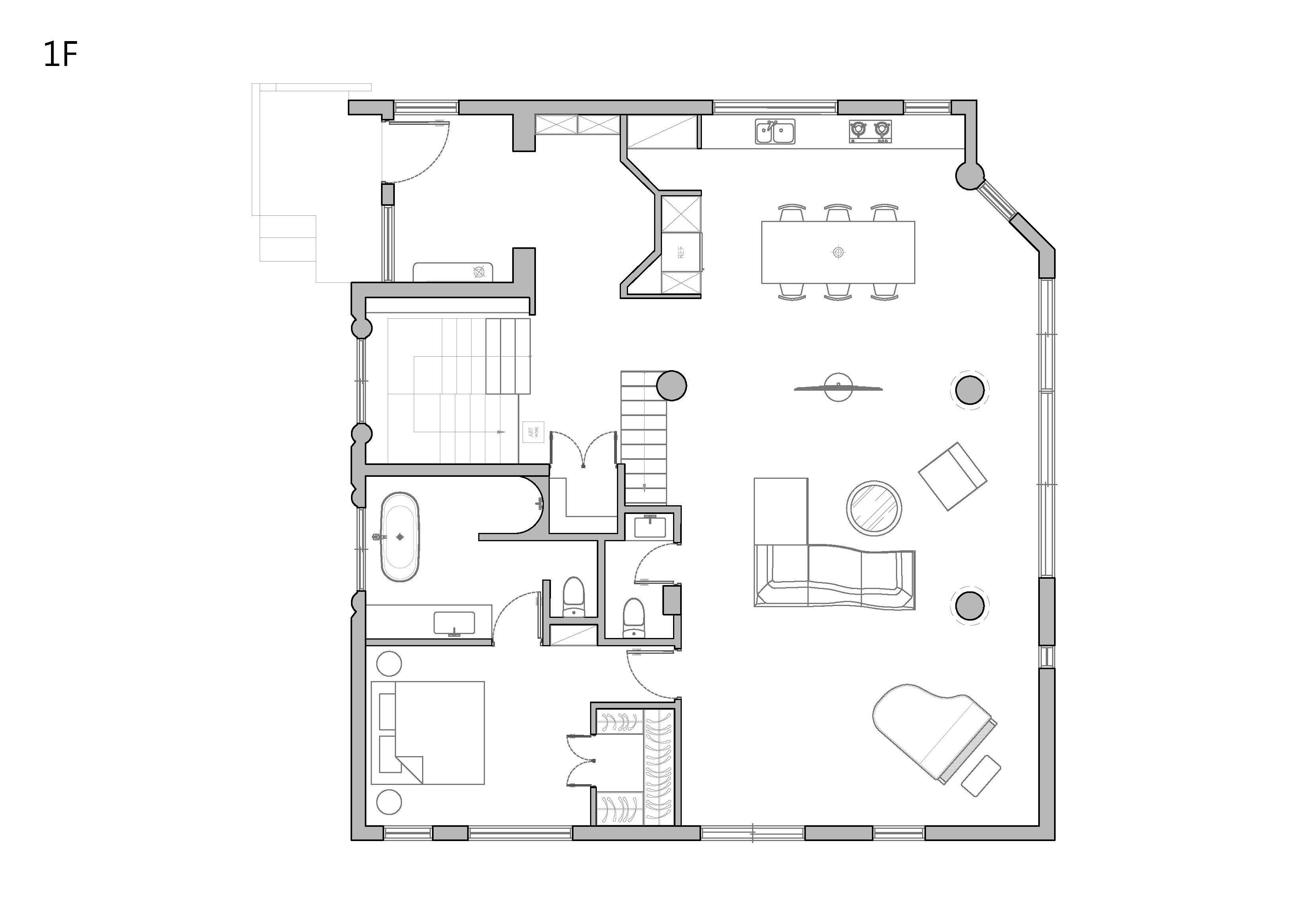
    参赛作品: Residence H
    空间类型:公寓(150㎡以下)
    个人/公司简介:
    "陈俐安 Ann 伦敦艺术大学室内设计研究所 University of Arts London 实践大学媒体传达设计学系 Department of Communications Design, Shih Chien University "
    设计说明 | Design Instruction
  • 第一次和屋主见面时听她们分享小时候住在这里的故事,房屋一砖一瓦都是由奶奶亲手挑选打造,充满着与奶奶的温暖回忆,因此在设计之初,希望注入新屋主的品味之余,也保留房屋原有的轮廓跟气质,从建筑物的外观翻新到宽敞的双玄关配置,将原先容易漏水的水塔改为开放式天井,为室内注入和煦的自然天光,楼梯旁的展示空间天花板即保留原有阁楼结构,延伸至阳光洒落的大面开窗,新屋主从事音乐相关工作,整体流线型设计亦是呼应流畅的乐音,简化格局后开放式的公共空间让住家也可能成为一个展演的场所, 楼梯及主卧也为爱猫打造专属通道,整体室内定调沈稳的土色,呼应被绿荫拥抱的自然环境,从大量的开窗中衍伸至户外的中介,亦代表生命力与创造力的结合,也为这栋房子带来更多的可能。
  • 图片
  • 图片
  • 图片
  • 图片
  • 图片
  • 图片
  • 图片
  • 图片
  • 图片
  • 图片
  • 图片
  • 图片
  • 图片
  • 图片
  • 图片
  • 上一个 下一个
    《金腾奖优秀作品年鉴》 私宅丨地产丨餐饮丨酒店丨办公丨商业丨公共丨产品丨公益丨人气 jintengAWARD(小金_金腾奖组委会) 广州市海珠区琶洲大道68号华新中心21楼
    金腾奖视频号 金腾奖小红书号 监制:闫虹
    统筹:吴佳佳
    运营:朱倩仪 王赫萱 张芷莹 胡岚恩 小金
    新媒体:王贝贝 严洁 侯乐 鹅姐
    经纪:刘译遥 石征 曹凯月
    技术:张桐 黄天佑
    最终解释权归金腾奖主办方所有