BALMY 煦
作品详情
  • Details of the work 标题横线
    头像或者logo
    图片 円设计 YUANDESIGN i室设圈漂亮家居设计家特约推荐
    城市:台湾
    公司:円设计 YUANDESIGN
    参赛作品: BALMY 煦
    空间类型:公寓(150㎡以下)
    个人/公司简介:
    "圆 意味完美,代表自然,象征着光 円 圆的古字,提醒着我们谨记初衷"
    设计说明 | Design Instruction
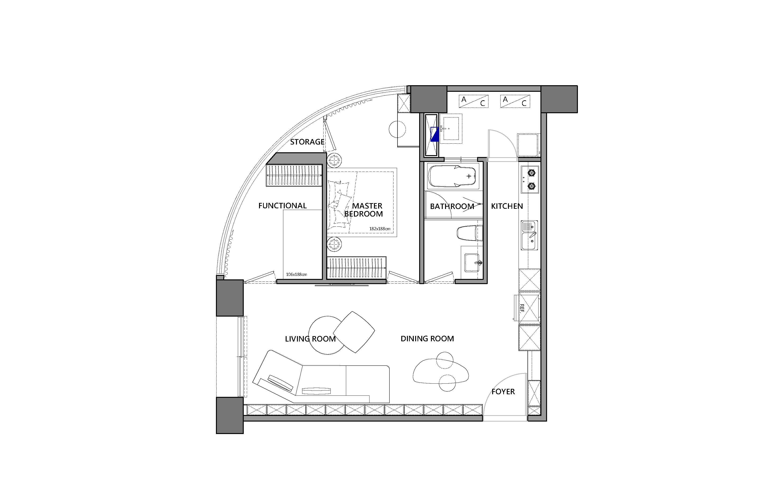
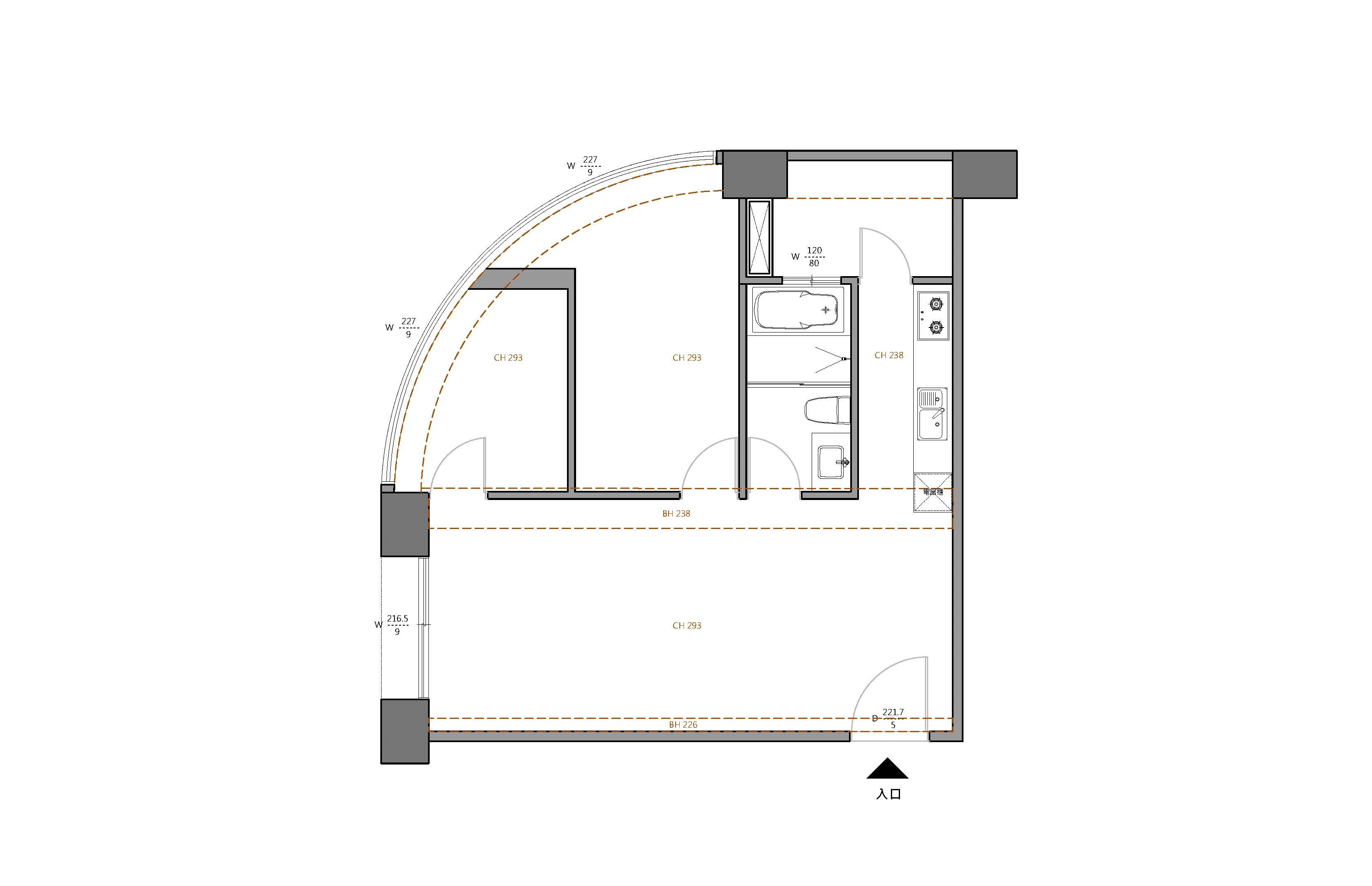
  • "采集一片阳光,收藏温暖煦煦 勾勒一道日光,乘载理想居所 此基地为两房两厅,不变动原始格局的状况下, 业主需求仅有两大要素: ”收纳”和”温暖”  外观造型是围绕着一道弧形的窗,是建筑本身的特色 但也造成了许多畸零空间不利于收纳, 先以储藏室分割两室使其格局方正, 并沿着餐厅和客厅建构了一道收纳墙体。 接着我们观察光的走向 第一道光会大面积的由客厅窗户洒至电视墙, 因此电视墙选择了艺术涂料,表面的纹理映着光,象是采集了一片阳光 房门开启时会有两道光照至收纳墙的两个轴线上, 将这两个轴线内退以展示柜的方式呈现,内凹的造型延伸并捕捉光线 且将这三个区域配置灯条,即便至夜晚也能看见光的轨迹。 空间中传递温度的介质有数种,引进光线是物理上的温度传导。 量体平衡是心理上的舒适柔和,所有材质搭建皆以暖色调为开端。 平衡的同时也模糊了内外的界定,即便空间单面采光却总是能感觉到煦煦暖阳。"
  • 图片
  • 图片
  • 图片
  • 图片
  • 图片
  • 图片
  • 图片
  • 图片
  • 图片
  • 图片
  • 图片
  • 图片
  • 图片
  • 上一个 下一个
    《金腾奖优秀作品年鉴》 私宅丨地产丨餐饮丨酒店丨办公丨商业丨公共丨产品丨公益丨人气 jintengAWARD(小金_金腾奖组委会) 广州市海珠区琶洲大道68号华新中心21楼
    金腾奖视频号 金腾奖小红书号 监制:闫虹
    统筹:吴佳佳
    运营:朱倩仪 王赫萱 张芷莹 胡岚恩 小金
    新媒体:王贝贝 严洁 侯乐 鹅姐
    经纪:刘译遥 石征 曹凯月
    技术:张桐 黄天佑
    最终解释权归金腾奖主办方所有