view 18
作品详情
  • Details of the work 标题横线
    头像或者logo
    图片 艾马室内装修设计 i室设圈漂亮家居设计家特约推荐
    城市:台湾
    公司:艾马室内装修设计
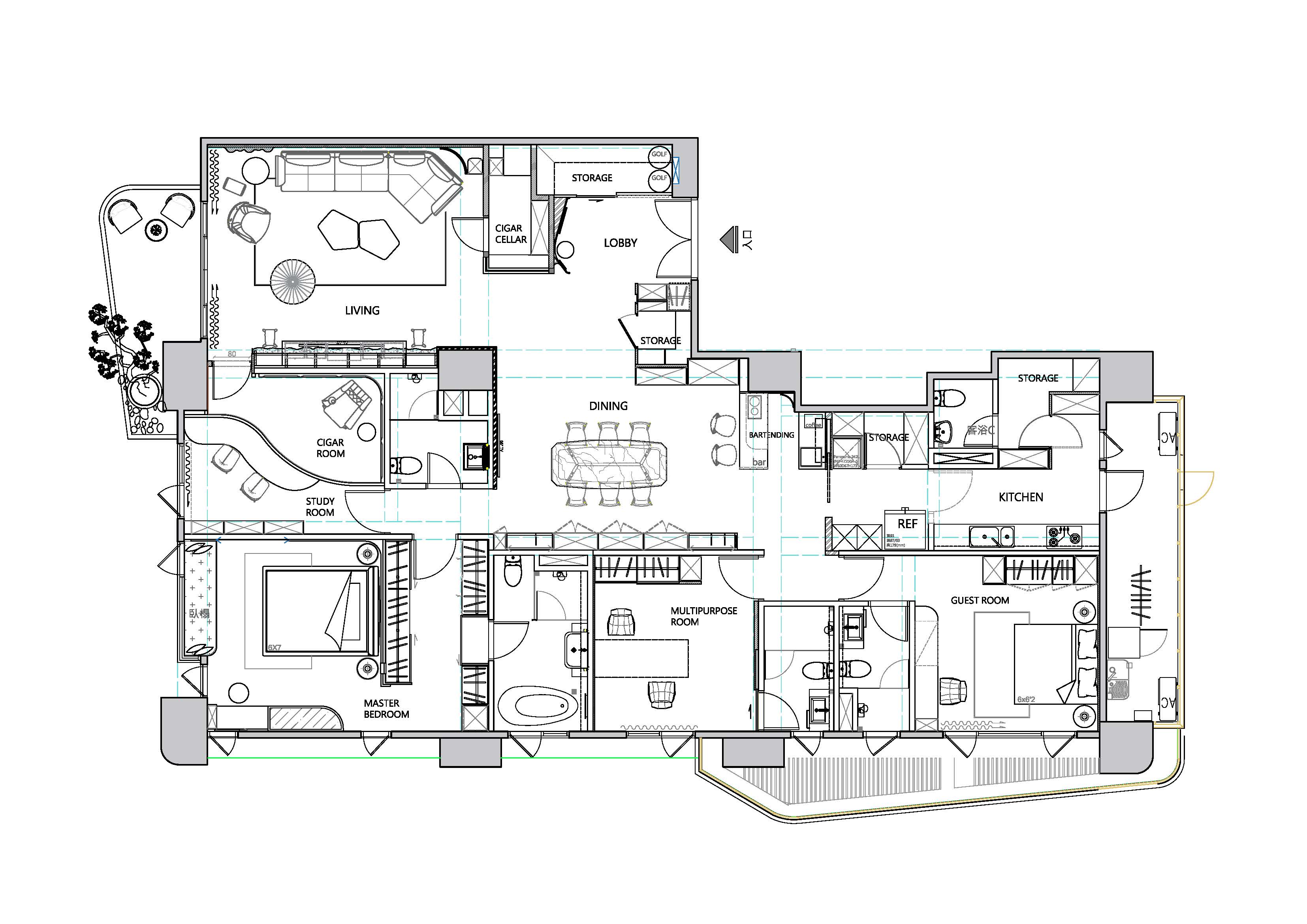
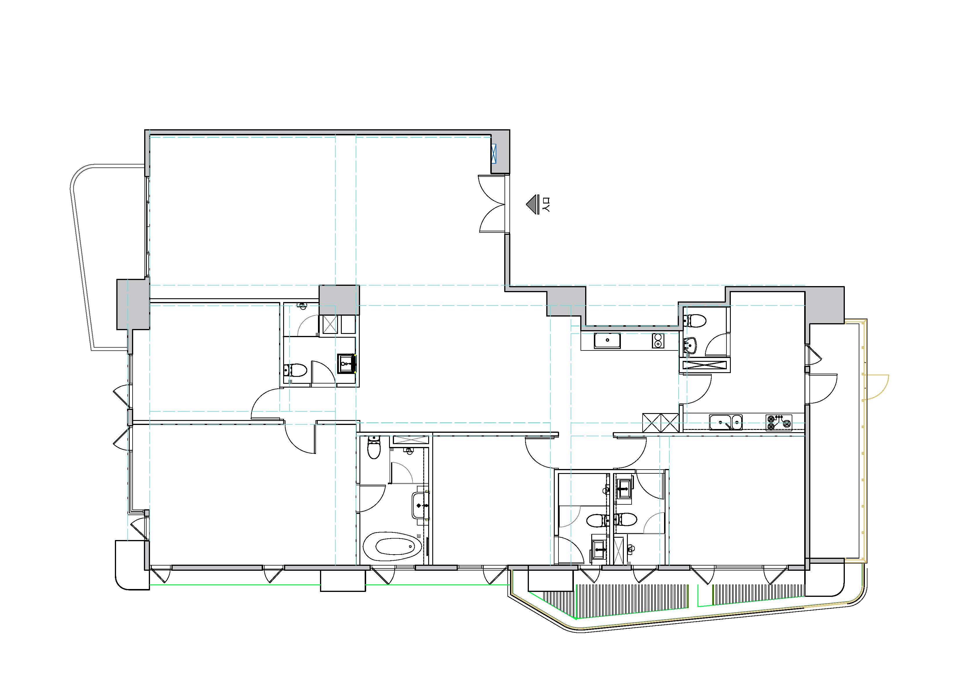
    参赛作品: 眺18
    空间类型:公寓(150㎡以下)
    个人/公司简介:
    "梦想的捷径,生活要令空间有灵魂的呈现。『This is my mind.』我们的『视』界;设计等于梦想,design=dream. 于是dd attitude 就是我们要呈现的。 得奖经历: 2021年:德国iF Design Award 、意大利 A-Design Award 银牌及铜牌 2023年:GOOD DESIGN EXHIBITION、第八届金邸奖 "
    设计说明 | Design Instruction
  • "「热爱挑战、丰富生活、体验人生更多的可能性。」 这是年轻屋主带给我们的印象及态度,然而在既有但无法满足屋主对空间的需求下,我们将空间打破再重组,解决不足及分散的区域关系,利用形的突破与材质的运用来呼应屋主对家的想象及生活态度,让每一个角落存在着旅游世界的惊喜,同时感受家的温馨舒适且自由自在。 为了在公领域新增具备隐密感的雪茄室,将连接客厅的多功能室利用「曲」面划分为二并把原有过大的轻食区划分给厨房及调酒吧台区使用,除了增加厨房机能外也满足餐厅及吧台的连接性,更加串联起屋主平时的使用需求及互动感受。 整体设计以灰阶色为空间的主轴,纯手工的涂料纹理表现出百变的样貌,搭配丰富的原石纹理材质提升层次,浑然天成的石皮表层及天然堆积成的大理石纹路,附着着屋主对大自然的热爱及悸动,在过于低矮的梁带上贴附镀钛板平衡视觉比例,并带入不同的斜面及弧形进而勾勒出不同空间的高低感受,木质地板的串联平衡了这股冲动感,增添家的温度及舒适度,彷彿在家能无时无刻尽情享受大自然并与此共生。"
  • 图片
  • 图片
  • 图片
  • 图片
  • 图片
  • 图片
  • 图片
  • 图片
  • 图片
  • 图片
  • 图片
  • 图片
  • 图片
  • 图片
  • 上一个 下一个
    《金腾奖优秀作品年鉴》 私宅丨地产丨餐饮丨酒店丨办公丨商业丨公共丨产品丨公益丨人气 jintengAWARD(小金_金腾奖组委会) 广州市海珠区琶洲大道68号华新中心21楼
    金腾奖视频号 金腾奖小红书号 监制:闫虹
    统筹:吴佳佳
    运营:朱倩仪 王赫萱 张芷莹 胡岚恩 小金
    新媒体:王贝贝 严洁 侯乐 鹅姐
    经纪:刘译遥 石征 曹凯月
    技术:张桐 黄天佑
    最终解释权归金腾奖主办方所有