Gathering House
作品详情
  • Details of the work 标题横线
    头像或者logo
    图片 禾筑国际室内装修有限公司 i室设圈漂亮家居设计家特约推荐
    城市:台湾
    公司:禾筑国际室内装修有限公司
    参赛作品: 齐东食舍
    空间类型:民宿
    个人/公司简介:
    "创造安定的疗愈空间 擅长突破制式化的设计 创造空间的变化性 以探索事物的本质去思考如何赋予空间生命 禾筑设计建造空间的架构步骤运用 圣经耶利米书中的概念,拔出-拆毁-建造-栽植的过程 "
    设计说明 | Design Instruction
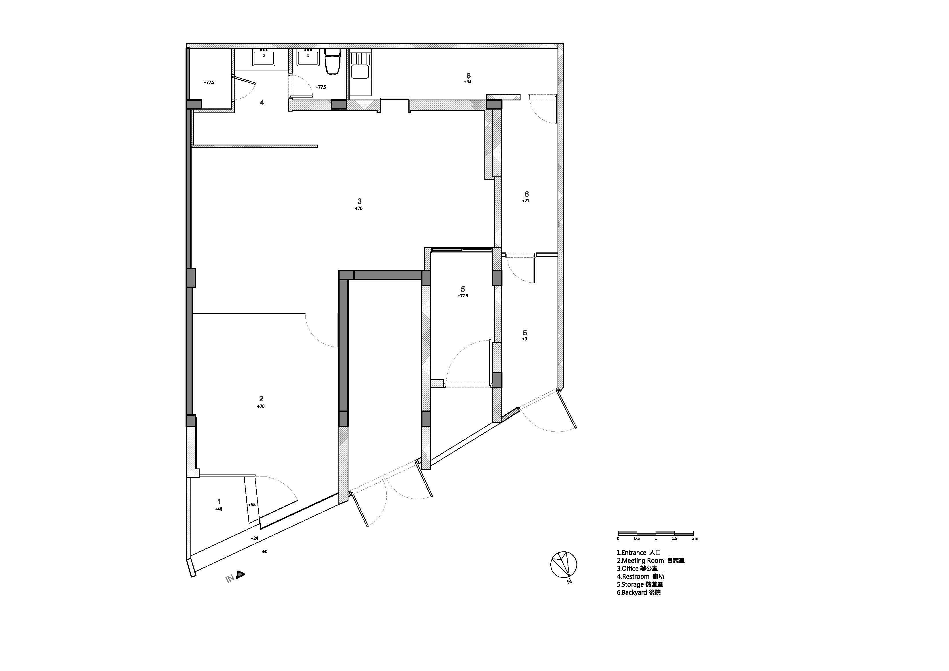
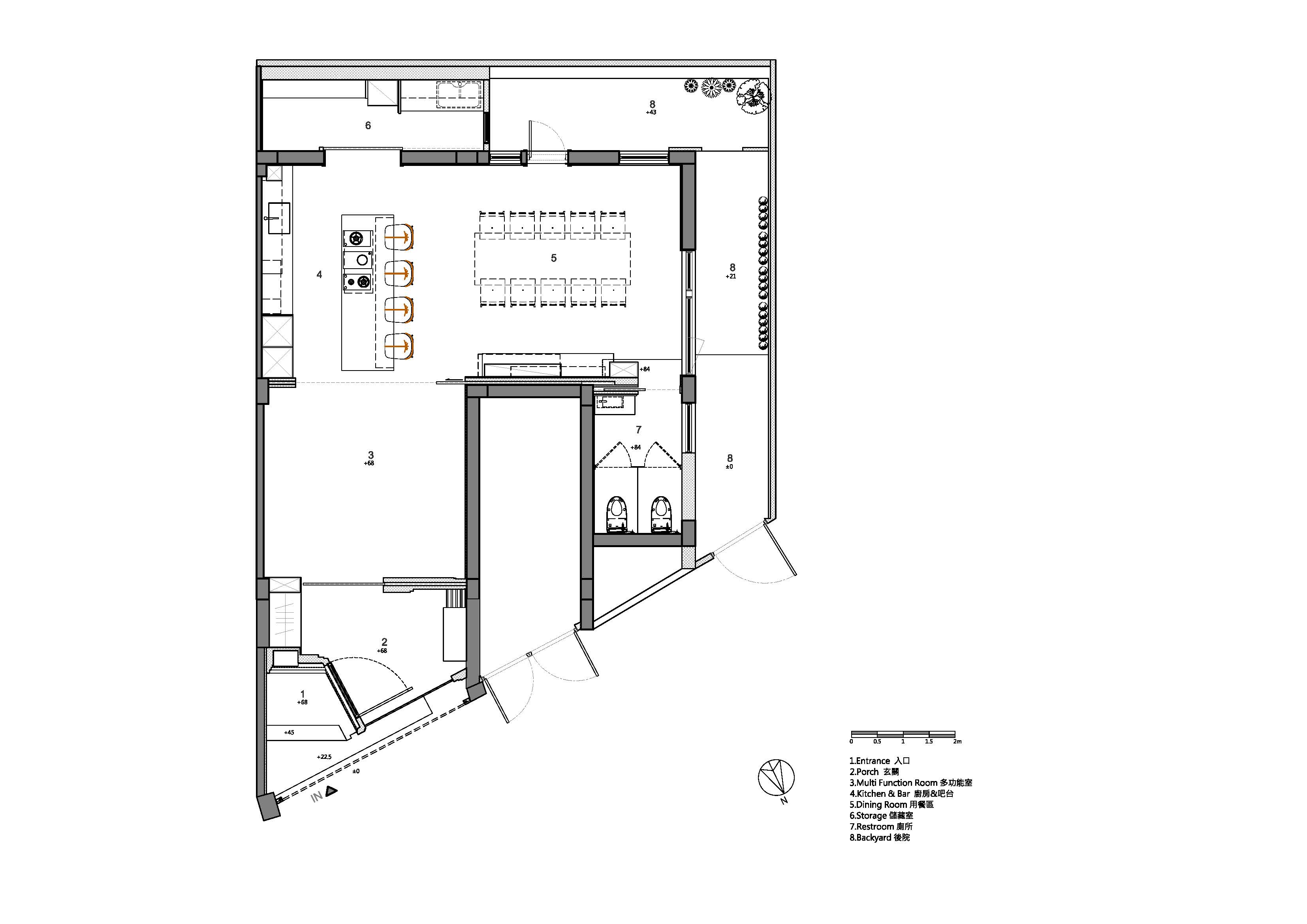
  • "「施比受更为有福」,业主设立此食舍&厨房是供应给家族的家人聚集凝聚的地方。在人生努力有所获时愿意付出给予,让家人定时凝聚的场所,尤其在疫情这三年半餐厅不开放,有一个能够让家人朋友安心舒心聚集的地方是如此的可贵,促使这个私人餐厅厨房诞生。 案件位于车水马龙中的台北市中心巷内,老屋改造的一楼邻街,踏上台阶,让入口转侧并退缩路面,以矿物特殊漆的低调外观,洗石子地坪材质,形塑玄关区恬静沉稳氛围,沉淀来宾心情,使之忘却身处都市中心的纷扰。 空间中自身条件即自然形成使用区域的划分,除了厨房设备功能,用餐区,需要能同时容纳30人餐会的空间。我们规划前区放空作为多功能及弹性使用空间,与厨房用餐区之间增设巨型大拉门,门片隐藏于用餐区的茶水柜墙面。 从外玄关进入宽敞的内玄关,来宾脱下外出鞋,穿上舒服的室内拖开始转换放松的心情,拉开喷砂面金属玻璃门进入,眼前展现完整的中岛厨房,末端呈现禅意的大片锯齿质感实木格栅门,而门后方空间设置一大片业主收藏放置的锅具架墙面及洗涤区于一角。将必要收纳自然融合于原始墙面及空间分区划分处,其余空间保持其开放性及弹性,如有特殊需求可以选择用隐藏式大拉门分界。 保留原窗户尽量让自然光进到室内,空间中高225公分处环绕实木条,在视觉上以禅意意象处理,也在其间设置条灯照明补足空间环境光,减少为了照明降低天花高度。 厨房中岛与餐桌位置及茶水柜墙面的关系考虑业主使用的顺畅便利性而设置。 材质色彩以仿石纹灰色地面搭配实木格栅及锯齿质感实木,玄关大门及厨具门片的仿红锈纹理材质,砖红色铁件烤漆层板与同色金属玻璃门,这些点缀,增添了空间中的线条与温暖。让心在这里慢慢地静下来,不被过多元素干扰,而能自然享受专注于人与人的互动上。"
  • 图片
  • 图片
  • 图片
  • 图片
  • 图片
  • 图片
  • 图片
  • 图片
  • 图片
  • 图片
  • 图片
  • 图片
  • 图片
  • 图片
  • 上一个 下一个
    《金腾奖优秀作品年鉴》 私宅丨地产丨餐饮丨酒店丨办公丨商业丨公共丨产品丨公益丨人气 jintengAWARD(小金_金腾奖组委会) 广州市海珠区琶洲大道68号华新中心21楼
    金腾奖视频号 金腾奖小红书号 监制:闫虹
    统筹:吴佳佳
    运营:朱倩仪 王赫萱 张芷莹 胡岚恩 小金
    新媒体:王贝贝 严洁 侯乐 鹅姐
    经纪:刘译遥 石征 曹凯月
    技术:张桐 黄天佑
    最终解释权归金腾奖主办方所有