Le Ciel
作品详情
  • Details of the work 标题横线
    头像或者logo
    图片 禾筑国际室内装修有限公司 i室设圈漂亮家居设计家特约推荐
    城市:台湾
    公司:禾筑国际室内装修有限公司
    参赛作品: 穹苍
    空间类型:公寓(150㎡以下)
    个人/公司简介:
    "创造安定的疗愈空间 擅长突破制式化的设计 创造空间的变化性 以探索事物的本质去思考如何赋予空间生命 禾筑设计建造空间的架构步骤运用 圣经耶利米书中的概念,拔出-拆毁-建造-栽植的过程 "
    设计说明 | Design Instruction
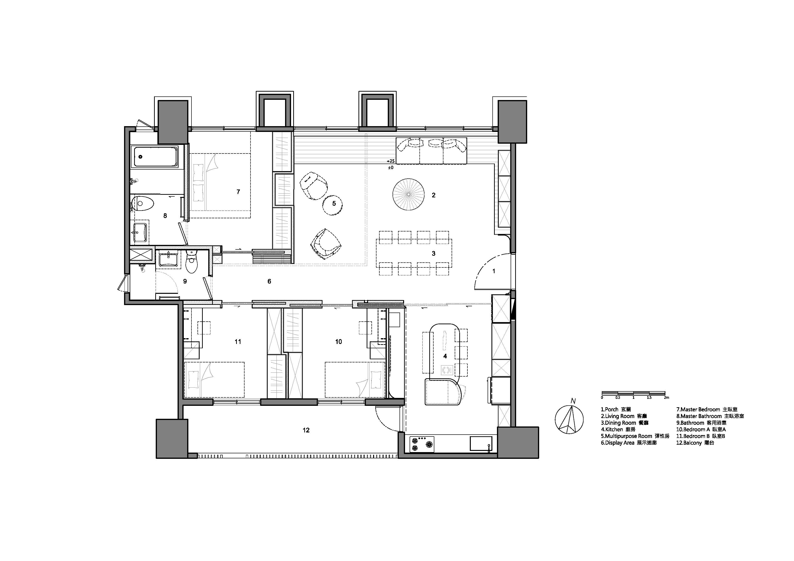
  • "天空湛蓝,绿草如茵,徜徉于微风中,与三五好友席地而坐,谈天说笑,生活好不惬意。 公共空间模拟悠闲的户外情境,为好客的屋主在天花做了圆弧曲线,形构苍穹意象,再划出宽敞自由的开放式弹性格局,体现减法美学,转译屋主简单从容的生活态度。 步入室内,入口左侧的圆弧而柔美线条,也跃上天花板、中岛桌、餐厅主墙等处,串联起场域间的关系。客厅画出流畅抛物线,形成开阔苍穹,也将视觉无限延伸。沿着墙面设置整面满足屋主收纳需求的灰白色柜体,柜体下方植入镂空木质抽屉,延展至窗前,转化为大尺度长卧榻,作为休憩、阅读的小天地,也可当作临时座位。中央留白,能摆上大餐桌定义出亲友聚会的开放餐厅,也可放上座椅变身舒适客厅,或者作为屋主伸展筋骨的空间,拥有多元变化性。 开阔的客餐厅,隐藏了一间弹性房间。屋主可将收在廊道间的门片拿出,嵌入水蓝绿色万象轨道上,轻松多隔出一间隐蔽性高的客房。 餐厨区以玻璃拉门切分出独立场域,且精算柜体门片的格栅间距,使门片边缘恰巧落于凹陷处,呈显细节美感。格栅柜体旁改设置灰色门片的收纳柜,隐喻着空间已然切换,也调和轻浅色调的浮动感,对侧曲型墙面则改置入半高矮柜平衡视觉重量。 厨具前增设中岛,隐性分出厨房区,亦提升机能性,而衔接中岛的大尺度餐桌,不仅是餐叙时的要角,也可作为家人看电视、绘图、阅读的书桌,满足各式需求。 主卧床头染上暖和的奶茶橘,搭配灯光轰衬出立体感,旁侧卫浴则以隐藏门片抹除存在感,呈现利落观感,床尾虽然规划了足量机能,却不忘以线条与局部挖空手法,淡化量体感,营造淡然无压的优质舒眠环境。"
  • 图片
  • 图片
  • 图片
  • 图片
  • 图片
  • 图片
  • 图片
  • 图片
  • 图片
  • 图片
  • 图片
  • 图片
  • 图片
  • 图片
  • 上一个 下一个
    《金腾奖优秀作品年鉴》 私宅丨地产丨餐饮丨酒店丨办公丨商业丨公共丨产品丨公益丨人气 jintengAWARD(小金_金腾奖组委会) 广州市海珠区琶洲大道68号华新中心21楼
    金腾奖视频号 金腾奖小红书号 监制:闫虹
    统筹:吴佳佳
    运营:朱倩仪 王赫萱 张芷莹 胡岚恩 小金
    新媒体:王贝贝 严洁 侯乐 鹅姐
    经纪:刘译遥 石征 曹凯月
    技术:张桐 黄天佑
    最终解释权归金腾奖主办方所有