Nefelibata
作品详情
  • Details of the work 标题横线
    头像或者logo
    图片 一己空间制作室内装修有限公司 i室设圈漂亮家居设计家特约推荐
    城市:台湾
    公司:一己空间制作室内装修有限公司
    参赛作品: 霏
    空间类型:公寓(150㎡以下)
    个人/公司简介:
    "2022 Asia Design Prize WINNER 2021 NOVUM Design Award 银奖 2021 MUSE Design Award 金奖、银奖 2020 APDC SPACE WIZARDS AWARD 伯鲁比空间魔法师大赛 佳作 2020 法国INNODESIGN PRIZE 优秀奖 2019 她设计奖2019年度优秀空间设计奖"
    设计说明 | Design Instruction
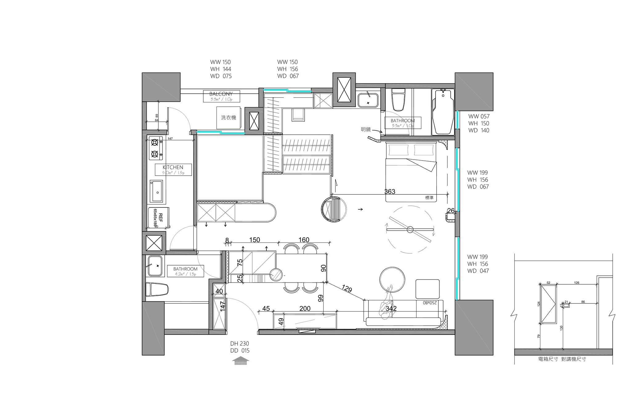
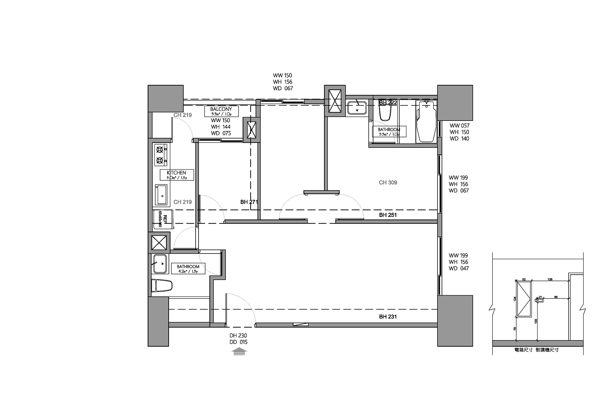
  • "Seizing days, and turning your story. 生活情境与空间的排列组合,在调节步调节奏之余,亦展露一种率真的格调个性。 玄关处的波浪流线设计,兼具穿鞋椅实用功能,满足视觉审美与生活机能性;另模拟屋主返家的动线惯习,将其延伸连接至中岛及餐桌区域,除了呈现宅居的体面大器,亦藉中岛设计区隔玄关与餐桌,界定空间独立性。 以玻璃砖短墙区隔出次卧空间,隐约的划分感营造亲而不暱、疏而不离,恰到好处的空间距离让生活更自在舒心。 公领域的灰调墙面呈现家徽元素,围塑联系情感的氛围。旋转式的电视墙设计,契合随性的家居需求,赋予空间运用变化与弹性;深木色圆柱收纳摺叠拉门,做为弹性区分客厅与寝卧的屏蔽,保留空间开阔感之余,也使空间活化以兼容不同的格局,让独处空间惬意通透,亦留有相聚时的隐私分界,满足各式型态的日常情境与生活心境。 主卧床头墙面色漆与公领域色调相呼应,并于侧边设计一处斜面,切划出简约帽架,以素面圆钉作为挂勾而显精简大方。卫浴墙面以水墨纹理作为铺缀花纹,定义出个别界域感;沿着帽架墙面方向延伸,留有一隅更衣区域,亦能做为知性的书房空间,于其中蕴藉。 徜徉在舒心的宅居空间,与生活互动而共鸣;让空间的脉络依循日常的轨迹 ,划分出弹性的界域。"
  • 图片
  • 图片
  • 图片
  • 图片
  • 图片
  • 图片
  • 图片
  • 图片
  • 图片
  • 图片
  • 图片
  • 图片
  • 图片
  • 上一个 下一个
    《金腾奖优秀作品年鉴》 私宅丨地产丨餐饮丨酒店丨办公丨商业丨公共丨产品丨公益丨人气 jintengAWARD(小金_金腾奖组委会) 广州市海珠区琶洲大道68号华新中心21楼
    金腾奖视频号 金腾奖小红书号 监制:闫虹
    统筹:吴佳佳
    运营:朱倩仪 王赫萱 张芷莹 胡岚恩 小金
    新媒体:王贝贝 严洁 侯乐 鹅姐
    经纪:刘译遥 石征 曹凯月
    技术:张桐 黄天佑
    最终解释权归金腾奖主办方所有