The Flow of Light
作品详情
  • Details of the work 标题横线
    头像或者logo
    图片 叙研设计有限公司 i室设圈漂亮家居设计家特约推荐
    城市:台湾
    公司:叙研设计有限公司
    参赛作品: 琉光寓所
    空间类型:公寓(150㎡以下)
    个人/公司简介:
    "富有悠游于空间美学的余裕 保持从容 且讲究精致生活的态度 并于意念上展现追求超然卓越的企图 --- 曾获得 A' Design Award/Muse Design Awards International Property Awards (IPA) ArchDaily Building of the Year iF Design Award 等设计奖项"
    设计说明 | Design Instruction
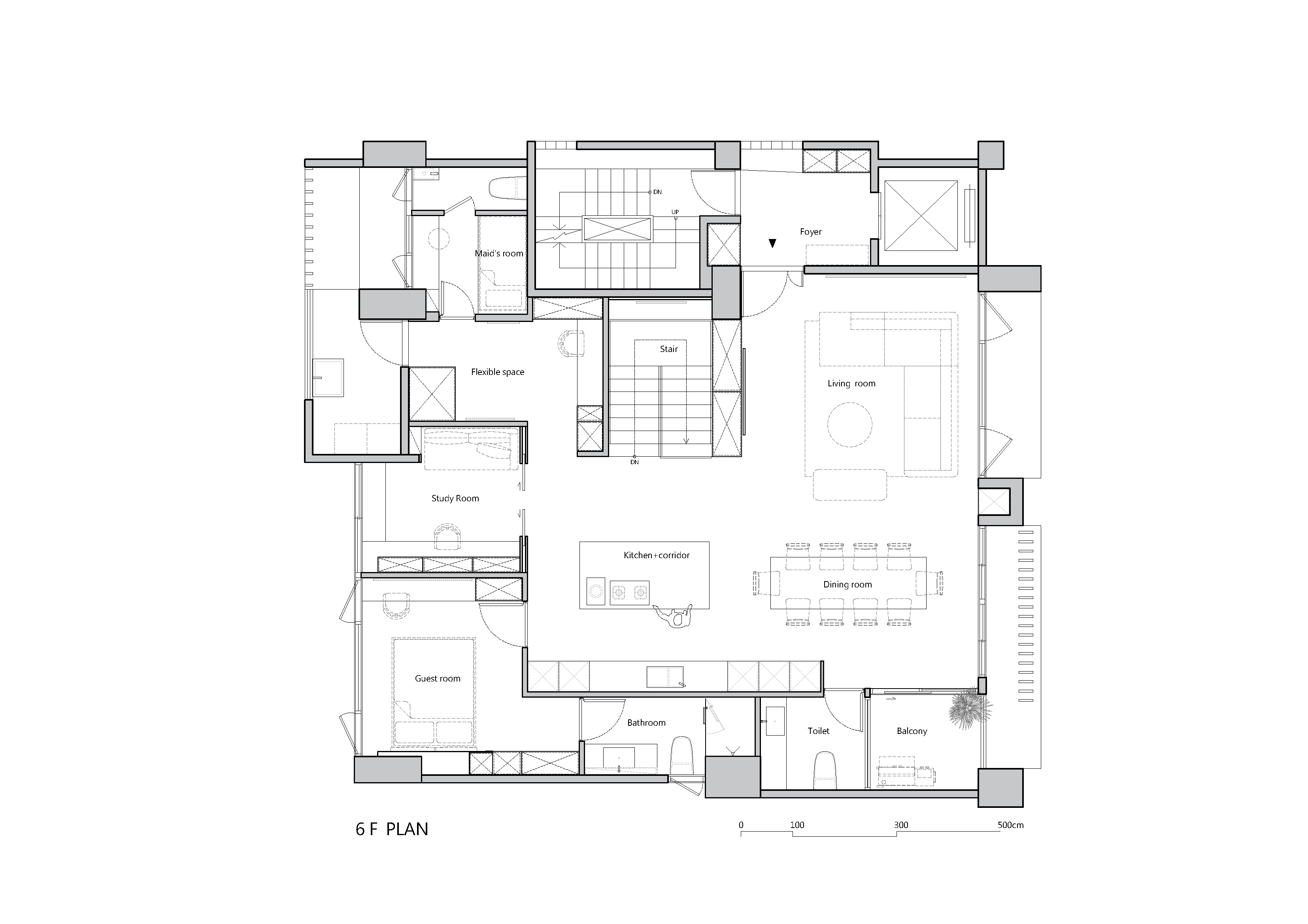
  • "这是一个属于艺术品藏家的私宅,由两个白色方盒相互交叠,利用光廊楼梯串联,穿越其中如沐在千住博《DAY FALLS / NIGHT FALLS》的光影瀑布意象下,让艺术张力扩大生活的想象。 空间布局上,楼上为公共领域,极为重视光线与穿透性,大尺度的餐桌与中岛空间为家人互动的生活核心。下层入口以原木雕塑作为空间轴心,围绕着起居空间,包含多功能空间可提供瑜伽练习和孩子游戏的场域及房间。材质挑选考虑到无毒环保等要素,具有地质学专业背景的业主挑选了台湾的花岗岩作为中岛与地板,期望能与在地连结。 在此住屋中,艺术与设计融合为一,呈现出刚柔并济的简约美学,让人感受到犹如回到苏黎世的氛围。空间本身即是一件立体创作,将生活的场景与收藏成为空间演示的主角。"
  • 图片
  • 图片
  • 图片
  • 图片
  • 图片
  • 图片
  • 图片
  • 图片
  • 图片
  • 图片
  • 图片
  • 图片
  • 图片
  • 图片
  • 图片
  • 上一个 下一个
    《金腾奖优秀作品年鉴》 私宅丨地产丨餐饮丨酒店丨办公丨商业丨公共丨产品丨公益丨人气 jintengAWARD(小金_金腾奖组委会) 广州市海珠区琶洲大道68号华新中心21楼
    金腾奖视频号 金腾奖小红书号 监制:闫虹
    统筹:吴佳佳
    运营:朱倩仪 王赫萱 张芷莹 胡岚恩 小金
    新媒体:王贝贝 严洁 侯乐 鹅姐
    经纪:刘译遥 石征 曹凯月
    技术:张桐 黄天佑
    最终解释权归金腾奖主办方所有