JUNESHAN
作品详情
  • Details of the work 标题横线
    头像或者logo
    图片 NX设计 橙设传媒特约推荐
    城市:温州
    公司:NX设计
    参赛作品: JUNESHAN
    空间类型:办公
    个人/公司简介:
    NX 设计,是由倪伟锋先生与项舒倩女士夫妻搭档在 2019 年创立于温州。用严谨 专注用心的态度去负责每一个项目,以质量、细节和耐用性作为对每个项目的基 本要求。目前主要的服务项目包括住宅空间、别墅、办公空间、商业空间、艺术 空间等,提供全案硬装设计与软装设计。NX 以其高端和个性化的客户战略,深 得客户信赖,致力为客户带来通透舒适的设计。
    设计说明 | Design Instruction
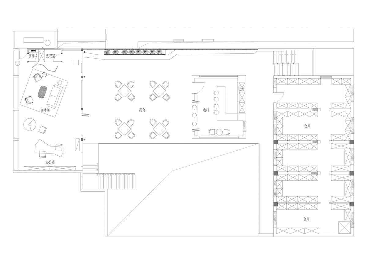
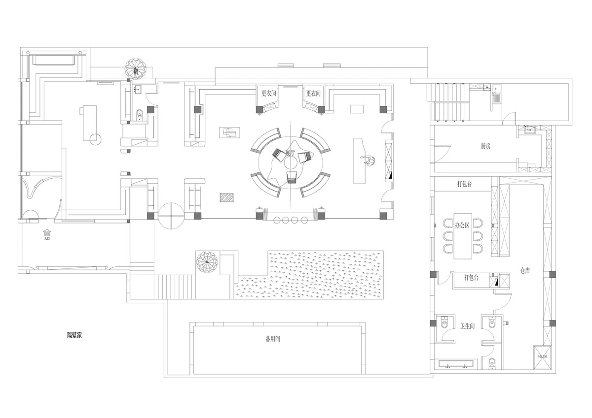
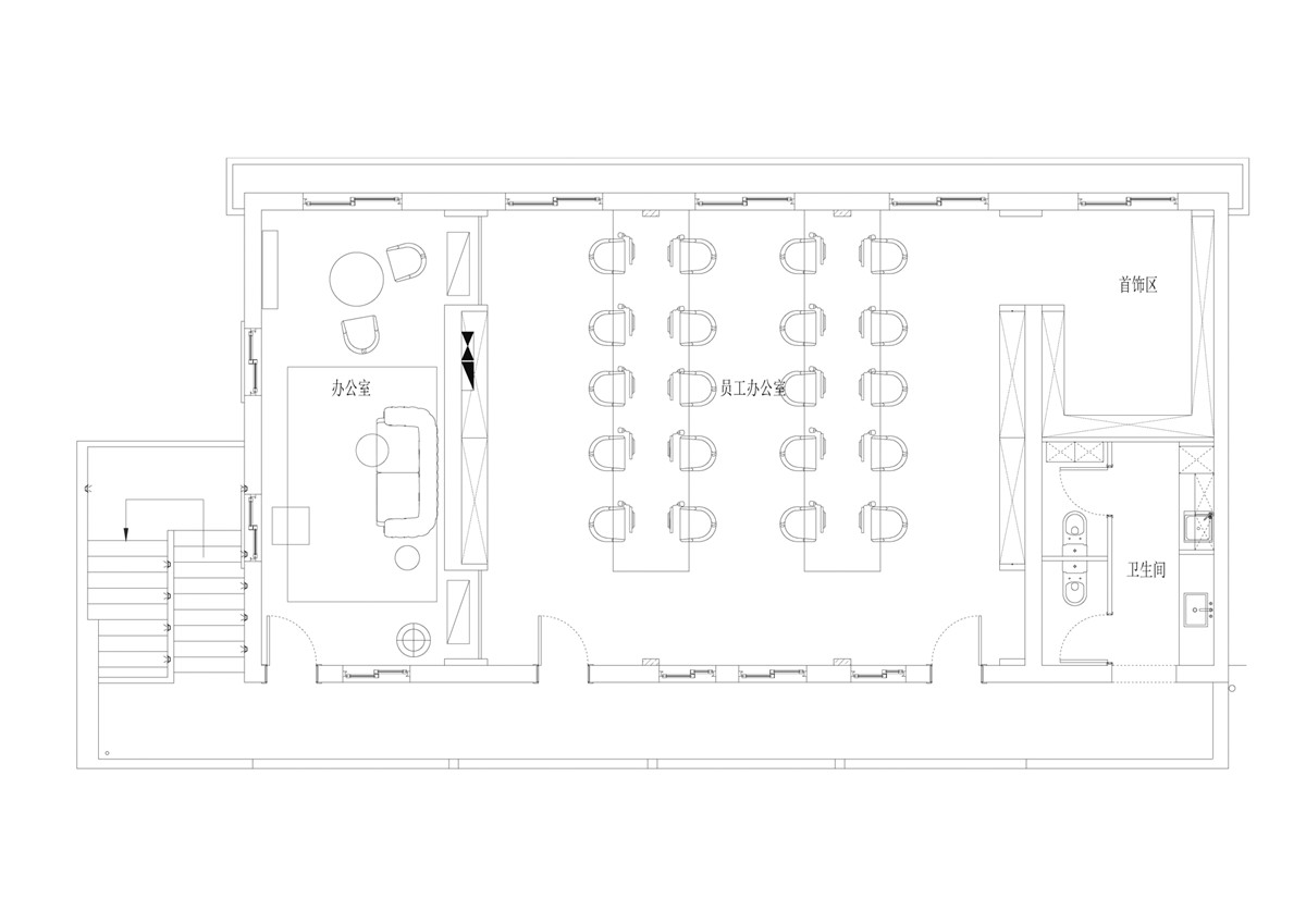
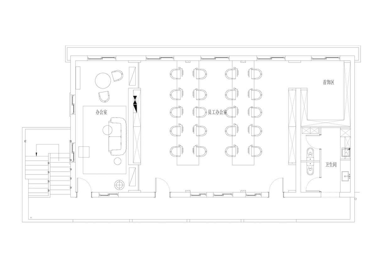
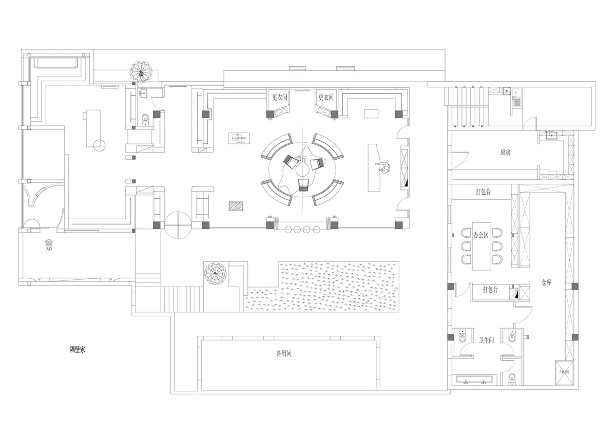
  • 雾散微熹,细⾬晓莺 空⽓中漫着⼀股⼦微湿的潮⽓ 是温州的清晨。待到阳光正暖,⽇影攀斜 这间坐落于⽼旧城区的服装买⼿店 被影影倬倬的光影晃醒,开启⼀天的慢享⽣活 ⼊⼝处错落的弧⾯引领向内,围合⽽来形成具象空间,沿结构分布展陈区域,线条错落,细碎的光影侵透⽽来,勾勒⼏何形状。 沿建筑结构向内⽽⾏ 圆弧形装置将空间划为对称性分布形式 外与内,明与暗的对⽐,秩序井然 光随落地窗映⼊空间,渐淡渐暗,层次分明。 空间与院落相彼相⽣ 四季更替的浪漫被书写进建筑的起势中 室内是随季节⽽不断更新的服饰物品 室外则是四季本⾝ 春抽嫩芽,夏荫成影,秋落⻩叶,冬⾄肃杀 空间仿佛会⽣⻓,会变换,有其⾃⾝迸发的⽣命⼒ 中⼼区域打开分为四个块⾯,光线得以从四⾯⼋⽅灌⼊其间。外为展陈,内部形成天然的洽谈空间,同时可作通道,贯穿前后,指引向吧台区域。空间奶油⽩为底,红檀⽊佐于其间,温暖⼜有质感的氛围氤氲。迎着骄阳⽇照,在盛夏的午后明艳动⼈。 透过展开的窗台,室内外的界限被打破 ⾥外交融,满院绿意⼊境 草⻓莺⻜,满⽬掩翠 可以斜倚在窗台的软垫上 捧⼀杯温热的咖啡 鼻尖萦绕烘烤过咖啡⾖焦⾹的⻛味 混着泥⼟淡淡的潮⽓,闭眼 院落⾃然⽣⻓,建筑与⾃然,融为⼀体 踏⼊⼆层,设有对外的咖啡店,尊重原建筑的屋檐结构,保持材质粗糙质朴的肌理质感,尽可能地引光⼊室,延伸出露台,午后阳光洒落,⼩坐⽚刻,清⻛拂⾯,咖啡⾹⽓满盈,清爽与温暖,粗粝与细腻,都随着这虚度的光阴,四散在明媚的时节⾥。 另设有洽谈空间,满⽬苍翠迎窗⽽来 拢于室内,由若画作 较于⼀层的舒展与透⽓,⼆层则偏于温暖私密 沙发围合⽽坐,⾊彩活泼明朗,⽓质温润 设计赋予不同空间不同功能定位 并尤其展开叙述 得到不同使⽤情境下的不同场景 是为“千变万化,惟意所适” ⼀叶落⽽秋意⽣。形似落叶的装置看似随意落于室外,⼜似⼀叶扁⾈,晃荡于丛⽣的⻘草之上,浩然缥缈,寂 然有趣。设计对于空间来说,需尊崇在地性的考虑,在有限的条件内⽣发,⽼旧居⺠楼内藏着的⼩⼩四合院,是⼀场如同爱丽丝漫游仙境般的奇遇记。
  • 图片
  • 图片
  • 图片
  • 图片
  • 图片
  • 图片
  • 图片
  • 图片
  • 图片
  • 图片
  • 图片
  • 图片
  • 图片
  • 图片
  • 图片
  • 图片
  • 图片
  • 图片
  • 图片
  • 图片
  • 图片
  • 图片
  • 图片
  • 图片
  • 图片
  • 图片
  • 图片
  • 图片
  • 图片
  • 图片
  • 图片
  • 图片
  • 图片
  • 图片
  • 图片
  • 图片
  • 图片
  • 图片
  • 图片
  • 图片
  • 图片
  • 图片
  • 图片
  • 图片
  • 图片
  • 图片
  • 图片
  • 图片
  • 图片
  • 图片
  • 图片
  • 图片
  • 图片
  • 图片
  • 图片
  • 图片
  • 图片
  • 图片
  • 图片
  • 图片
  • 图片
  • 图片
  • 图片
  • 图片
  • 图片
  • 图片
  • 图片
  • 图片
  • 图片
  • 图片
  • 图片
  • 图片
  • 图片
  • 图片
  • 图片
  • 图片
  • 图片
  • 图片
  • 图片
  • 图片
  • 图片
  • 图片
  • 图片
  • 图片
  • 图片
  • 图片
  • 上一个 下一个
    《金腾奖优秀作品年鉴》 私宅丨地产丨餐饮丨酒店丨办公丨商业丨公共丨产品丨公益丨人气 jintengAWARD(小金_金腾奖组委会) 广州市海珠区琶洲大道68号华新中心21楼
    金腾奖视频号 金腾奖小红书号 监制:闫虹
    统筹:吴佳佳
    运营:朱倩仪 王赫萱 张芷莹 胡岚恩 小金
    新媒体:王贝贝 严洁 侯乐 鹅姐
    经纪:刘译遥 石征 曹凯月
    技术:张桐 黄天佑
    最终解释权归金腾奖主办方所有