Simple art
作品详情
  • Details of the work 标题横线
    头像或者logo
    图片 NX设计 橙设传媒特约推荐
    城市:温州
    公司:NX设计
    参赛作品: 简单的艺术
    空间类型:公寓(150㎡以下)
    个人/公司简介:
    NX 设计,是由倪伟锋先生与项舒倩女士夫妻搭档在 2019 年创立于温州。用严谨 专注用心的态度去负责每一个项目,以质量、细节和耐用性作为对每个项目的基 本要求。目前主要的服务项目包括住宅空间、别墅、办公空间、商业空间、艺术 空间等,提供全案硬装设计与软装设计。NX 以其高端和个性化的客户战略,深 得客户信赖,致力为客户带来通透舒适的设计。
    设计说明 | Design Instruction
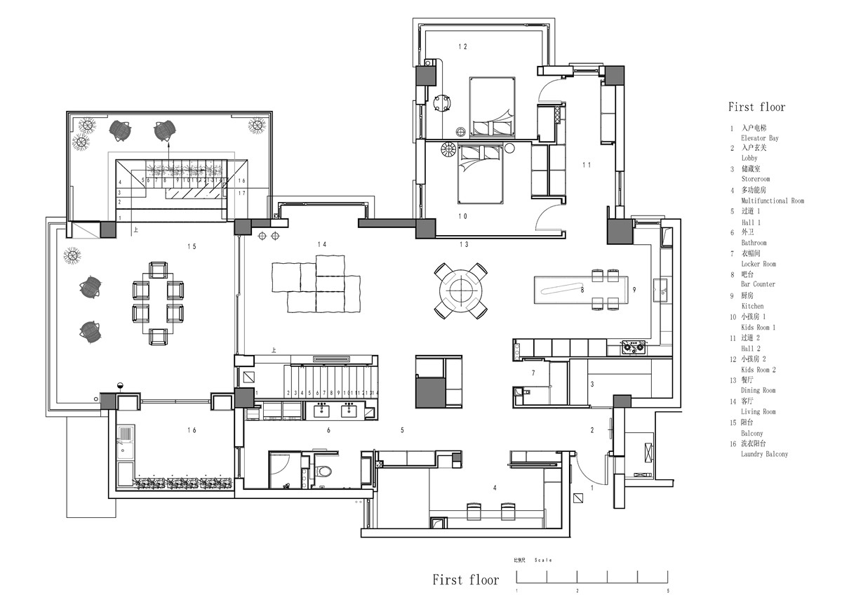
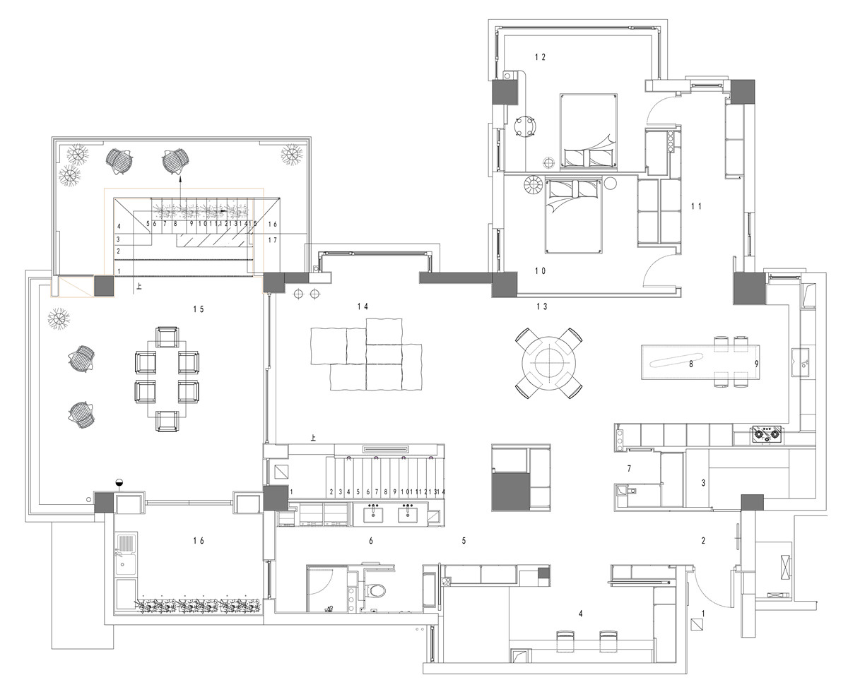
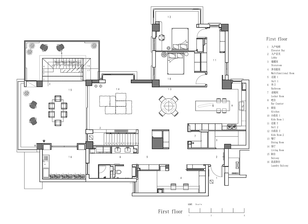
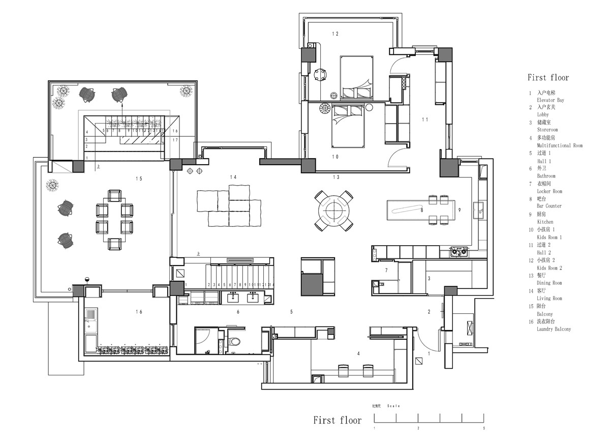
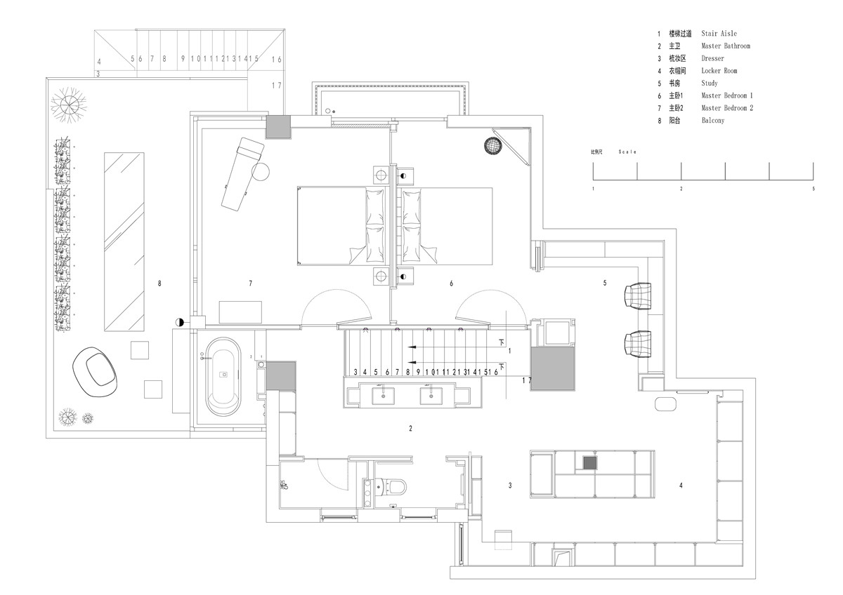
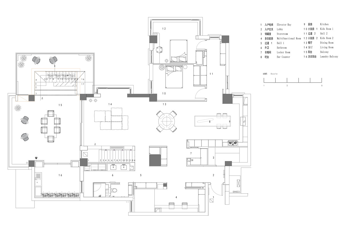
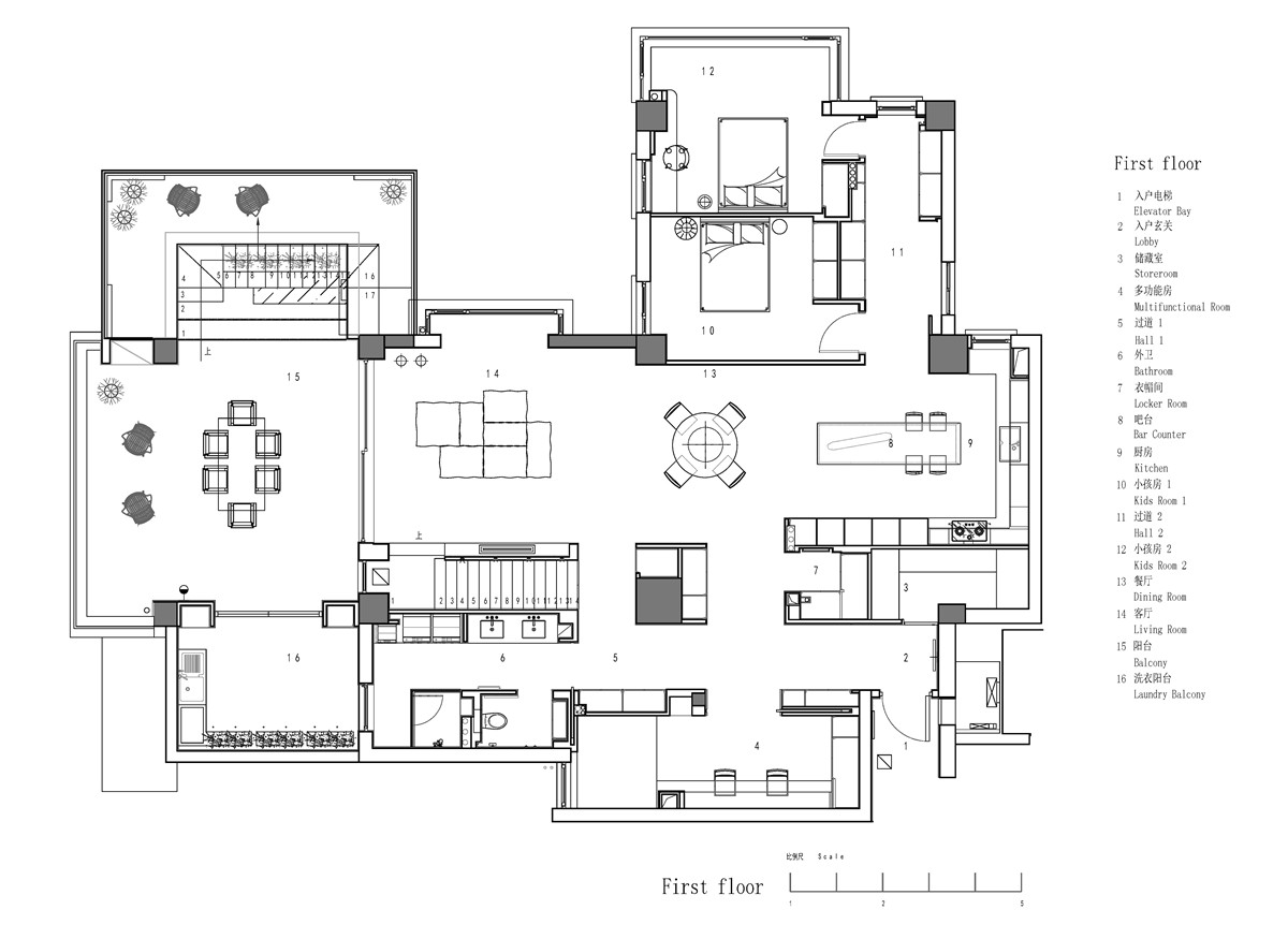
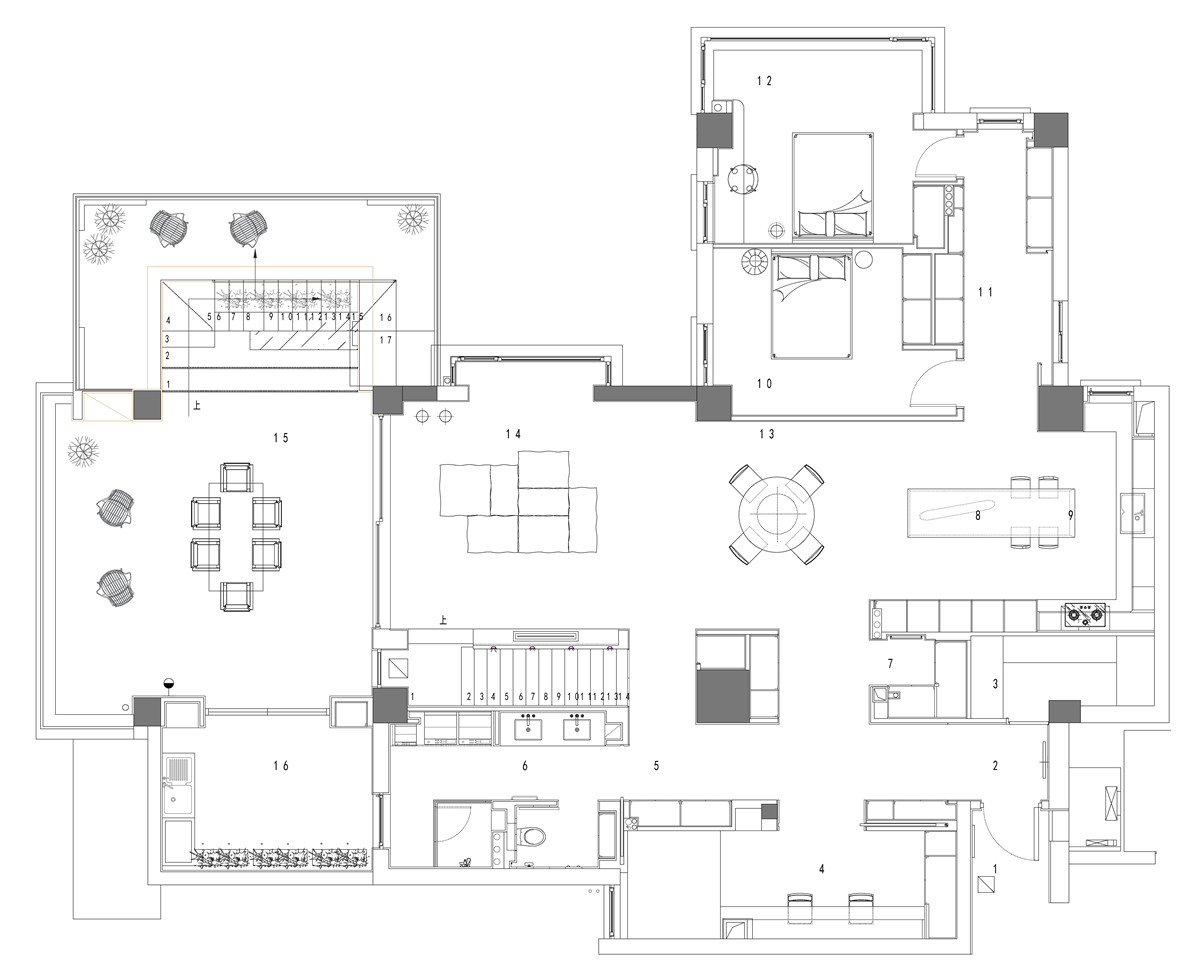
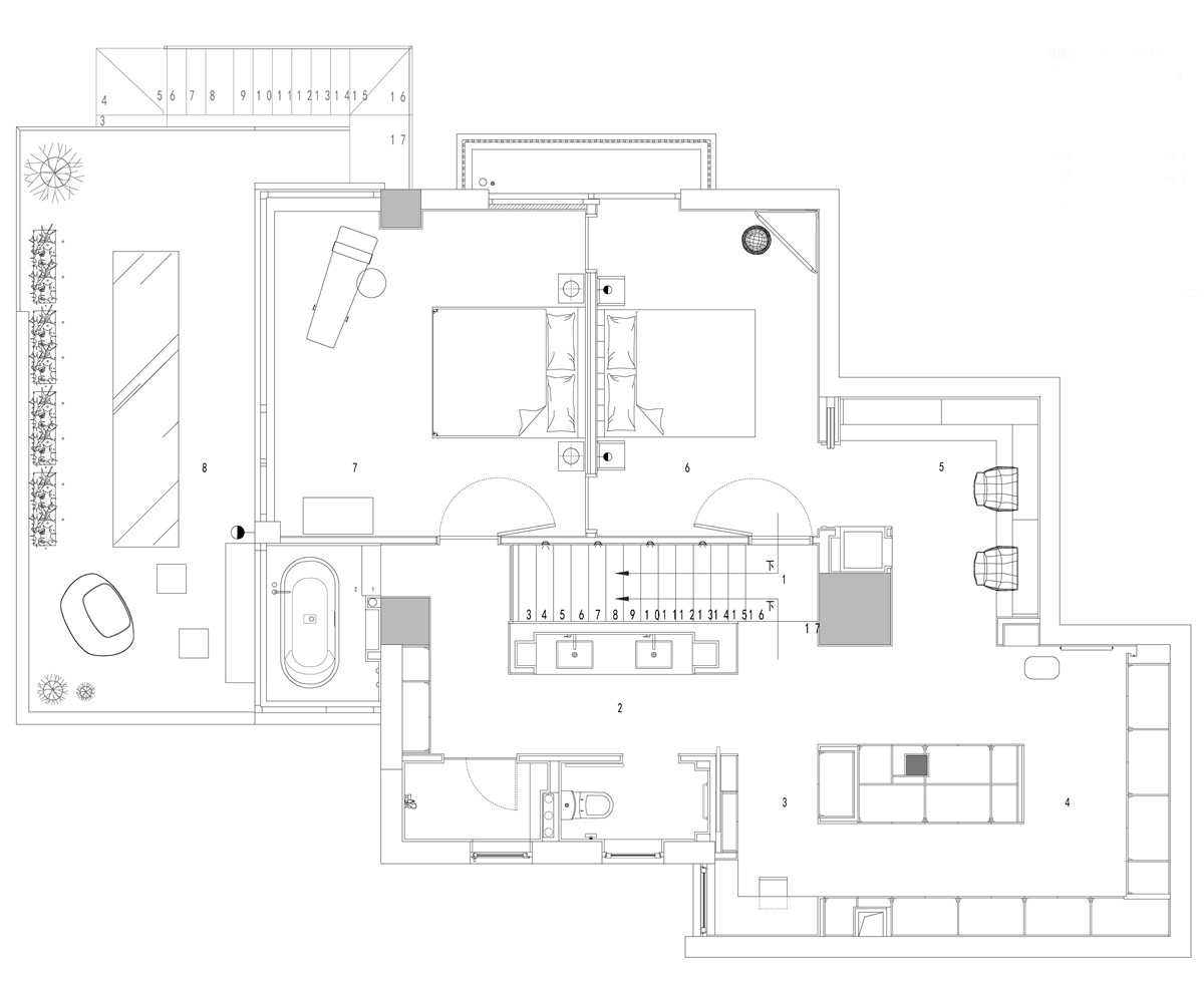
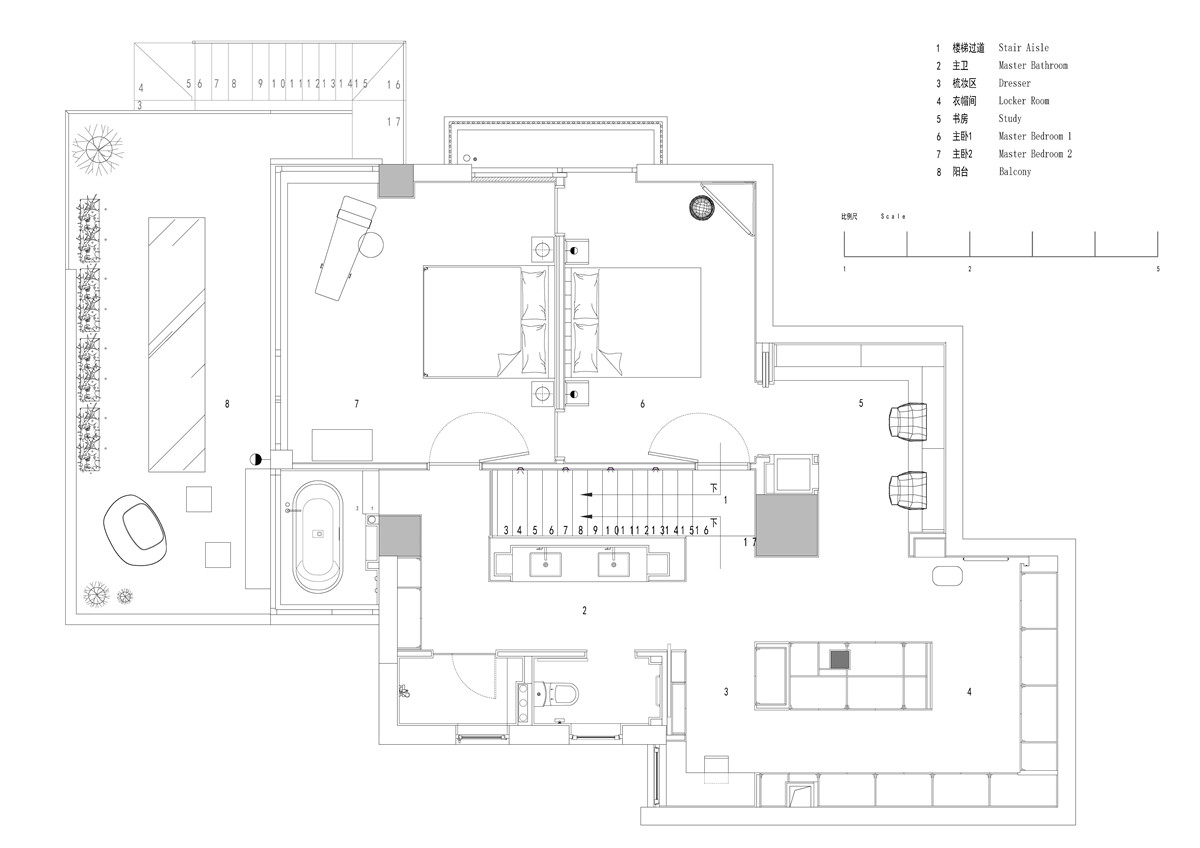
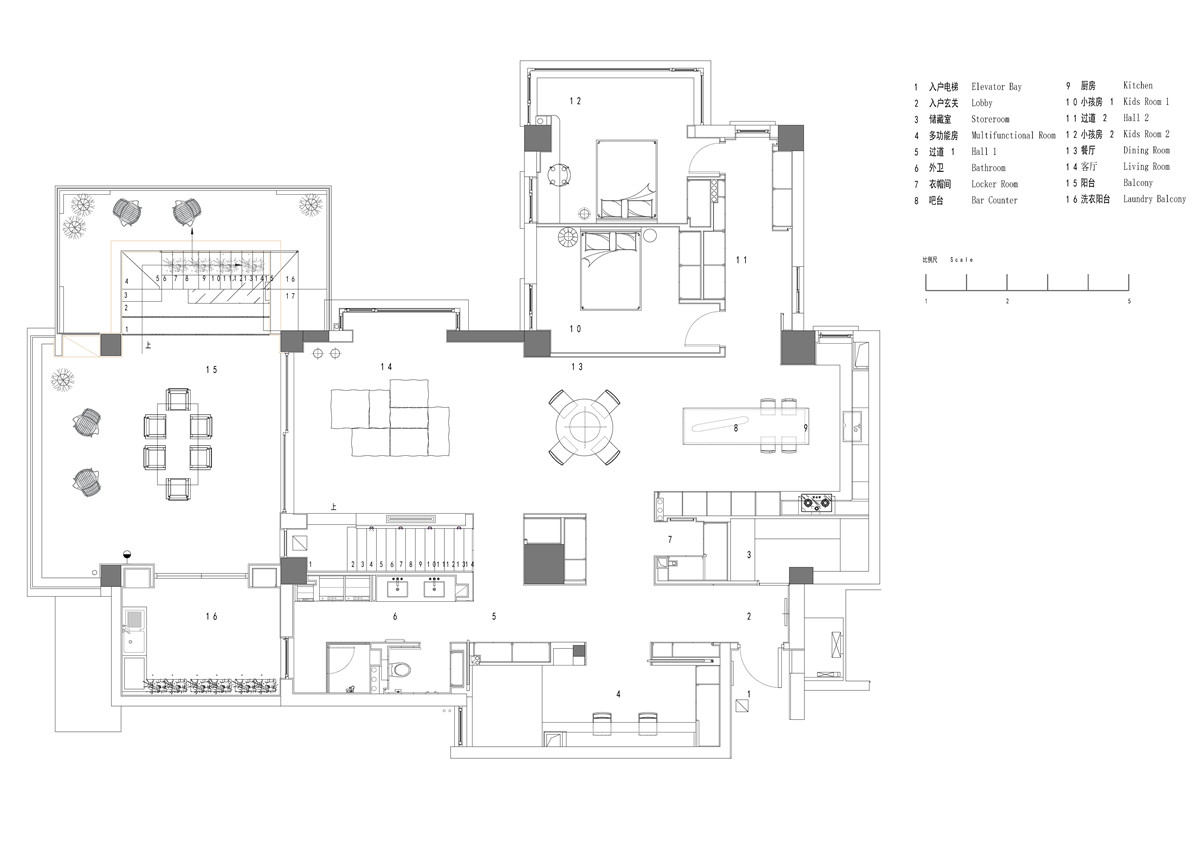
  • 设计师夫妇倪伟锋与项舒倩,喜欢一切简单纯粹的事物,他们的作品里,总是富有力量与深意。而对于“家”的规划,他们追求精神世界的绝对纯洁与干净,试图寻找一方能让人静下来的居所,且能承载日常迸发的有趣灵感。 本案位于温州市中心,紧邻浙江第一高楼——世贸大厦,优渥的地理位置与绝佳视野也同样带来了相对嘈杂的空间环境,而对于NX夫妇来说,“静”是他们在这个家的改造中,面对的第一个问题。 关于安静的两道课题 一是空间本身的绝对安静 二是人居于空间内的心静 对于静的理解,NX夫妇有自己的坚持。 “静”一方面代表着空间场域的绝对安静, 另一方面他们希望能够得到心灵上的安静。 对于前者,他们通过挑选隔音的窗户,以及全屋系统的隔音处理,达到相对寂静的室内环境。而关于后者,灵魂上的安静,源自于设计师对空间的理解,源自于与自然的相对平衡,这也引申到了本案的第二大主题——“自然”。 一个好的设计可以 感受到大自然的转变 设计师将空间大面积敞开,以落地窗的形式迎接阳光的照射,随着一日的日升日落,阳光以不同的角度照射入室内,你可以在空间的各个区域感受到来自阳光的转变,仿佛是光围着空间在游走,不断展示着一日之中的无穷变幻。 人虽居于室内,却能感受到来自户外的光影流转,感受清晨拂晓的微光,感受午间恣意而热烈的暖阳,以及属于傍晚的温柔黄昏。 光透过不同的结构、材质、肌理……留下不同的光影构造,这是设计师玄妙的手笔,对空间本身不加修饰,而是通过光与影,为丰富的结构描红,不动声色地展示空间最本身的魅力——结构之美。 将露台营造成空中花园,以敞开的形式与外界联通,置身其间时,位于地面的城市公园与空中的人工花园,仿佛融于一体,形成立体的自然联动,天空与地面的界限逐渐模糊。 家之于人 应是以体验感为先 我们无法去定义一个空间是否成功, 但对于家居空间来说,适配主人日常生活, 且能带动生活习惯的正向发展,是无可非议的。 为了营造一个明亮通透的空间,设计师以打开的手法将空间各处紧密相连,以餐厅为中心向外辐射,去除不必要的隔断,光在空间中自然流淌,不被结构束缚。 同时,完全开放的空间带来更亲密的家居体验,亲情不再被框架所阻隔,使家庭成员间的交流更轻松舒适。 包括二楼的主卧空间,不似寻常的绝对私密,而是即融合又独立,严谨的办公与惬意的居家,也并不对立,在适宜的空间里,为各种生活方式留有余地。 至于女儿们的房间,并没有为了迎合空间的整体性而去延续清爽简单的装扮,而是在尊重孩子自身喜好的前提下去规划。设计师希望在这个家中,每个人都能有一方完全属于自己的空间,不因一切外物所妥协。 细节处的点睛之笔 源自对生活的认真与执着 NX夫妇在看过了太多复杂的装饰之后,愈发向往绝对的纯粹与干净,并热衷于在日常生活中,收集能够带来灵感的小物件。 大面积的储物空间,营造“空无一物”的生活体验。学会“藏”与“守”,是维持干净简约生活的必经之路。 日常生活中的收集,逐渐填入空间中,家居空间有意思之处便是这随着生活而日渐丰盈的人情味。每一个看似简单的物件,对于主人来说,都承载着无可替代的记忆。 他们从四十多平方米的住宅,搬入这四百多平方米的空间中,需要转变的不仅仅是生活方式,更是对于空间的理解。他们将小空间中“藏”的概念,运用于如今大的空间里,释放更多的“空”交予“间”,形成纯粹而有质感的生活方式。
  • 图片
  • 图片
  • 图片
  • 图片
  • 图片
  • 图片
  • 图片
  • 图片
  • 图片
  • 图片
  • 图片
  • 图片
  • 图片
  • 图片
  • 图片
  • 图片
  • 图片
  • 图片
  • 图片
  • 图片
  • 图片
  • 图片
  • 图片
  • 图片
  • 图片
  • 图片
  • 图片
  • 图片
  • 图片
  • 图片
  • 图片
  • 图片
  • 图片
  • 图片
  • 图片
  • 图片
  • 图片
  • 图片
  • 图片
  • 图片
  • 图片
  • 图片
  • 图片
  • 图片
  • 图片
  • 图片
  • 图片
  • 图片
  • 图片
  • 图片
  • 图片
  • 图片
  • 图片
  • 图片
  • 图片
  • 图片
  • 图片
  • 图片
  • 图片
  • 上一个 下一个
    《金腾奖优秀作品年鉴》 私宅丨地产丨餐饮丨酒店丨办公丨商业丨公共丨产品丨公益丨人气 jintengAWARD(小金_金腾奖组委会) 广州市海珠区琶洲大道68号华新中心21楼
    金腾奖视频号 金腾奖小红书号 监制:闫虹
    统筹:吴佳佳
    运营:朱倩仪 王赫萱 张芷莹 胡岚恩 小金
    新媒体:王贝贝 严洁 侯乐 鹅姐
    经纪:刘译遥 石征 曹凯月
    技术:张桐 黄天佑
    最终解释权归金腾奖主办方所有