Sit down in time
作品详情
  • Details of the work 标题横线
    头像或者logo
    图片 NX设计 橙设传媒特约推荐
    城市:温州
    公司:NX设计
    参赛作品: 在光阴里落座
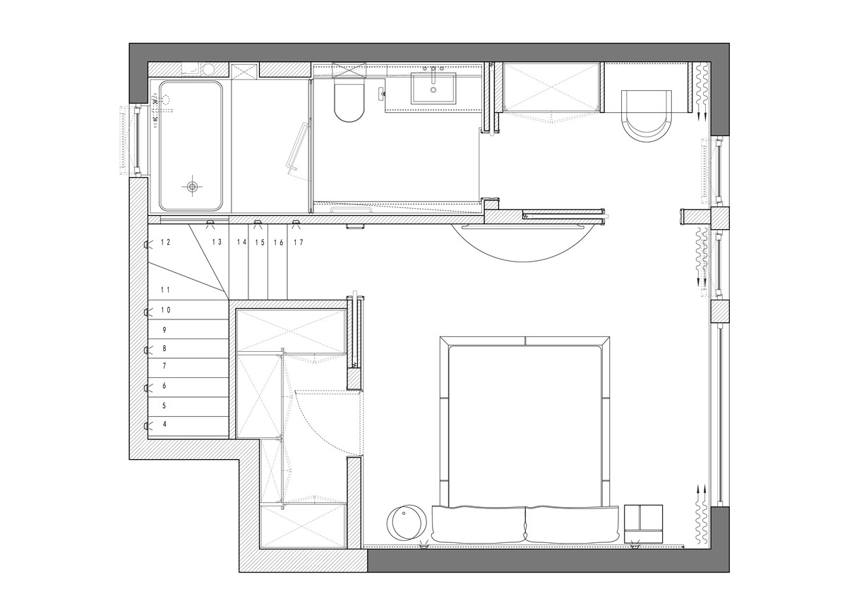
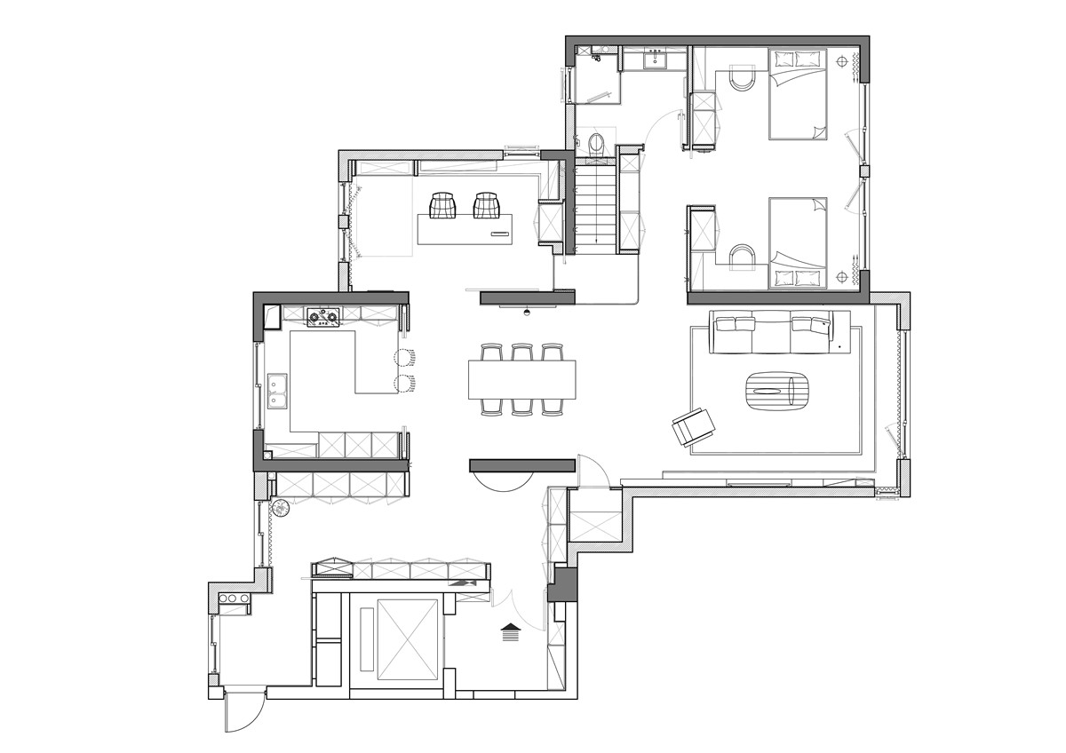
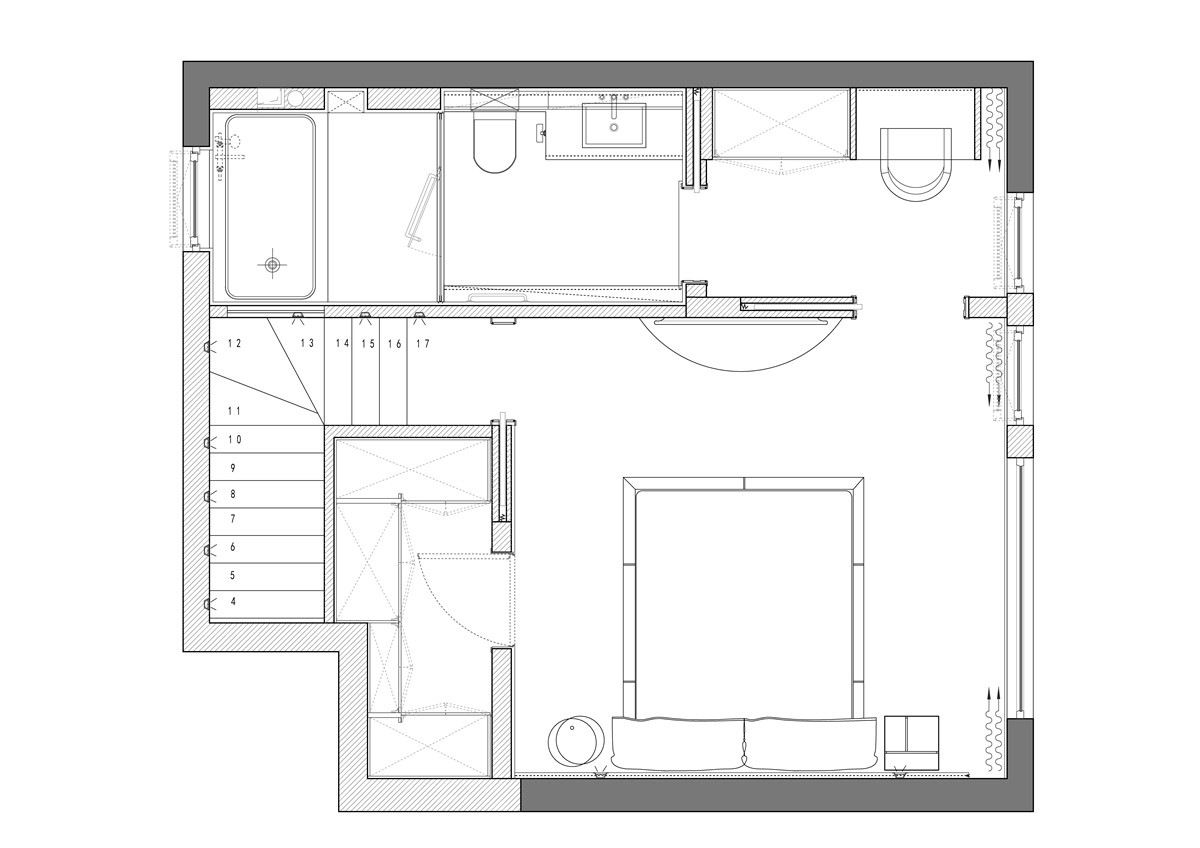
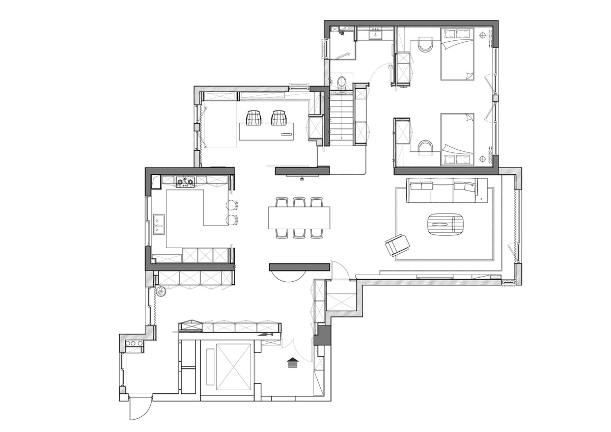
    空间类型:公寓(150㎡以下)
    个人/公司简介:
    NX 设计,是由倪伟锋先生与项舒倩女士夫妻搭档在 2019 年创立于温州。用严谨 专注用心的态度去负责每一个项目,以质量、细节和耐用性作为对每个项目的基 本要求。目前主要的服务项目包括住宅空间、别墅、办公空间、商业空间、艺术 空间等,提供全案硬装设计与软装设计。NX 以其高端和个性化的客户战略,深 得客户信赖,致力为客户带来通透舒适的设计。
    设计说明 | Design Instruction
  • 自然界的光线,射入空间落下不同的形状。淅沥的雨落下,在建筑的周遭留下参差的声响。夏季燥热,寻一处阴影揣着团扇慢慢摇晃;冬日严寒,裹一条毛毯在阳光下舒服地闭上眼。 生活中的美总被忙碌的脚步掩藏,而家的意义,便是辟下这处让人沉静下来的空间得以观自在。 空间无界,素净起笔 依玄关而入,空间被划分为两个块面。 一面是厨房空间的烟火寥寥,代表生活;一面是客厅向光而生的生长力,表达理想。餐厅置于其间,形成天然的中心,空间相互串联,不做打断,于是空气是流通的,人在其中的行动也变得顺畅无拘。 空间予人,灵魂相安。 打开式布局,我们希望空间的属性被模糊,无有固式。家是属于自由的,人亦是如此。色调简明而意趣,既生动又温柔。 最是中意这客厅一角,色彩明亮却不过分张扬,人陷入沙发的包裹之中,再披上一层毛毯,空调的风也被驱散地和缓。恰好迎着阳光落座,满目木色在光影下,质感柔和细腻,光阴似水流长,享受空间本身带来的情绪感染力,一切都变得轻慢。 白纸为底,空间入画 关于家的意象,被刻画了太多的意义,负载了太多的情绪,但剥离开一层层外壳,最终唯余「简」。恰如一袭画作,浓墨重彩的底会限制想象,不如一张白纸来的通透。 设计亦如作画,恰到好处的留白,空间中的轻重缓急层次分明,剩下的,则交给漫无目的飘散的思绪,交给生活本身。设计是希望提供一种生活方式,在经年的浸润中,给予你对生活的把控力。 在时光里落座是静心以赏四时景是平念以听万物声 而家的美好之处,是以恬淡的心缓缓添置这素白的空间,最终在年岁的累积中,成为居住者内心的外在刻画。独一无二,也饱含深情。
  • 图片
  • 图片
  • 图片
  • 图片
  • 图片
  • 图片
  • 图片
  • 图片
  • 图片
  • 图片
  • 图片
  • 图片
  • 图片
  • 图片
  • 图片
  • 图片
  • 图片
  • 图片
  • 图片
  • 图片
  • 图片
  • 图片
  • 图片
  • 图片
  • 图片
  • 图片
  • 图片
  • 图片
  • 图片
  • 图片
  • 图片
  • 图片
  • 图片
  • 图片
  • 图片
  • 图片
  • 图片
  • 图片
  • 图片
  • 图片
  • 图片
  • 图片
  • 图片
  • 图片
  • 图片
  • 图片
  • 图片
  • 图片
  • 图片
  • 图片
  • 图片
  • 图片
  • 图片
  • 图片
  • 上一个 下一个
    《金腾奖优秀作品年鉴》 私宅丨地产丨餐饮丨酒店丨办公丨商业丨公共丨产品丨公益丨人气 jintengAWARD(小金_金腾奖组委会) 广州市海珠区琶洲大道68号华新中心21楼
    金腾奖视频号 金腾奖小红书号 监制:闫虹
    统筹:吴佳佳
    运营:朱倩仪 王赫萱 张芷莹 胡岚恩 小金
    新媒体:王贝贝 严洁 侯乐 鹅姐
    经纪:刘译遥 石征 曹凯月
    技术:张桐 黄天佑
    最终解释权归金腾奖主办方所有