Youth and Poetry
作品详情
  • Details of the work 标题横线
    头像或者logo
    图片 陈锋 橙设传媒特约推荐
    城市:温州
    公司: 璞素空间设计
    参赛作品: 青春与诗章
    空间类型:办公
    个人/公司简介:
    璞素设计事务所设计总监 荣誉奖项 入选《中国室内设计年鉴》 2021TINTA 金邸奖 商业空间 提名奖 2020 酷+创造营全国六强 2020 金腾奖全国 TOP100 强 2020 年陈设中国·晶麒麟奖 优秀奖 2020 第十八届国际设计传媒奖 年度软装陈设空间大奖 2020 老宅新生设计奖 年度最佳商业空间 2020 红棉奖室内设计奖 2020 年第十五届金外滩奖-最佳休闲空间 优秀奖 2020 金堂奖年度杰出休闲娱乐空间设计 2020 金住奖最佳居住空间 2020-2021 筑巢奖商业空间-休闲娱乐 优秀奖 2020 中国设计头条年鉴榜 年度优秀设计项目 2020 年 40unedr40 中国(温州)杰出青年城市榜 第八届中国国际城市设计周 2020 年度设计行业菁英人物 2018 金外滩奖居住空间类优秀奖
    设计说明 | Design Instruction
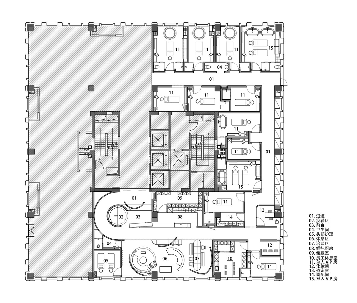
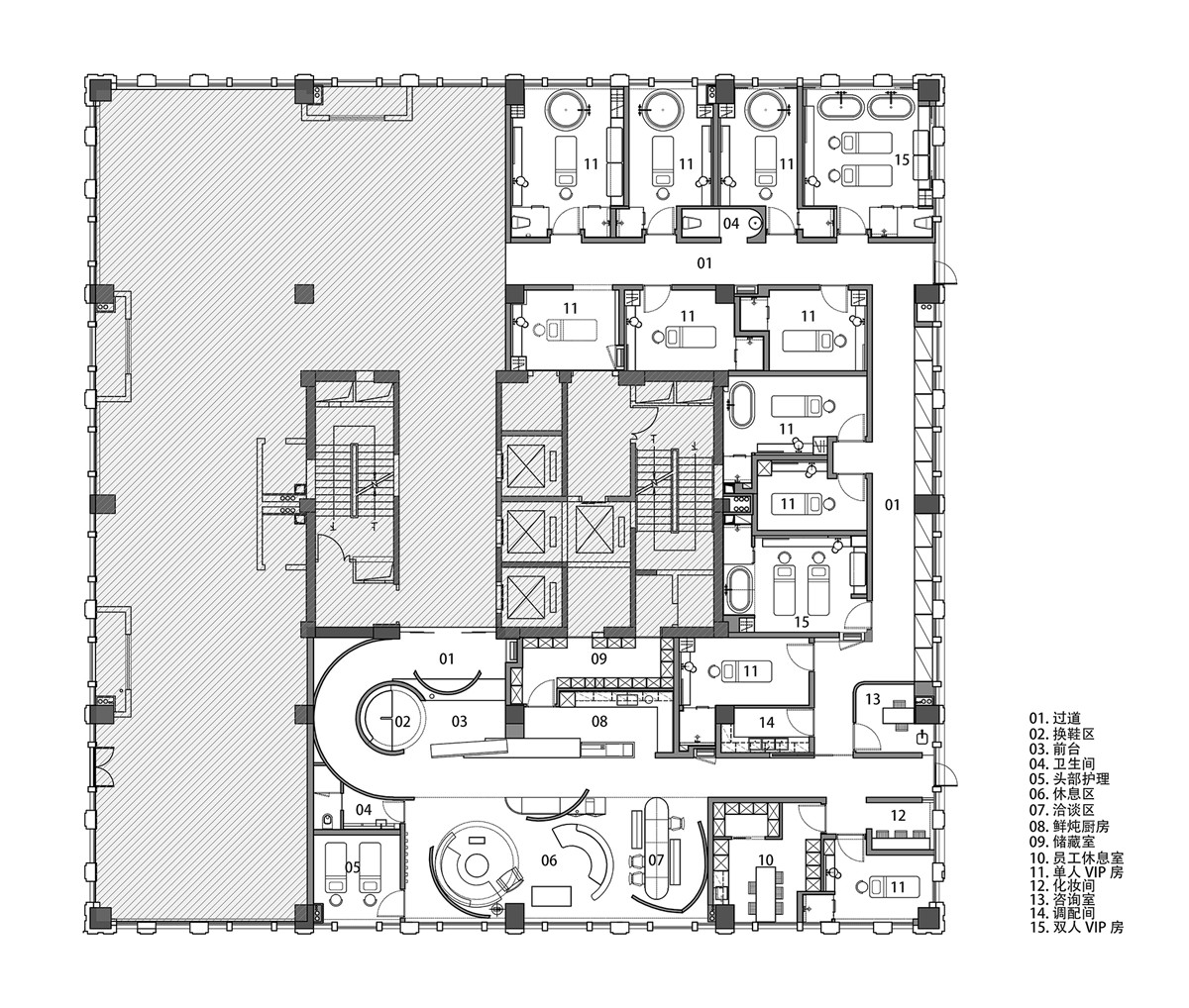
  • 项目由璞素空间设计为青春与诗章设计的首家SPA概念旗舰店。设计围绕“时间,一生挚友”的视角展开,试图在空间中为访客带来时间的自由、沉淀,并得以升华。打造一个具有独特个性的商业空间,同时符合品牌的商业调性,为人留住青春与时间。 画家用一种几乎流动的视觉表现时钟,原本坚硬的物质变得柔软、流动,这种荒诞的表现手法赋予我们新的灵感,我们开始重新思考“时间”的表述方式。 空间糅合两种矛盾: 曲与直,坚韧与灵动。 线条错综复杂,却又铿锵有力,在结构中不断流转。空间被切割出层次分明的块面,时光流逝的痕迹,无以言表,可在此间,交错纵横,皆为时间的表象。 光随结构而生,时隐时现。空间的矛盾性与戏剧感通过轮廓、角度和材料的呈现,使其变得可观可感,时间的意义在此间被定格,再被不断拉伸、延展,最终化作空间的气场,充盈其间。 叙述被一次次打断,空间看似完整,却又被切割成一个个相对独立的块面。虚实之间,令人应接不暇。视线透过被刻意留出的空隙在空间中来回逡巡,这种窥微知著的探秘感,引人深入。 最大化减弱来自外界光照影响之后,空间得以存在稳定的色相,设计过的灯光照射在不同的肌理表面,投下的阴影彼此交错。与外界沟通被打断后,时间仿佛被停止,拘于一室之内。 线条流转,如丝带飘逸,一路蜿蜒前行,引领脚步不断跟随,曲与直划下完美平衡,构建出如同建筑般的张力空间,深邃静谧,引人不住向上张望,向着虚无张望。 转入空间内部SPA的疗愈房间,狭长的过道,一边是窗外寂寥的光晕浅送,一边是长方形的房间鳞次栉比地排列,裸露的水泥粗狂,纵深的廊道却极富细腻的禅意,从门口弧形的寂静通道一路向内而行,大厅处喧闹张扬有破千军之势,内部SPA区静谧温柔如春风拂动。里外空间,动静相声,情绪转换,矛盾,在空间中一直存在,再得以和解。
  • 图片
  • 图片
  • 图片
  • 图片
  • 图片
  • 图片
  • 图片
  • 图片
  • 图片
  • 图片
  • 图片
  • 图片
  • 图片
  • 图片
  • 图片
  • 图片
  • 图片
  • 图片
  • 图片
  • 图片
  • 图片
  • 图片
  • 图片
  • 图片
  • 图片
  • 图片
  • 图片
  • 图片
  • 图片
  • 图片
  • 图片
  • 图片
  • 图片
  • 图片
  • 图片
  • 图片
  • 图片
  • 图片
  • 图片
  • 图片
  • 图片
  • 图片
  • 图片
  • 图片
  • 图片
  • 图片
  • 图片
  • 图片
  • 图片
  • 图片
  • 图片
  • 图片
  • 图片
  • 图片
  • 图片
  • 图片
  • 图片
  • 图片
  • 图片
  • 图片
  • 图片
  • 图片
  • 上一个 下一个
    《金腾奖优秀作品年鉴》 私宅丨地产丨餐饮丨酒店丨办公丨商业丨公共丨产品丨公益丨人气 jintengAWARD(小金_金腾奖组委会) 广州市海珠区琶洲大道68号华新中心21楼
    金腾奖视频号 金腾奖小红书号 监制:闫虹
    统筹:吴佳佳
    运营:朱倩仪 王赫萱 张芷莹 胡岚恩 小金
    新媒体:王贝贝 严洁 侯乐 鹅姐
    经纪:刘译遥 石征 曹凯月
    技术:张桐 黄天佑
    最终解释权归金腾奖主办方所有