Le Yue
作品详情
  • Details of the work 标题横线
    头像或者logo
    图片 徐丽
    城市:丽水
    公司: 丽水构家全案整装有限公司
    参赛作品: 乐.悦
    空间类型:公寓(150㎡以下)
    个人/公司简介:
    丽水构家全案整装有限公司创始人及设计总监 丽水万物筑家家居生活馆创始人及主理人 丽水颠锋视界装饰有限公司主案设计师 丽水职业技术学院建筑与设计学院特聘指导讲师 CIID协会中国室内学室内建筑专业会员 2013-2014年度丽水地区最具创造力设计师 2014-2015年度国际环艺创新大赛(华鼎奖)二等奖 2018-2019年度荣获丽水区域艺鼎奖等奖项
    设计说明 | Design Instruction
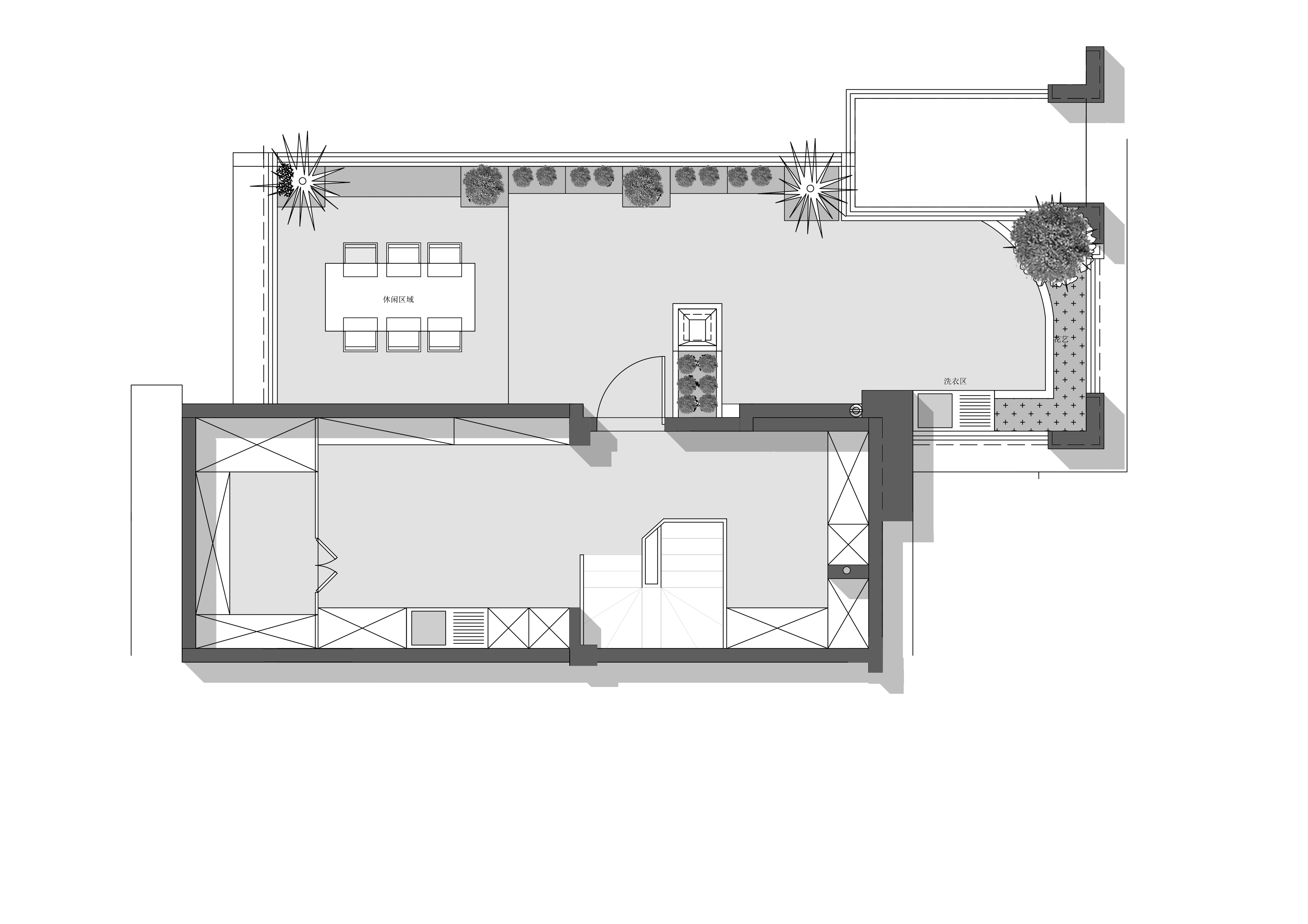
  • 《壹》源起......... 业主生活方式是平淡宁静而没有太多的讲究,但是生活相互扶持、相互鼓励,从而构建起一个富有情感的家。尊重彼此的个人空间和兴趣爱好。鼓励每个家庭成员都追求自己的梦想和热爱,只有身心都健康、快乐的人才能成就更美好的家庭。无论是追逐运动、沉浸于阅读、探索艺术创作等等,让我们开启一个崭新的空间 幸福的四口之家,拥有一对双胞胎儿女,为了给孩子带来了更多的欢声笑语和活力,业主委托我们做精心的设计和布置,旨在创造了一个充满爱和温暖的生活空间,让孩子们在这里成长、学习和享受家庭的陪伴。 注重创造一个宽敞明亮的空间。大面积的开放式设计不仅使整个家居空间显得更加通透,而且能够满足孩子们的运动需求。开放式厨房与客厅相连,让我们在烹饪的同时与全家人保持互动,享受到和家人一起度过美好时光的乐趣。 注重舒适度,特别是对孩子们的考虑。孩子们的卧室是以他们喜欢的动漫元素为主题,精心布置了色 《贰》空间建构 错落高低的复式结构空间,上下楼层光线的穿透,客餐厨的贯穿,使整个空间,从自然采光到空间走向更流畅贯通起来,楼梯的错位高低,灯光的渲染增加了空间的延伸感。 开放式厨房与客厅相连,让我们在烹饪的同时与全家人保持互动,享受到和家人一起度过美好时光的乐趣。 开放厨房将厨房与餐厅空间打通,消除了传统餐厅与厨房之间的隔阂,让父母和孩子之间的互动更加自然和友好。孩子可以近距离地观察到父母的烹饪过程,感受到食物的制作过程,增加了用餐的乐趣和参与感。 并且一些壁柜、抽屉和嵌入式家具融入设计中,将闲置角落利用起来,为家庭提供足够的存储空间。收纳保持整齐有序,让整个家居宜居和宜工作。 《叁》材质 色系 大理石作为一种高贵、耐用的建筑材料,赋予了楼梯独特的质感和视觉效果,大理石的冷峻与胡桃木的温暖形成鲜明的对比,创造了一种独特的视觉冲击力,大理石的光泽和质感让整个楼梯显得高贵而华丽。 在设计上,楼梯的扶手采用了铝钢制作,既美观又实用。扶手的弧度和手感经过精心设计,为楼梯增添了一份舒适和安全感。同时,我们也在楼梯的踏步上加入了铝材的镶嵌,使整个楼梯更加独特和精致。 胡桃木搭配为整个空间增添了一份温馨和自然的气息。胡桃木的纹理细腻、色彩丰富,带来了一种自然的质感和温暖感。胡桃木的温柔与地面材质刚硬相互融合,形成了一种独特的和谐美感。 《四》生活方式 在这个胡桃木和皮皮质床的卧室里,你可以享受到一份独特和高贵的睡眠体验,让这里成为你的私人天地,让你在这个空间中找到宁静和放松,都能在这里找到舒适和自在。这是一个温暖而充满个性的卧室,让你在繁忙的生活中找到内心的平静和满足。 房间里面灯光选择了柔和而温暖的黄光,给整个空间增添了一份温馨和舒适的感觉。你可以在这里静静地思考,阅读一本喜欢的书,或者享受一段音乐的时光。宝蓝色的背景画和明黄的床头柜在整个起到点晴作用, 灯光温暖而柔和,选择粉色窗帘和椅子营造出梦幻般的氛围,可以在这里静静地听着音乐,享受着宁静的时光,感受着甜蜜的心情,整个房间都弥漫着少女心的氛围,让你每天都能感受到甜蜜与浪漫,让这个粉色少女心的卧室成为你的私密空间,在这里,你可以尽情展现自己的个性,享受美好的时光。 进入花园,你将能够打破日常生活的束缚,找到内心的平静和放松。花园是一个绿色和谐的绿洲,在这里,你可以享受大自然的恩惠,重新连接真实的自己。 和家人或朋友一起分享这个花园的美好也是一种享受,在这里举行一场小型的聚会、烧烤或者简单的茶话会,留下美好的回忆和欢乐的时光并能陪伴孩子的成长。
  • 图片
  • 图片
  • 图片
  • 图片
  • 图片
  • 图片
  • 图片
  • 图片
  • 图片
  • 图片
  • 图片
  • 图片
  • 图片
  • 图片
  • 图片
  • 图片
  • 图片
  • 图片
  • 图片
  • 图片
  • 图片
  • 图片
  • 图片
  • 图片
  • 图片
  • 图片
  • 图片
  • 图片
  • 图片
  • 图片
  • 图片
  • 图片
  • 上一个 下一个
    《金腾奖优秀作品年鉴》 私宅丨地产丨餐饮丨酒店丨办公丨商业丨公共丨产品丨公益丨人气 jintengAWARD(小金_金腾奖组委会) 广州市海珠区琶洲大道68号华新中心21楼
    金腾奖视频号 金腾奖小红书号 监制:闫虹
    统筹:吴佳佳
    运营:朱倩仪 王赫萱 张芷莹 胡岚恩 小金
    新媒体:王贝贝 严洁 侯乐 鹅姐
    经纪:刘译遥 石征 曹凯月
    技术:张桐 黄天佑
    最终解释权归金腾奖主办方所有