Everything was produced 
作品详情
  • Details of the work 标题横线
    头像或者logo
    图片 徐丽
    城市:丽水
    公司: 丽水构家全案整装有限公司
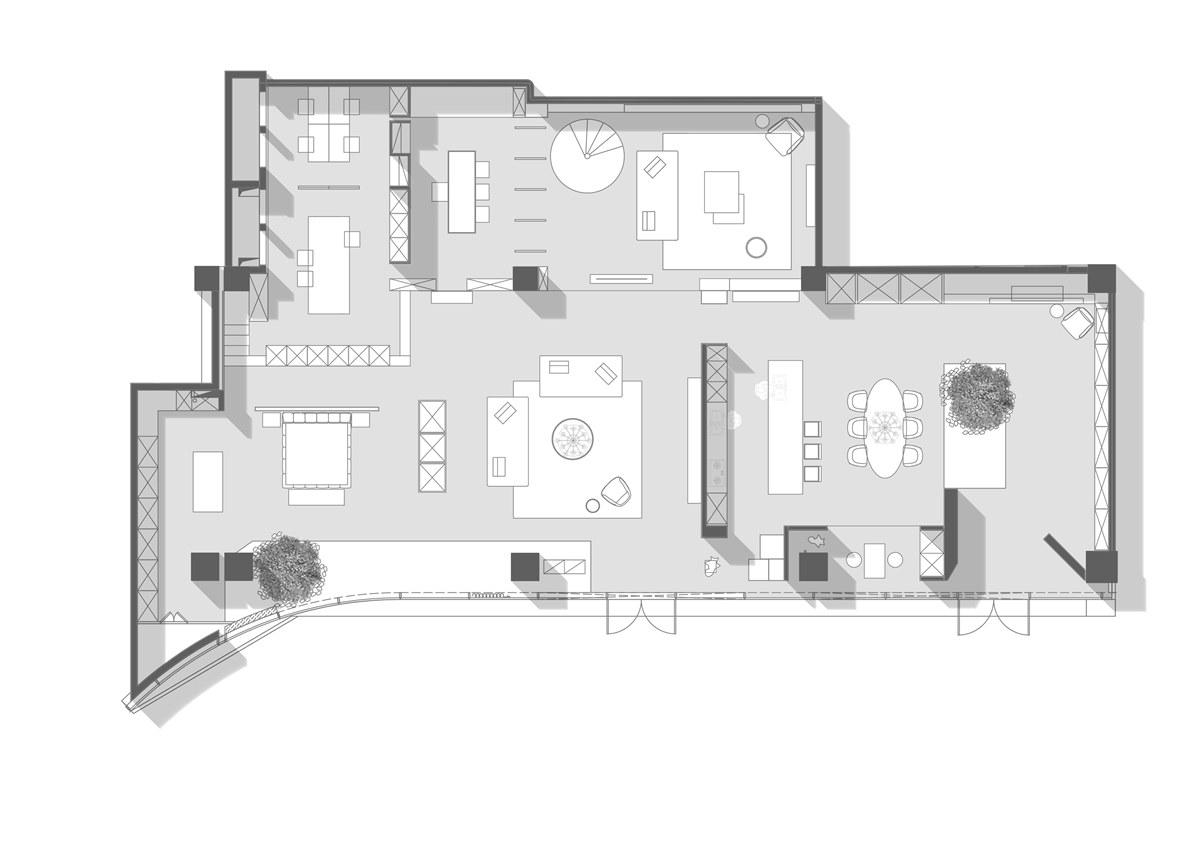
    参赛作品: 万物.生
    空间类型:公寓(150㎡以下)
    个人/公司简介:
    丽水构家全案整装有限公司创始人及设计总监 丽水万物筑家家居生活馆创始人及主理人 丽水颠锋视界装饰有限公司主案设计师 丽水职业技术学院建筑与设计学院特聘指导讲师 CIID协会中国室内学室内建筑专业会员 2013-2014年度丽水地区最具创造力设计师 2014-2015年度国际环艺创新大赛(华鼎奖)二等奖 2018-2019年度荣获丽水区域艺鼎奖等奖项
    设计说明 | Design Instruction
  • “道生一 ,一生二 ,二生三,三生万物 ” 《壹》空间的流线 展厅分三块区分布局考虑: “道生一”:《道一园》 书房区域顶高的装饰书柜背景下,与玻璃内自然装置的呼应,自然趣味的引进,植物空间的穿插连贯,顶上太阳光的灯光设计,即增加了植物的光照又拉伸了空间了高度,又让区域与区域之间起到分割,同样又是追寻的主题,道的根源就是自然与生活的统一。 餐厅区域的厨房和大岛台以开放式的设计为中心点,按照生活方式去进行思考设计,3.6米的岛台开放厨房,与奢石餐桌的互动,餐厅大岛台的空间布局旨在为您提供一个舒适、宜人和互动的用餐体验。无论是与家人共进晚餐还是与朋友聚会,这里都会给您留下美好的回忆,品尝精心准备的美食,并享受愉悦的用餐时光,为您提供了一种交流互动的用餐体验。 另外餐厅大岛台还设有一个舒适的休息区域,供您在用餐之余放松身心。休息区域配有禅味的茶桌,围炉煮茶,不单单是自行的心灵修行,更是强调与他人的分享与交流,让您可以在用餐后与家人朋友一起聊天,享受品一杯茶的生活乐趣。 ”一生二“:《二元生活》 年轻时尚法式区域:整个区域给客户的体验是小资情调的客厅,不规则个性的主沙发,搭配跳跃酒红色的担任椅子相得益彰,后面弧形楼梯的搭配既起到样品展示,向上的踏步,以及顶上圆形的对应设计,和餐厅区域的调性不同,但是又是同一体系,点缀自然味的海岛树分割出来一生二的多维度空间区域,墙壁弧度的向上牵引力,同样为外空间的融入做铺垫。 地台上下错位的空间穿透和一地做垫,台阶下口灯带的连贯,更增减了餐厅岛台区域和客厅区域以及茶室区域的连贯,又增加空间错位的穿透感。 “二生三”:三度空间 大客厅的大视角与卧室衣帽间的互通,设计宗旨在考究是套房的概念设计,客厅与卧室中间用一个玻璃开放衣帽柜做隔断,顶上用一根无线的灯带贯穿,两边即互通光影视角穿透,又能相对独立,保证每个区域的完整性,衣帽间与卧室空间来说,两根毛胚原生态柱子和衣帽岛台,即分割了区域,又是同一个区域,衣帽间顶面空间高度做了一个拉伸,增加了空间上升,又能显得我们衣帽间磅礴大气。 卧室边上休闲橱窗区域,低垂的小叶植物,和弧度柔合的浴缸左右搭配,一高一低,空间错层视角延伸,把室外的视角同样贯穿辐射室内,床后面的吊挂式墙壁和侧面的楼梯样品灯光区,踏步和平板的错位连贯,也同样让空间有更多的穿透延伸性。 “三生万物”: 在整个空间里面,茶室和选样区域作为延展穿梭的空间,和别的空间既保持独立性,又能一一贯穿,地面台阶的跌级错位,都照应着空间之间的包容与容纳。也体现我们主题,一物像万生,生生不息的顽强毅力。 《贰》艺术的融合 最完美的艺术就是与天然形成的物的结合,来源于自然更要回归自然 陶是其中之一 木亦土 土亦陶 陶亦而金“一块泥巴,经过匠人的精心制作后,赋予它灵魂,成为一件艺术品” 在艺术范畴,陶釉器皿本身就是充满禅意的优雅艺术,亦或素静,亦或意象花纹, 作为「琢器」 器皿多以手捏方式成型 缓慢而遵循自然 通过双手 给予他们形态肌理 通过釉水化妆土 给予他们装扮 自然的东西怎会少了我们的天然大自然呢? 居住在钢筋混泥土的城市里,越来越向往大自然,偶尔看到斑驳的阳光倾泻而下,总会显得格外开怀,足不出户让大自然与你在家邂逅。玄关内景的设计,就是人与自然的交流。 橱窗区域象腿树的设计,不但给这个空间增添的绿意盎然的景色,更要象征生命的不息,生命顽强的寓意 《叁》材质的点缀 全空间肌理漆的设计,摈弃了以往复杂的闹腾空间,给予全空间一个干净纯碎的底板色,又像一个伟大的母亲,为了怀抱的子女,甘愿做它们背后透明色。 玄关浮雕门的雕刻年轮的纹理,和左边内置景观的橄榄树,也是相互呼应,用年轮的纹理展示时间的印迹, 岛台区域陶和木钵盆的搭配,一瞬间带你回归原始人类发源的起点,一点一滴的印迹浮现脑海,餐厅的文化和生活方式最终一个轮回,回到最质朴最纯粹的空间里。。。。。 客厅透明亚克力的柜子和艺术椅子,更能体现它本身的特性,又能点缀,在这沉稳空间里面一抹靓丽风景,让我们沉稳的心泛点点涟漪 地台钢板楼梯的硬朗和弧度柔和的沙发前后呼应亦或者一阴一阳,亦也是自然界里面的平衡点自然无为。
  • 图片
  • 图片
  • 图片
  • 图片
  • 图片
  • 图片
  • 图片
  • 图片
  • 图片
  • 图片
  • 图片
  • 图片
  • 图片
  • 图片
  • 图片
  • 图片
  • 图片
  • 图片
  • 图片
  • 图片
  • 图片
  • 图片
  • 图片
  • 图片
  • 图片
  • 图片
  • 图片
  • 图片
  • 图片
  • 图片
  • 图片
  • 上一个 下一个
    《金腾奖优秀作品年鉴》 私宅丨地产丨餐饮丨酒店丨办公丨商业丨公共丨产品丨公益丨人气 jintengAWARD(小金_金腾奖组委会) 广州市海珠区琶洲大道68号华新中心21楼
    金腾奖视频号 金腾奖小红书号 监制:闫虹
    统筹:吴佳佳
    运营:朱倩仪 王赫萱 张芷莹 胡岚恩 小金
    新媒体:王贝贝 严洁 侯乐 鹅姐
    经纪:刘译遥 石征 曹凯月
    技术:张桐 黄天佑
    最终解释权归金腾奖主办方所有