Shangtu Space Design Office
作品详情
  • Details of the work 标题横线
    头像或者logo
    图片 贾泓淳
    城市:青岛市
    公司: 青岛尚图空间设计
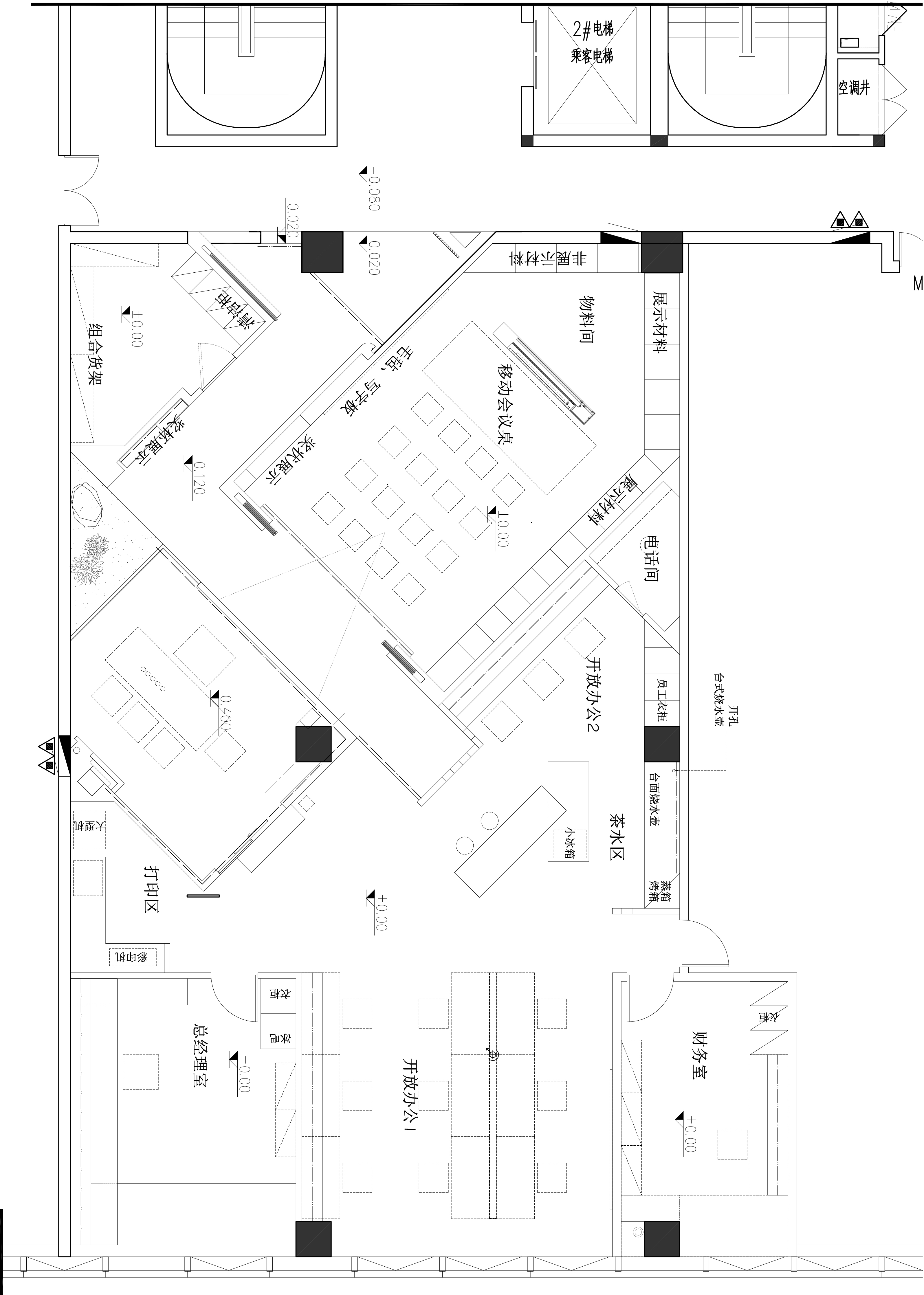
    参赛作品: 尚图空间设计办公室
    空间类型:餐饮
    个人/公司简介:
    青岛尚图空间设计创始人;中国建筑装饰协会环境艺术分会理事;中国建筑学会室内设计分会会员;山东省室内设计行业协会常务理事;高级室内设计师;注册室内建筑师;注册陈设艺术设计师;青岛滨海学院客座讲师;法国INNODESIGN PRIZE创意设计专业委员会会员。 曾获2022年度CBDA人居空间金铅笔设计大赛公寓住宅空间设计二等奖;2021年第二十四届中国室内设计大奖赛餐饮工程类优秀奖;2019年第六届法国INNODESIGN PRIZE国际创新设计大奖;2019空间设计大奖获年度商业空间设计大奖(方案类);2020金堂奖年度杰出餐饮空间设计;2020第七届法国双面神GPDP AWARD国际设计大奖文化空间:金奖;2020金堂奖年度杰出休闲娱乐空间设计;2020年上海国际设计周金梁中国设计奖;2020年上海国际设计周新锐中国设计奖。
    设计说明 | Design Instruction
  • 本案充分考虑到所处的建筑空间环境的紧凑,从而采用内部斜切的方式形成内外缓冲再通过合理划分域,既保证了一定的私密性又充分的利用了内部空间。 本案入口处采用几何体拼接的设计手法,以不锈钢板为主要材料进行拼接,结合金属背光LOGO形成具有科技感的入口。 办公室内部构造以几何体的形式相互穿插,形成雕刻般的线条。表面上采用大面积的留白,我们把它的形式解构再重组,用极简的设计法,加上打破常规的吊顶方式,形成了现代极简的内部空间设计。
  • 图片
  • 图片
  • 图片
  • 图片
  • 图片
  • 图片
  • 图片
  • 图片
  • 图片
  • 图片
  • 图片
  • 图片
  • 上一个 下一个
    2024第八届金腾奖 私宅(独居)丨私宅(多人居)丨餐饮丨酒店丨办公丨商业丨公共丨公益丨人物丨NEW100 jintengAWARD(小金_金腾奖组委会) 广州市海珠区琶洲大道68号华新中心21楼
    金腾奖视频号 金腾奖小红书号 监制:刘译遥
    统筹:张俊媚
    运营:赖钰炼 曹凯月 刘芳棋 小金
    新媒体:王贝贝 严洁 张文一
    技术:黄天佑 丁德昌
    最终解释权归金腾奖主办方所有