Backlighting Village Hotel
作品详情
  • Details of the work 标题横线
    头像或者logo
    图片 GOODO design 谷岛设计事务所
    城市:杭州
    公司:GOODO design 谷岛设计事务所
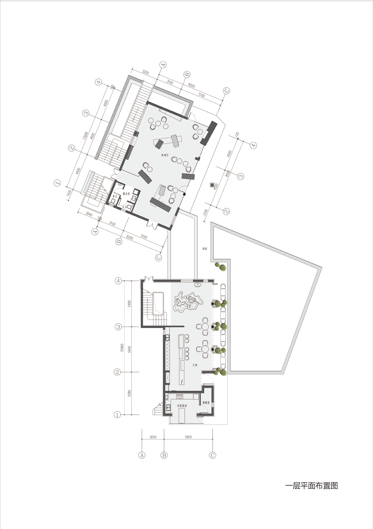
    参赛作品: 逆光莜舍
    空间类型:商业
    个人/公司简介:
    GOODO 谷岛设计事务所是一家多元化的综合设计机构。秉持着可持续发展的理念,以多元、国际化的设计视野,不断突破与创新设计。提供产品、空间、品牌形象、CG动画以及新媒体传播设计服务,广泛涵盖了家具、消费电子、工业设备、医疗器械、美妆个护、文化创意、民宿、商业空间等领域。设计团队由资深产品设计师、空间设计师、专业品牌战略咨询、新媒体传播创意策划团队构成,具备专业的综合创意输出能力,为相关产业和商业市场提供精准、高效的全案式品牌构建解决方案。 能够让更多的人享受到优良设计所带来的愉悦体验,是团队不变的追求。设计团队十几年对创新的坚持与卓越表现,多次荣获德国红点产品设计奖、美国室内设计年度设计大奖、亚洲设计奖等几十项国内外知名设计奖项。立志用设计推动产业的进步,为不断迭代的消费市场提供有时代竞争力的原创品牌新形态,探索关于未来的无限可能。
    设计说明 | Design Instruction
  • 人们时常需要换个视角去欣赏生活中不同的美好,光是我们发现万物的必要因素,逆光——看似违和的角度,但当我们平衡好尺度的时候,我们会遇见更多意想之外的感动。——黄彩俊 逆光莜舍度假民宿(Backlighting Village Hotel)位于宁波象山一个风光旖旎的海边渔村,渔村的位置在当时鲜为人知,面朝大海、三面环山。正因如此自然的地理位置和淳朴的人文气息,渔村文化才很大程度得到了保留和传承。 项目之初,设计团队在当地进行了考察,在渔村里生活了一段时间,深入体验、了解当地的文化,最终决定将当地的地理资源和自然风光融入整个设计思维之中,实现一个自然风光和当下生活理念相融合的思路。我们认为建筑景观(外空间)、室内规划(内空间)和陈设家具是有生命的,她会随着时间的沉淀不断自然地生长,演绎出应有的状态。基于特殊的地理位置及在地文化,构建自然生长的空间理念,正像这海边渔村一样的成长。 工业设计师会如何思考住宿空间的设计,如何让空间与体验之间达成平衡,同时又能呈现设计的创新视角与优势,这些是设计团队前期反复思考的重要因素。空间亦是一件产品,从大的建筑景观到室内空间,再到内部的每一件家具,她们是息息相关的,渗透着一脉相承的DNA。 阳光、空气、大海、山林孕育出每一个生命体,渔村中两宅一院落的空间条件,是逆光莜舍的成长土壤。 逆光莜舍项目从实地考察到正式营业,历经了35个月的打造时间,过程中不断的优化调整,庭院的植物在四季的更替中不断的更替。业主方希望以度假体验为主题,传递给用户轻松、愉悦的体验,同时能够感受当地的渔村文化。民宿总共有14间客房,每间客房面向大海,可以感受清晨的第一缕阳光从海面上缓慢升起。除了客房,一层的咖啡空间、地下一层的庭院式用餐空间和石墙艺术空间等公共区域。在专业的酒店管理服务之外,无处不在的休闲体验是民宿的核心亮点。设计团队从园林景观、建筑空间和软装家具,以整体全案的思路开展设计工作。根据不同的空间属性需求,以海和渔村为中心寻找设计灵感,创作了大堂、餐厅和客房等空间的一系列专属家具产品。 对于逆光莜舍,完成设计是第一步,下一步则是在经营的过程中不断的提升服务与优化空间。随着用户的体验与反馈,在对话中思考设计。 设计团队对景观、建筑、室内、家具等用品细节的考量,让设计艺术时刻渗透进休闲生活,并做到不刻意的流露出一种放松与自然的状态,营造一个住宿、餐饮和文化体验的空间并结合自然景观为一体的设计项目。
  • 图片
  • 图片
  • 图片
  • 图片
  • 图片
  • 图片
  • 图片
  • 图片
  • 图片
  • 图片
  • 图片
  • 图片
  • 图片
  • 图片
  • 图片
  • 图片
  • 图片
  • 图片
  • 图片
  • 图片
  • 图片
  • 图片
  • 图片
  • 图片
  • 图片
  • 图片
  • 图片
  • 图片
  • 图片
  • 图片
  • 图片
  • 图片
  • 图片
  • 图片
  • 图片
  • 图片
  • 图片
  • 图片
  • 图片
  • 图片
  • 图片
  • 图片
  • 图片
  • 图片
  • 图片
  • 图片
  • 图片
  • 图片
  • 图片
  • 上一个 下一个
    2024第八届金腾奖 私宅(独居)丨私宅(多人居)丨餐饮丨酒店丨办公丨商业丨公共丨公益丨人物丨NEW100 jintengAWARD(小金_金腾奖组委会) 广州市海珠区琶洲大道68号华新中心21楼
    金腾奖视频号 金腾奖小红书号 监制:刘译遥
    统筹:张俊媚
    运营:赖钰炼 曹凯月 刘芳棋 小金
    新媒体:王贝贝 严洁 张文一
    技术:黄天佑 丁德昌
    最终解释权归金腾奖主办方所有