The forest awakens
作品详情
  • Details of the work 标题横线
    头像或者logo
    图片 陆奕
    城市:广州
    公司: 广州简美设计
    参赛作品: 森林苏醒
    空间类型:餐饮
    个人/公司简介:
    从事室内设计及设计管理工作21年,曾任职于保利发展控股集团股份有限公司。2018年与简美品牌联合创立简美设计。 践行极简自然的空间主义,善于从空间本身出发,优化空间体验,切实解决客户问题。
    设计说明 | Design Instruction
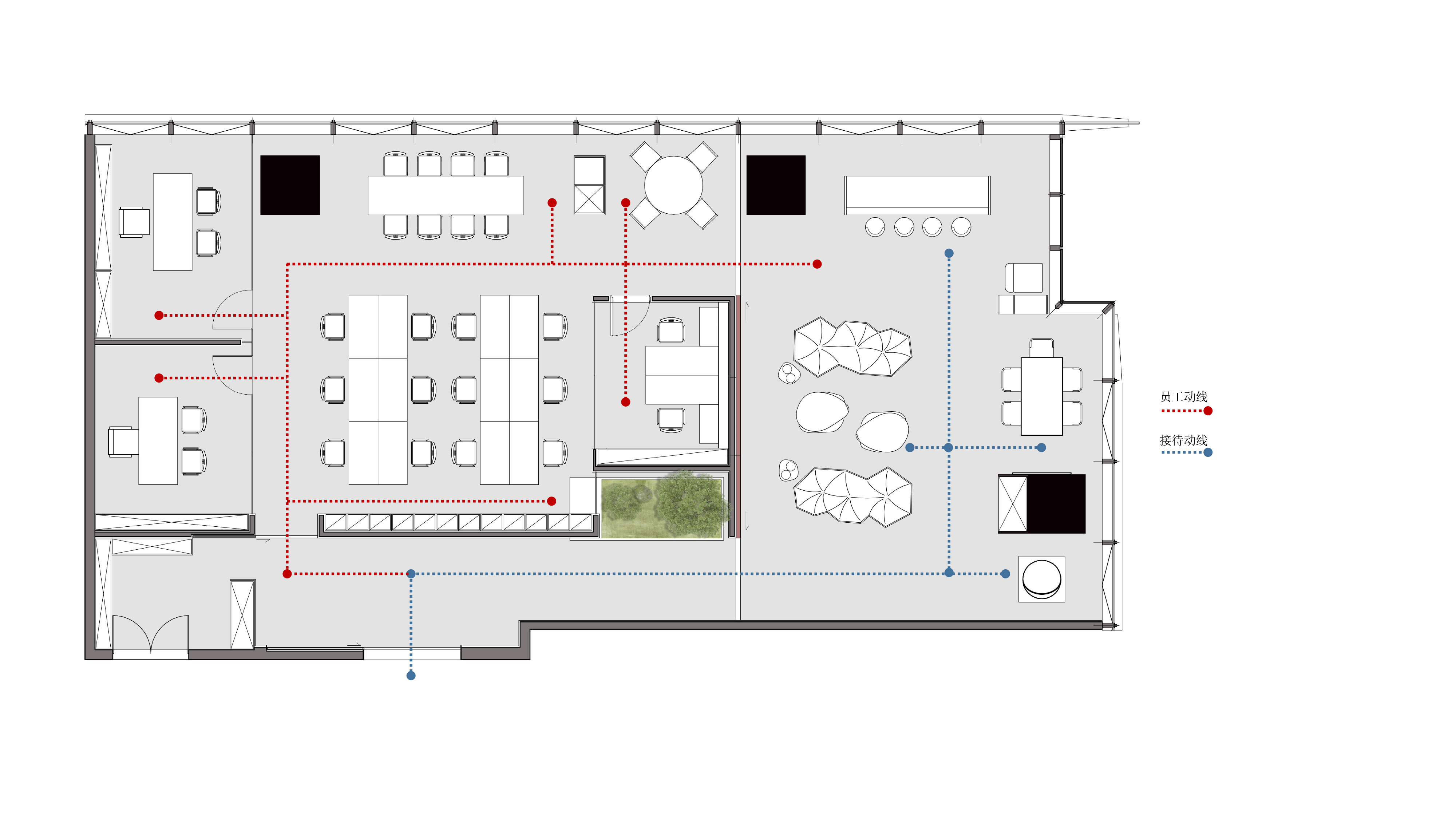
  • 把视野放在远处,在时代精神到来之前察觉。打开一切触角,像树一样在不确定中挺立生长,塑造筋骨,感知更为广阔与豁达的世界。 本项目为留学专业咨询机构的办公空间,将自然景观融入空间,既是造景亦是寄寓。森林苏醒,静谧之际,力量汹涌,生机到来。 内在的丰富 悠长的过道充满着未知的预示,如同前行之路。目光凝聚于尽头,圆形球体象征着世界,唤醒内心隐藏的渴望,往前探索,坚信亦坚定。 转角之间,肆意生长的植物拔地而起,自然充溢于空间,生命的蓬勃与盎然已无需多言。在此基础上搭建场域,深入空间的内在表达,探索更深层次的精神世界。 当灯光倾洒而下,树木张扬,细枝末节尽数绽放,一切物态更迭。空间被调成一幅清新淡然的画卷,将世间浮躁隔离于身后,人进入到了另一种境地。 流动的变化 不固化于思维,不拘泥于布局,让空间随着功能流动起来。移动墙体的置入,在不同状态下呈现出空间的动态之感,在无形之中形成更为灵动的空间体验。结构、材质、场景的塑造,给予更为包容与自由的姿态,呼应品牌之核心。 自然与空间交融相叠,光是必不可缺的要素,大面积的开窗确保光线充足地进入,提供清晰且开阔的视野。开放式的布局中,通过家居、色彩、动线多维度的调和,形成自由的多功能区域,身处其间,感知于空间中的情绪与能量流动。 结构的张力 结构是自由的,从大的场景铺排到小的细节叙述,错落起伏,在对照与反射中,呈现光与影赋予的视觉张力。空间被结构分割、重组,既是独立存在,又协调共生,构成具有差异的情境氛围。从动态的空间展示中,延展出人与空间的多重互动,而材质间的强烈碰撞,将空间的纵深强调至极致,由完全的尺度展开叙述,交织出更为丰富的演绎与情感起伏。 顺着前行的方向,空间在虚实之间切换,布局是流动的,场域的形式与层次呈微妙变化,看似没有界定的空间中,已暗藏品牌本身的多元与活力。 秩序的启示 空间本质是设计的核心及思考所在,作为办公空间,其本质是形成协同有序的办公氛围,确保系统的高效运行。故对于色彩、细节、家居的考究极为细致,从而达到感官的统一性与均衡感。在功能的指引之下,以极简精炼的设计定义办公区域,规则的矩阵留白划分空间区域、线性的灯具塑造内部的对称形态、干净的天花在日常中交付稳妥之属性。 END 人生如旷野,不困于心,不囿于行。推开这扇门,世界徐徐展开,空间如此,人亦如此。 森林苏醒,穿山越水,与其向往,不如出发。
  • 图片
  • 图片
  • 图片
  • 图片
  • 图片
  • 图片
  • 图片
  • 图片
  • 图片
  • 图片
  • 图片
  • 图片
  • 图片
  • 图片
  • 图片
  • 图片
  • 图片
  • 图片
  • 图片
  • 图片
  • 图片
  • 图片
  • 图片
  • 图片
  • 图片
  • 图片
  • 图片
  • 图片
  • 图片
  • 图片
  • 图片
  • 图片
  • 图片
  • 图片
  • 图片
  • 上一个 下一个
    2024第八届金腾奖 私宅(独居)丨私宅(多人居)丨餐饮丨酒店丨办公丨商业丨公共丨公益丨人物丨NEW100 jintengAWARD(小金_金腾奖组委会) 广州市海珠区琶洲大道68号华新中心21楼
    金腾奖视频号 金腾奖小红书号 监制:刘译遥
    统筹:张俊媚
    运营:赖钰炼 曹凯月 刘芳棋 小金
    新媒体:王贝贝 严洁 张文一
    技术:黄天佑 丁德昌
    最终解释权归金腾奖主办方所有