Coffee  Country
作品详情
  • Details of the work 标题横线
    头像或者logo
    图片 余凌
    城市:厦门
    公司: 厦门居岛设计
    参赛作品: 手冲的“理想国”
    空间类型:餐饮
    个人/公司简介:
    厦门居岛室内设计有限公司主理人 致力于人文住宅的研究与商业空间的社会价值探讨
    设计说明 | Design Instruction
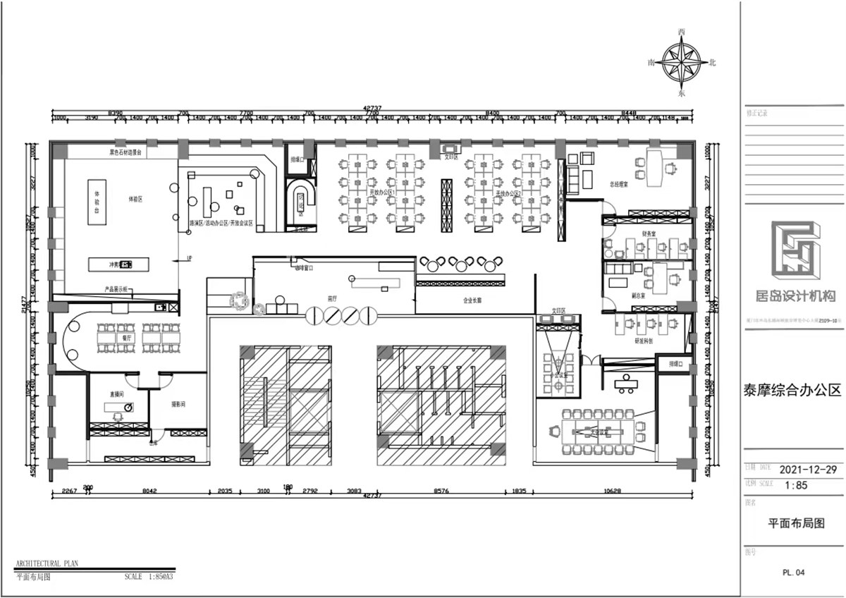
  • 项目定位: 每家企业都有其独特性以及企业精神。 我们通过设计以空间为载体,从感官和行动中让人感受出企业的精神内核,是我们设计本案的着力点。 空间意境: 公司的办公区域必须具有很强的指示性。我们在企业的长廊区打造出类似博物馆的静谧空间,加持了产品的静态展示价值。 大体验区设置了一横一竖的两个大操作台。大面积温润的原木色与冲煮咖啡时的香气相得益彰。 空间布局: 我们规划了近40平方的完全开放式前厅,这处带有公益性平台性质的区域面向整栋楼,甚至是周边办公人群开放。也成为了手冲爱好者的交流地。场所提供了冲煮咖啡的器材产品,让咖啡文化在使用过程中得以传播。这一设计灵感,来源于泰摩公司的企业宣语“把时间浪费在美好的事物上”。
  • 图片
  • 图片
  • 图片
  • 图片
  • 图片
  • 图片
  • 图片
  • 图片
  • 图片
  • 图片
  • 图片
  • 图片
  • 图片
  • 图片
  • 图片
  • 图片
  • 图片
  • 图片
  • 上一个 下一个
    2024第八届金腾奖 私宅(独居)丨私宅(多人居)丨餐饮丨酒店丨办公丨商业丨公共丨公益丨人物丨NEW100 jintengAWARD(小金_金腾奖组委会) 广州市海珠区琶洲大道68号华新中心21楼
    金腾奖视频号 金腾奖小红书号 监制:刘译遥
    统筹:张俊媚
    运营:赖钰炼 曹凯月 刘芳棋 小金
    新媒体:王贝贝 严洁 张文一
    技术:黄天佑 丁德昌
    最终解释权归金腾奖主办方所有