French Romance, Dreaming Back to Paris
作品详情
  • Details of the work 标题横线
    头像或者logo
    图片 盛玲玲
    城市:苏州
    公司: 上海星杰装饰有限公司苏南分公司
    参赛作品: 法式浪漫,梦回巴黎
    空间类型:别墅
    个人/公司简介:
    中国建筑装饰协会高级室内建筑师中国建筑装饰协会高级住宅室内设计师 中国建筑装饰协会软装设计师 2008年 亚太室内设计双年大奖赛提名奖2010年度客户满意度金奖2010年 “中国南京顶级大宅高端设计大赛”荣获 “杰出空间设计大奖”2017年苏州青年设计金奖2019大设无界软装陈设奖
    设计说明 | Design Instruction
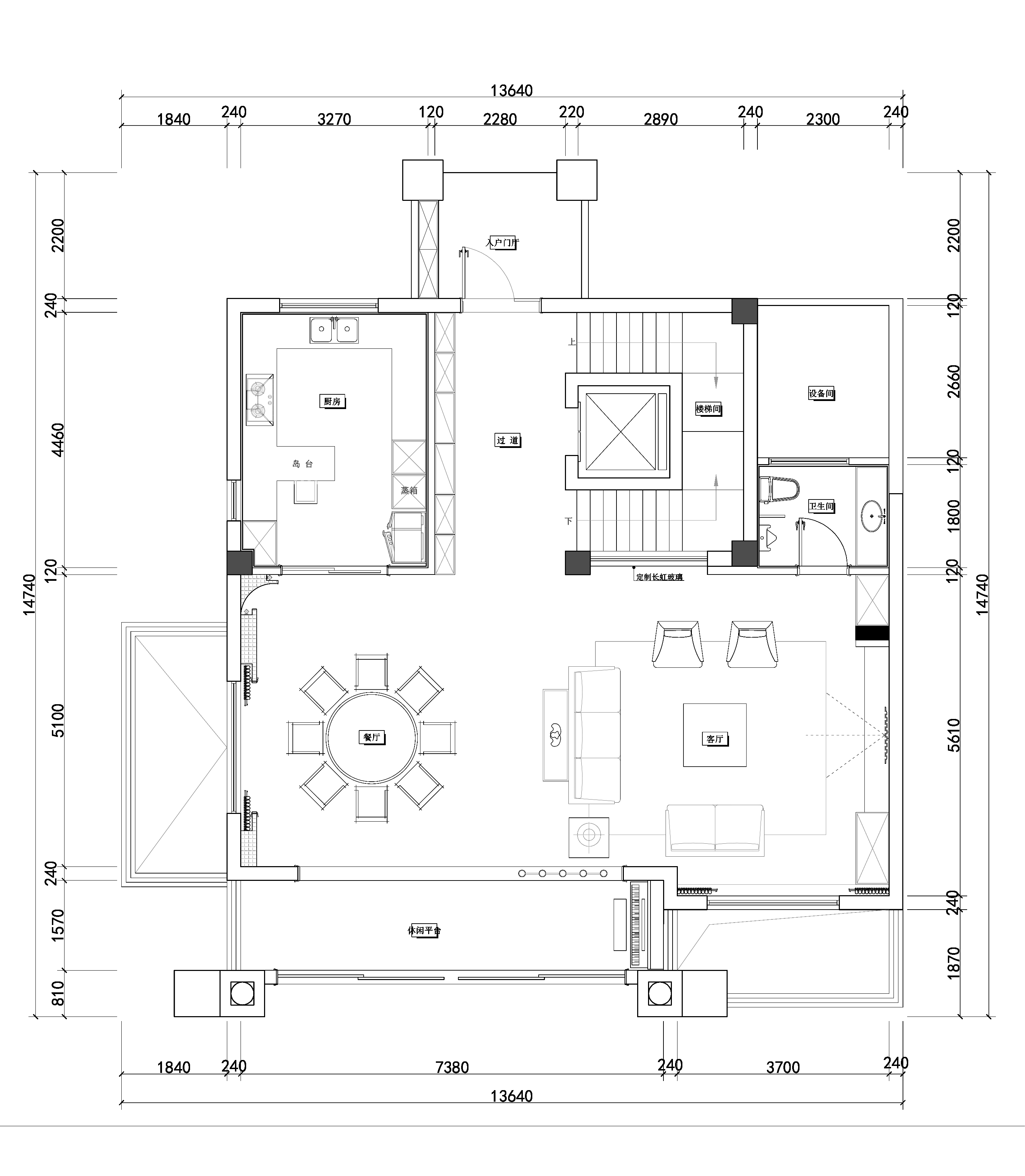
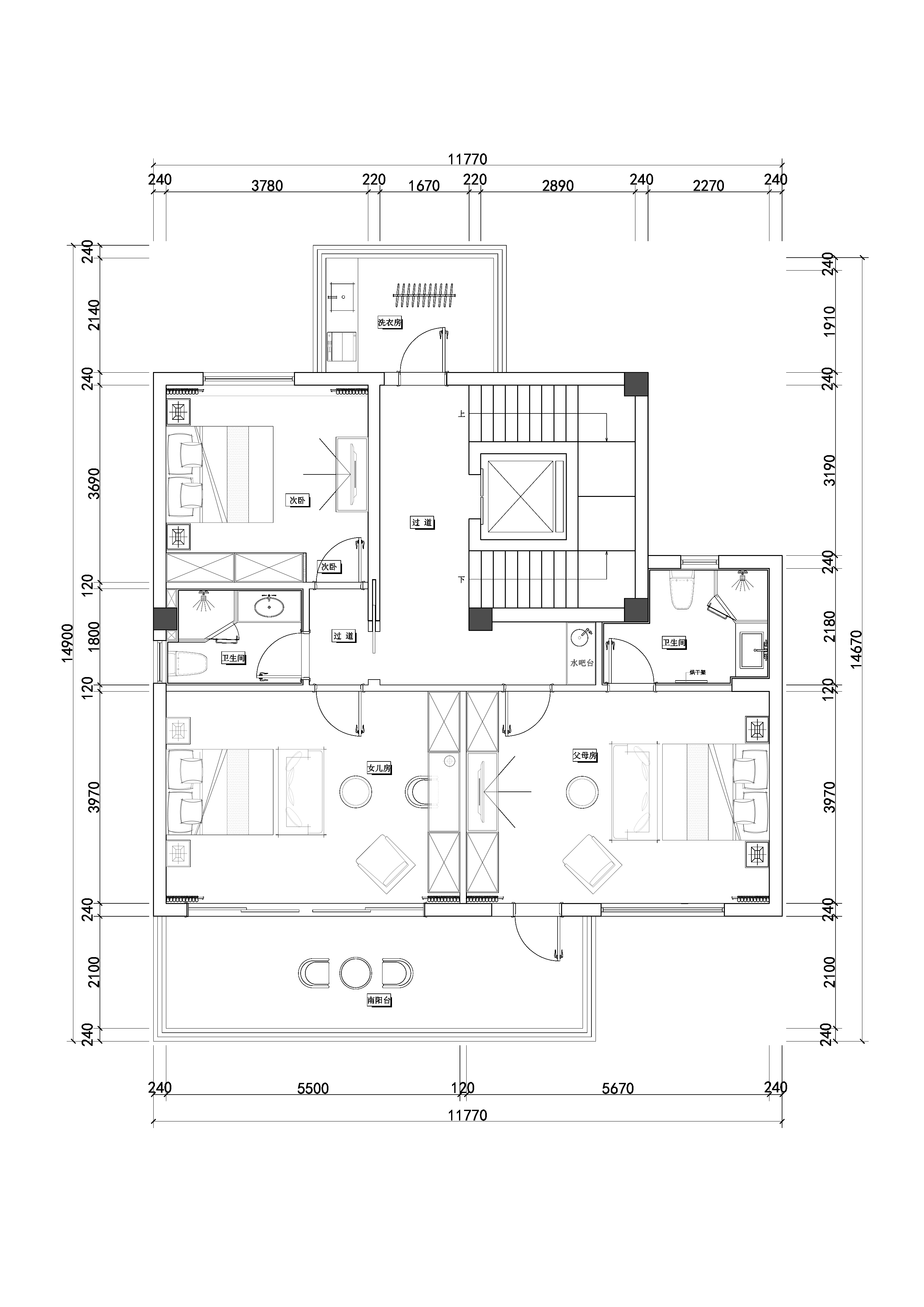
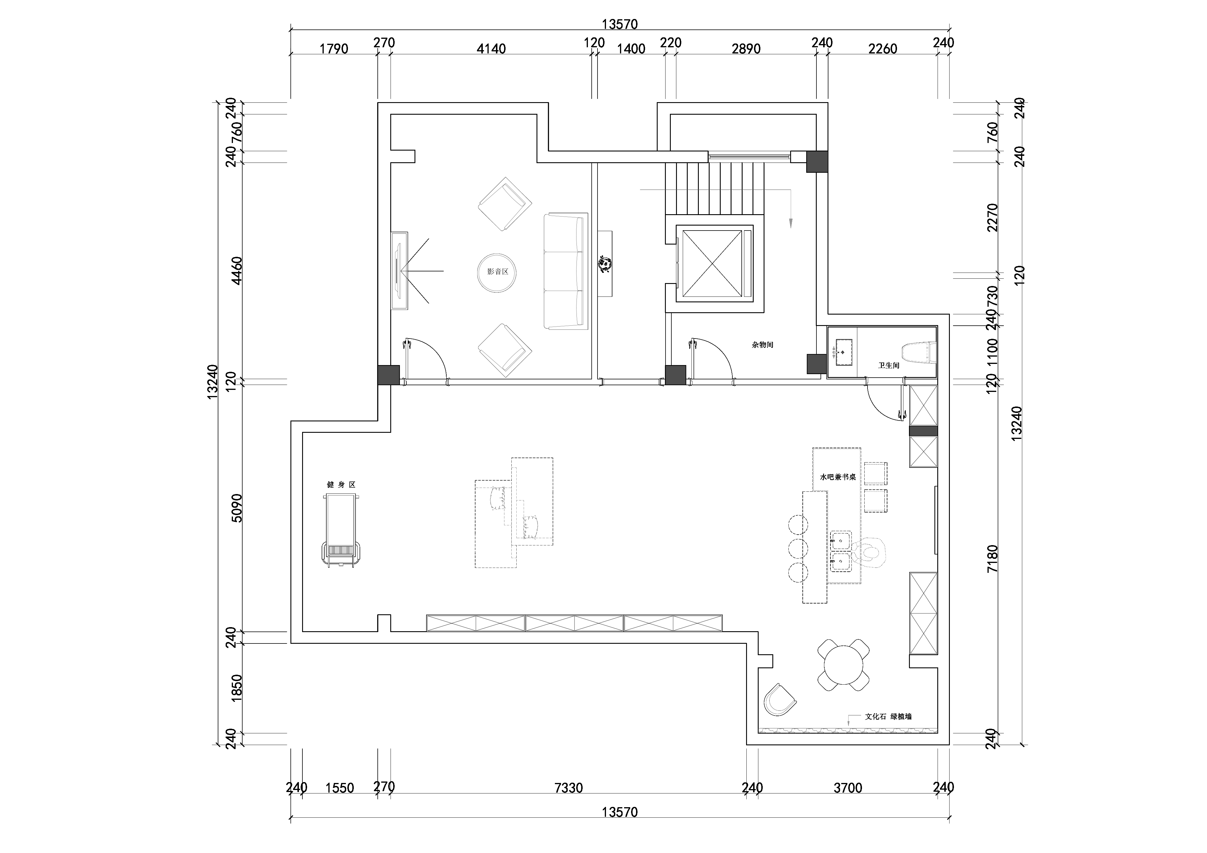
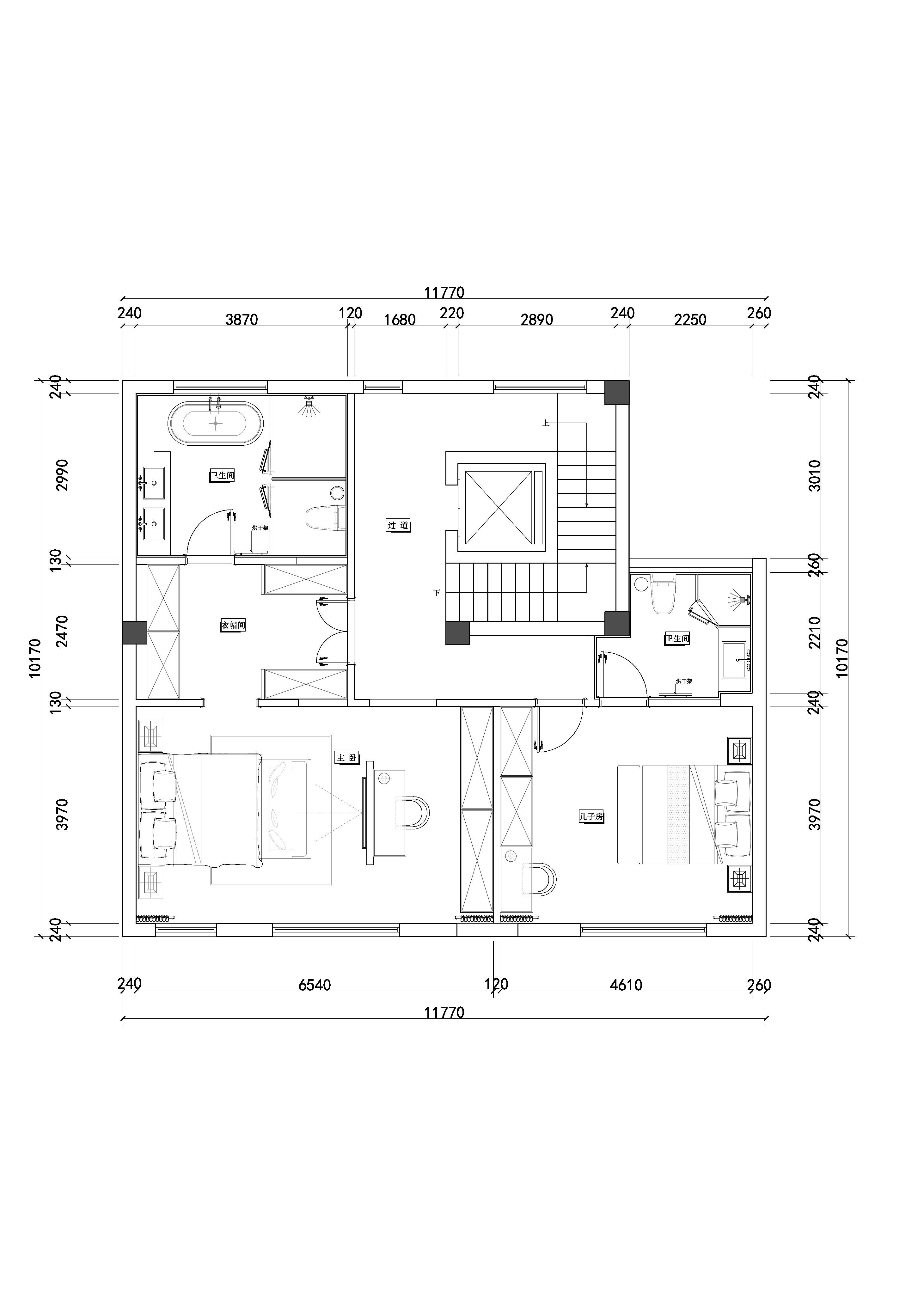
  • 本案是一套480㎡法式联排别墅,地上三层、地下一层,在设计师的精心设计下,为一家六口打造了一个高品质且典雅的家,营造一个令每个家人都能感到充实、舒适和依恋的家。客厅大面积的光线点亮空间,同时也带来了气势磅礴的感觉,仿佛踏进了一座宫殿。沙发围合出一个颇具仪式感的会客区,米色、深蓝色、黑色,演绎现代复古风,同时又充满了当代的艺术元素。客厅与餐厅组成了一个大的开敞式空间,充分捕捉瞬息万变的自然光线,运用简约的线条、白色大理石、灰色的木饰墙面营造出了弥漫在空气中的优雅格调。大理石餐桌,搭配浅蓝与白色结合的皮质餐椅,高贵而华丽。烂漫的泡泡灯营造浪漫舒适的就餐氛围。 主卧将灰色的护墙板与cole&son乌云壁纸相结合,不同灰度的云彩在天空中翻滚,为宽敞的室内增添了深度和戏剧性,激发人们的想象力。顶面的装饰线条较客厅更加繁复生动,让休憩空间活泼华丽。家具的选择上,米色的床大气优雅,简约的米色丝质窗前凳,黑色亮光漆五斗柜,精致又温馨。 这套别墅的设计灵感真是来自于在巴黎游学的感悟,既有卢浮宫博物馆、卢森堡公园、巴黎圣母院、亚历山大三世桥这些最知名的建筑,也有深藏在脑海里的塞纳河畔的书摊、小咖啡馆里柔和的灯光。 将现代主义的灵魂注入到优雅、浪漫的古典浪漫主义当中,通过简约质朴的设计手法,丰富空间的内涵,为居住者营造最独特的空间体验,将日常生活与仪式感统一,艺术和人文的熏陶化为对家最美好的向往。
  • 图片
  • 图片
  • 图片
  • 图片
  • 图片
  • 图片
  • 图片
  • 图片
  • 图片
  • 图片
  • 图片
  • 图片
  • 图片
  • 图片
  • 图片
  • 图片
  • 图片
  • 图片
  • 图片
  • 图片
  • 图片
  • 图片
  • 图片
  • 图片
  • 图片
  • 图片
  • 图片
  • 图片
  • 图片
  • 图片
  • 图片
  • 图片
  • 图片
  • 图片
  • 图片
  • 图片
  • 图片
  • 图片
  • 图片
  • 图片
  • 图片
  • 图片
  • 图片
  • 上一个 下一个
    2024第八届金腾奖 私宅(独居)丨私宅(多人居)丨餐饮丨酒店丨办公丨商业丨公共丨公益丨人物丨NEW100 jintengAWARD(小金_金腾奖组委会) 广州市海珠区琶洲大道68号华新中心21楼
    金腾奖视频号 金腾奖小红书号 监制:刘译遥
    统筹:张俊媚
    运营:赖钰炼 曹凯月 刘芳棋 小金
    新媒体:王贝贝 严洁 张文一
    技术:黄天佑 丁德昌
    最终解释权归金腾奖主办方所有