Simple yet extraordinary, living by the light
作品详情
  • Details of the work 标题横线
    头像或者logo
    图片 盛玲玲
    城市:苏州
    公司: 上海星杰装饰有限公司苏南分公司
    参赛作品: 简而非凡,逐光而居
    空间类型:别墅
    个人/公司简介:
    中国建筑装饰协会高级室内建筑师中国建筑装饰协会高级住宅室内设计师 中国建筑装饰协会软装设计师 2008年 亚太室内设计双年大奖赛提名奖2010年度客户满意度金奖2010年 “中国南京顶级大宅高端设计大赛”荣获 “杰出空间设计大奖”2017年苏州青年设计金奖2019大设无界软装陈设奖
    设计说明 | Design Instruction
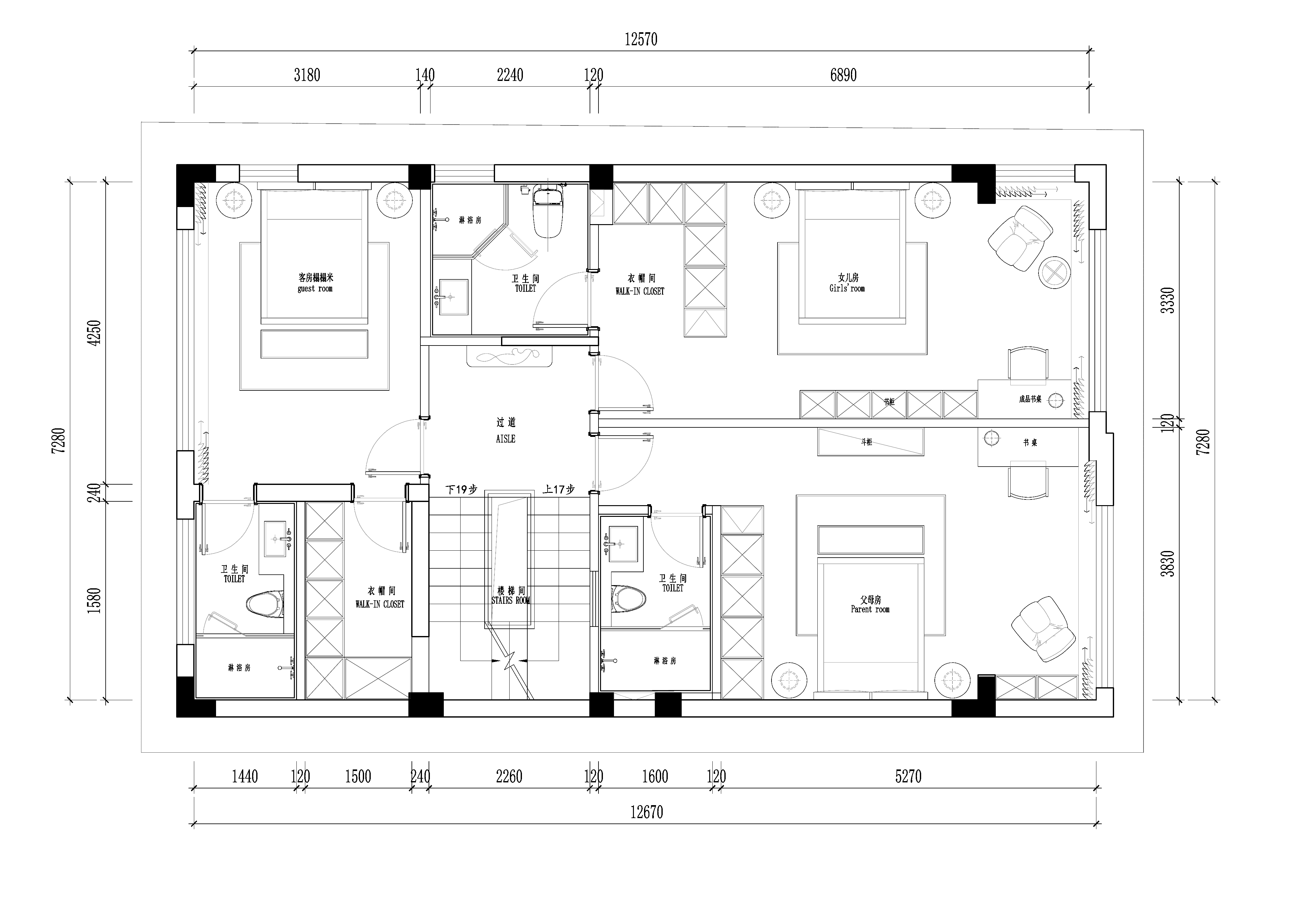
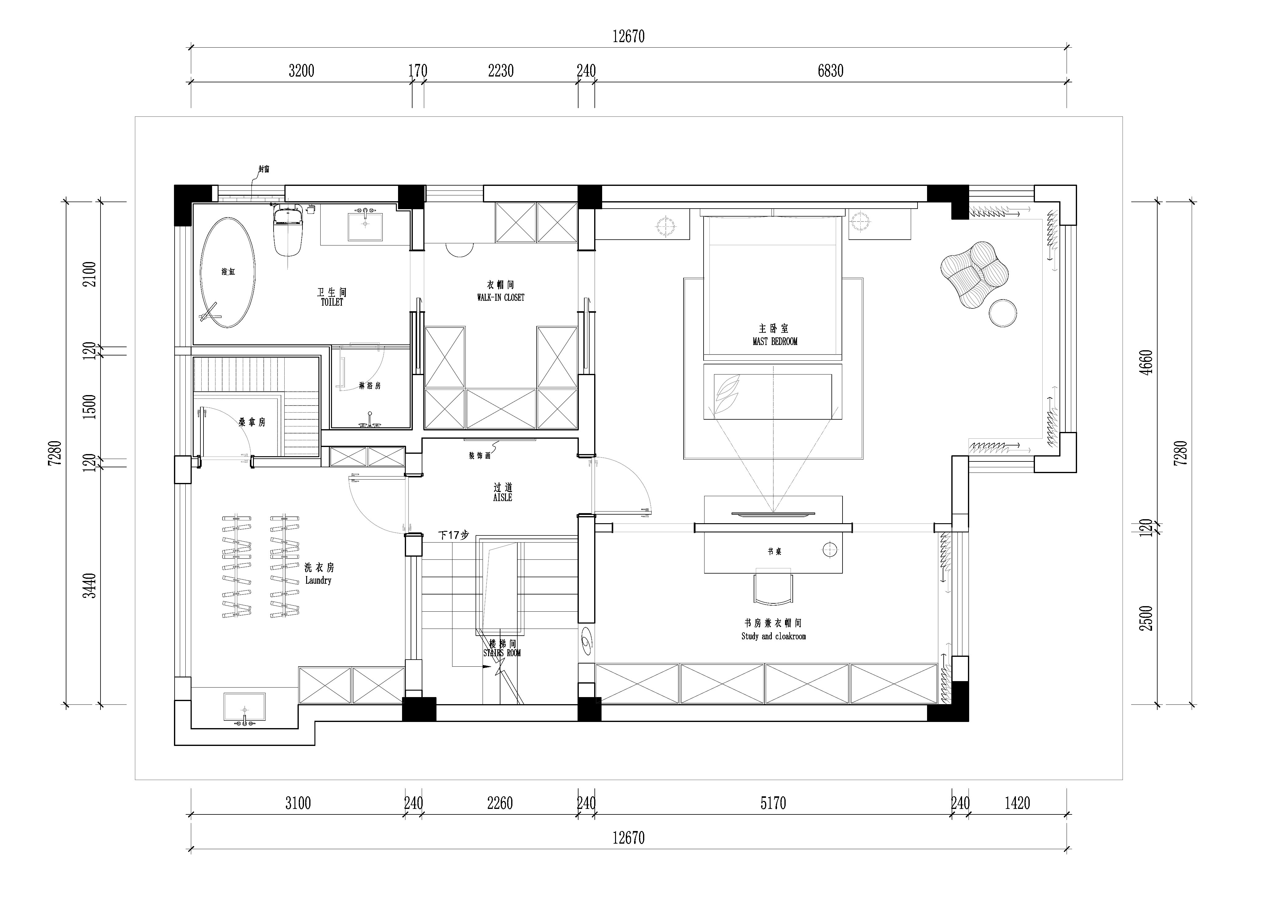
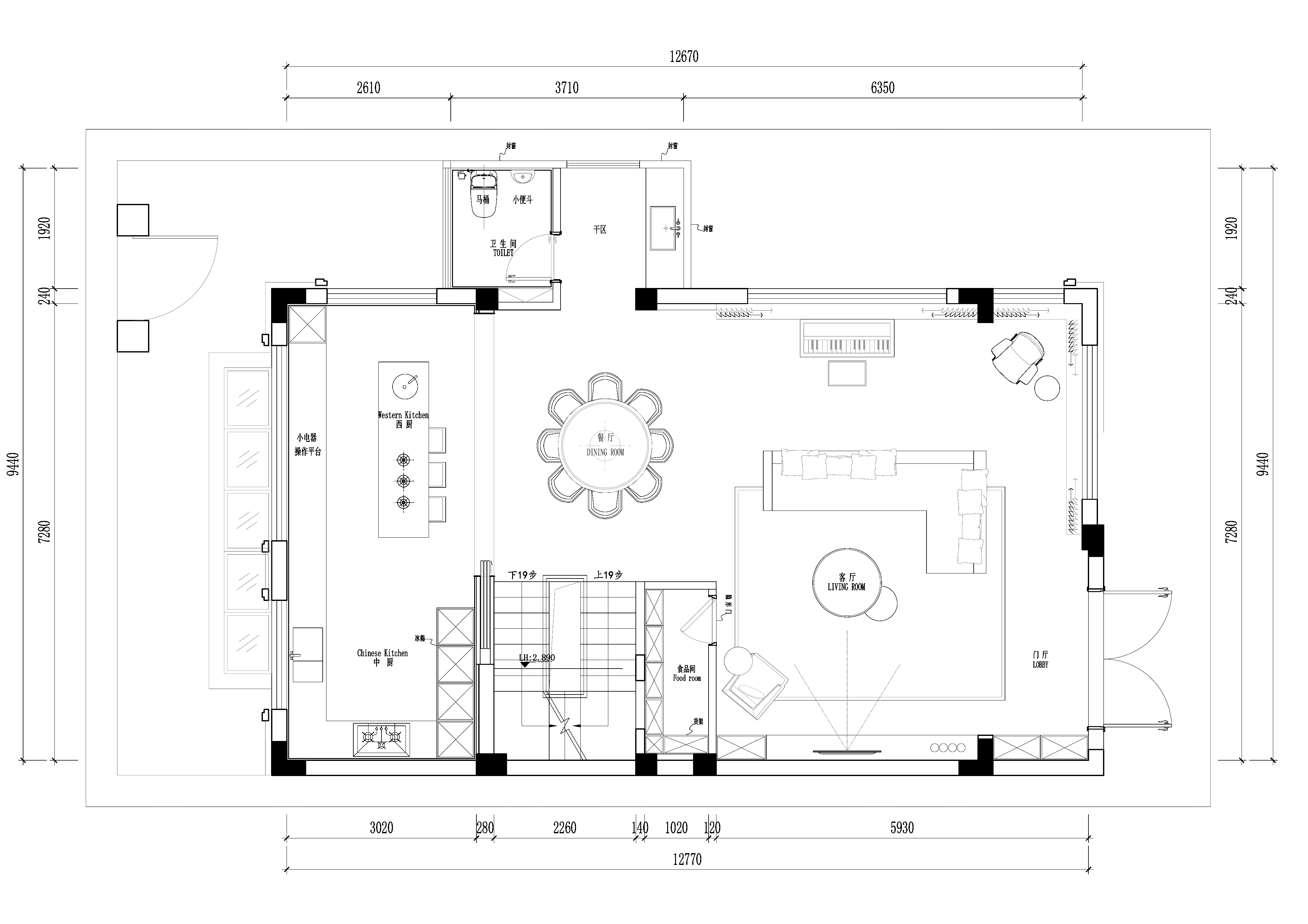
  • 本案是一套400㎡现代极简联排别墅,地上三层、地下一层,在设计师的精心设计下,为一家三口打造了一个高品质的家,营造一个令每个家人都能感到充实、舒适和依恋的家。客厅空间以极简的设计手法打造,整体线条简约干练。电视墙以白色净面柜体拼接胡桃木色内嵌置物格,底部搭配浅灰色大理石,不同材质的碰撞带来设计的玩味。 客厅整体设计以疏阔线条为主,中性内敛的灰色基底,虽材质有别,但在空间中以模块化的形式有序陈列,构建了专属于这个家的秩序。餐厅与客厅相接,形成贯通一体的格局,开阔明亮。无主灯设计简洁大气,通过不同色温的调节可以营造丰富的就餐氛围。圆形的大理石餐桌搭配棕色皮质座椅,圆融的就餐形式符合业主一家的生活方式。 主卧室空间使用青草绿色做床头背景墙,为休憩场域增添一份生机,而又不失静谧的感觉,摒弃传统的床头,更显平静温馨,强化就寝氛围的慢节奏和温度感。 阁楼以最自然的设计手法营造质朴温馨的氛围,充分利用顶面的造型感,搭配两扇大天窗,打造岁月静好的生活氛围。 在终日奔波后,一盏灯、一扇窗,在围合筑起安全的保垒内,可以屏蔽世间繁杂、感受岁月漫流,让内心变得无限充盈。 视线所及的细节,无不彰显着此间生活的质感。 以最简练的设计笔触建造雅奢的空间情调,从本真出发给人们一个从繁琐生活到精致简约的状态,为业主一家缔造一处美好的生活场景,从而唤起人最本真的模样,是设计师的初心。
  • 图片
  • 图片
  • 图片
  • 图片
  • 图片
  • 图片
  • 图片
  • 图片
  • 图片
  • 图片
  • 图片
  • 图片
  • 图片
  • 图片
  • 图片
  • 图片
  • 图片
  • 图片
  • 图片
  • 图片
  • 图片
  • 图片
  • 图片
  • 图片
  • 图片
  • 图片
  • 图片
  • 图片
  • 图片
  • 图片
  • 图片
  • 图片
  • 图片
  • 图片
  • 图片
  • 图片
  • 图片
  • 图片
  • 图片
  • 图片
  • 上一个 下一个
    2024第八届金腾奖 私宅(独居)丨私宅(多人居)丨餐饮丨酒店丨办公丨商业丨公共丨公益丨人物丨NEW100 jintengAWARD(小金_金腾奖组委会) 广州市海珠区琶洲大道68号华新中心21楼
    金腾奖视频号 金腾奖小红书号 监制:刘译遥
    统筹:张俊媚
    运营:赖钰炼 曹凯月 刘芳棋 小金
    新媒体:王贝贝 严洁 张文一
    技术:黄天佑 丁德昌
    最终解释权归金腾奖主办方所有