优享.空间
作品详情
  • Details of the work 标题横线
    头像或者logo
    图片 由娜 中装设计师平台特约推荐
    城市:北京
    公司: 北京筑诚瑞斯建筑装饰有限公司
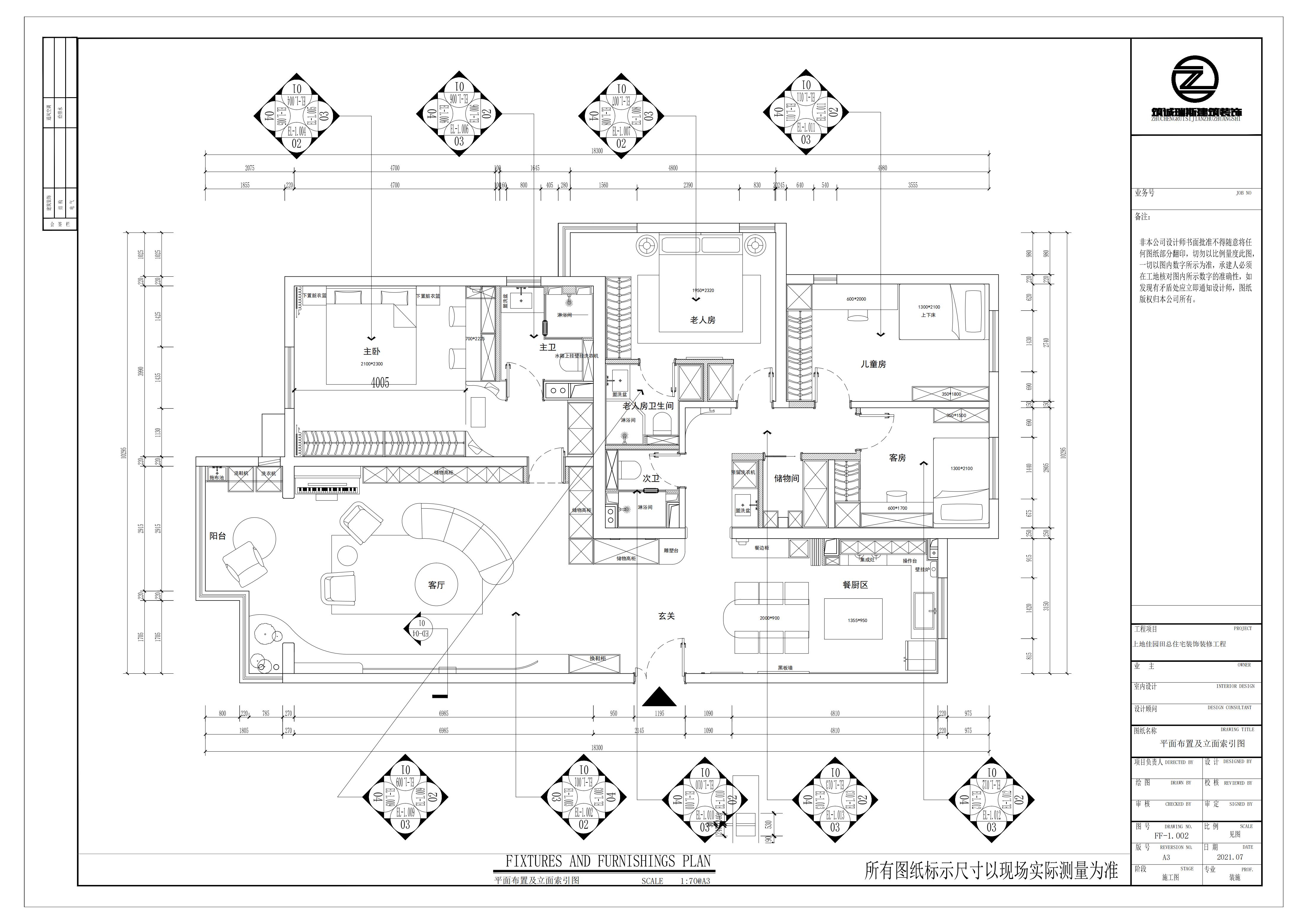
    参赛作品: 优享.空间
    空间类型:公寓(150㎡以下)
    个人/公司简介:
    由娜 筑诚瑞斯建筑装饰创始人,设计总监 从业15年 主要荣誉: 欧神诺“新人杯”全国室内设计大赛“优秀奖” 博洛尼“新人杯”全国手绘大赛“入围奖” 2013年度“美涂士漆杯”全国室内环保设计精英赛“特等奖” 中央电视台《交换空间》明星设计师 2018年金鹰奖作品金奖 2018年年度青年设计专家奖 2019年华鼎奖别墅设计作品金奖 2019年度行业十大最具原创设计师(别墅豪宅空间类)。
    设计说明 | Design Instruction
  • 生活需要仪式感,与经济无关,只是对生活的热爱,美和爱是我们能对庸常生活所做的最大的改变和不妥协。 设计特色:在本案中,其特点是平面的空间功能改造。由于常驻人口较多,需要四间卧室和主卧的独立卫生间,老人房的独立卫生间,及公卫。所以在空间上做了相对大的调整。造型上以弧形为主要方式,让空间感更加柔和,加之暖色调的颜色,局部点缀了些色彩的碰撞。使整个空间温暖有不失精彩。点光源的针对照明,软装的童趣搭配,都会让空间变得灵活有趣。
  • 图片
  • 图片
  • 图片
  • 图片
  • 图片
  • 图片
  • 图片
  • 图片
  • 图片
  • 图片
  • 图片
  • 图片
  • 图片
  • 图片
  • 图片
  • 图片
  • 图片
  • 图片
  • 图片
  • 图片
  • 图片
  • 图片
  • 图片
  • 图片
  • 图片
  • 图片
  • 图片
  • 图片
  • 图片
  • 图片
  • 图片
  • 图片
  • 图片
  • 图片
  • 图片
  • 图片
  • 图片
  • 图片
  • 图片
  • 图片
  • 图片
  • 图片
  • 上一个 下一个
    2024第八届金腾奖 私宅(独居)丨私宅(多人居)丨餐饮丨酒店丨办公丨商业丨公共丨公益丨人物丨NEW100 jintengAWARD(小金_金腾奖组委会) 广州市海珠区琶洲大道68号华新中心21楼
    金腾奖视频号 金腾奖小红书号 监制:刘译遥
    统筹:张俊媚
    运营:赖钰炼 曹凯月 刘芳棋 小金
    新媒体:王贝贝 严洁 张文一
    技术:黄天佑 丁德昌
    最终解释权归金腾奖主办方所有