北京天鹅湾复式
作品详情
  • Details of the work 标题横线
    头像或者logo
    图片 韩冰 中装设计师平台特约推荐
    城市:北京
    公司: 韩冰空间设计
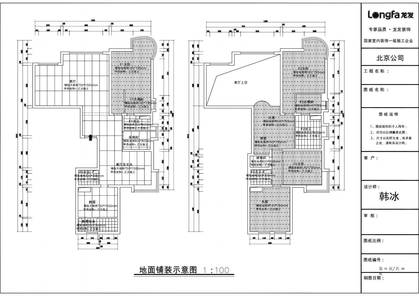
    参赛作品: 北京天鹅湾复式
    空间类型:别墅
    个人/公司简介:
    设计理念:注重房屋设计的功能性,美观性,个性化,对于材料运用首先从环保角度出发,掌握人体工程学的设计尺寸,打造动静分开,提倡引入自然光源设计,使空间除了美观和使用,更具有空间情绪氛围,设计是建筑的灵魂,是人与环境的联系。 首席设计师:韩冰 星座:天秤座 从业经验:18年 抖音/小红书推荐网红设计师(搜索 韩冰空间设计) 毕业院校:2008年进修于清华大学艺术系 2013年进修于圣诺佳诚软装 2019年深造易墅佳奇门遁甲风水班 所获荣誉: 中国建筑装饰设计协会高级设计师职称 2023年荣获“筑巢别墅设计金奖” 2022年荣获“设博会 华鼎奖 金奖” 2021年荣获“筑巢平层设计金奖” 2020年荣获“筑巢办公空间金奖” 2020年特邀“住小帮特邀设计师” 2019年荣获:龙发装饰北京设计师签单冠军奖 2008-2018年:所属奖项不断更新 擅长风格:意式轻奢 现代极简 奶油风 诧寂风 轻法式 新中式 欧式古典 代表作品“中海甲三号院 ,星河湾, 天鹅湾复式, (顺义)誉天下别墅 ,(廊坊)孔雀城别墅 ,(通州)V7九间堂别墅 ,(房山)山语澜庭别墅, (昌平)中海尚湖世家别墅 ,(大兴)秀水花园别墅 ,观湖国际 ,泰禾西府大院 ,怡海花园 ,中信城, 熙红印 ,世纪城,金悦府, 永泰园 ,部队房等等......
    设计说明 | Design Instruction
  • 本案位于北京朝阳区天鹅湾住宅小区 项目面积:300平米 二次装修改造 居住十几年的时间,之前装修是厚重感的欧式风格,经和业主沟通确认,本案定为现代极简风格。 设计理念:强调简洁的设计,去除多余的装饰和繁杂元素,追求极致的简洁与纯粹。打造开阔的空间布局,减少隔断,增强空间的流动性和互动性。最大程度利用自然光线,营造明亮、通透的居住环境。 注重空间的实用性和功能性,满足居住者的生活需求。选用高品质的天然材料,展现材料的原始质感和美感。采用简洁的色彩搭配,如中性色、单一色调等,营造宁静、优雅的氛围。运用简洁的线条和几何形状,体现简洁、现代的风格。坚信简洁的设计更能展现品质和品味。设计灵活可变的空间,适应不同的生活需求和场景。在细节处体现精致和品质,如边角处理、五金配件等。选择环保材料,减少对环境的影响,追求可持续的设计。将自然元素引入室内,如植物、自然光线等,营造与自然融合的氛围。 确保居住者在空间中拥有舒适的体验,注重人体工程学和舒适度。
  • 图片
  • 图片
  • 图片
  • 图片
  • 图片
  • 图片
  • 图片
  • 图片
  • 图片
  • 图片
  • 图片
  • 图片
  • 图片
  • 图片
  • 图片
  • 图片
  • 图片
  • 图片
  • 上一个 下一个
    2024第八届金腾奖 私宅(独居)丨私宅(多人居)丨餐饮丨酒店丨办公丨商业丨公共丨公益丨人物丨NEW100 jintengAWARD(小金_金腾奖组委会) 广州市海珠区琶洲大道68号华新中心21楼
    金腾奖视频号 金腾奖小红书号 监制:刘译遥
    统筹:张俊媚
    运营:赖钰炼 曹凯月 刘芳棋 小金
    新媒体:王贝贝 严洁 张文一
    技术:黄天佑 丁德昌
    最终解释权归金腾奖主办方所有