黑白与灰
作品详情
  • Details of the work 标题横线
    头像或者logo
    图片 李茹
    城市:芜湖
    公司: 梵空间设计
    参赛作品: 黑白与灰
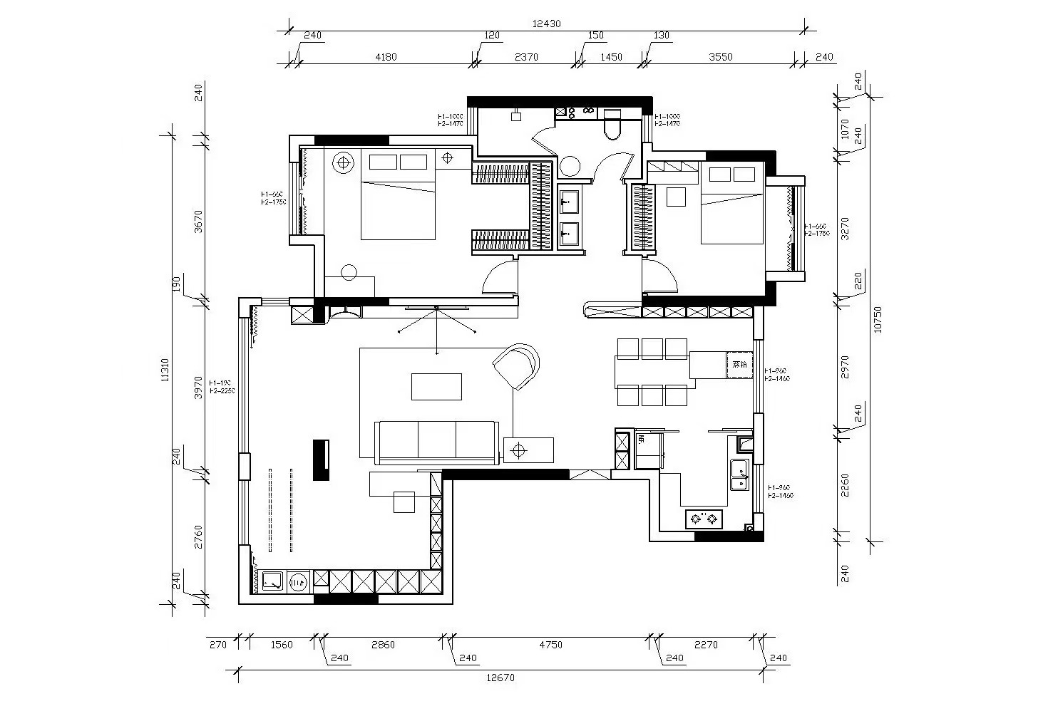
    空间类型:公寓(150㎡以下)
    个人/公司简介:
    不套模版 原创设计 爱养猫的设计师 天马行空 无拘无束 大宅 别墅 商业空间
    设计说明 | Design Instruction
  • 明暗至简 黑白主义|黑得沉静而深邃 白得干净而纯粹 灰色是色彩的中立 设计之初,我正在浅读蒋勋的「写给大家的中国美术史」。 ”直线很整齐,比较安稳。好像我们住的房子,大部分都是直线,看起来非常稳定,风也吹不动。推也推不倒。“ 这段话我印象深刻。 在空间设计中,直线的运用几乎无处不在。直线从空间中延展出来,又从别处延伸进去。 男女主人对空间认知的一致性以及对色彩要求的严密度,使得本案从一开始便成为了一场线条与色彩之间游刃有余的游戏。被偏爱的黑白灰更加有恃无恐,在「客厅」这个空间中迅速占地为营,找到属于自己位置,转而与空间成为一个简洁有力的整体。 无处不在的黑白灰在空间中的色彩语言便显得极富有张力而又处处低调。一面是平整的黑色柜门,一面是黝黑的自然纹理石材,粗犷与细腻的剑拔弩张,线条维持着恰到好处的平衡。 “可是,相反地,曲线就有流动的感觉。曲线构成的圆形,像玻璃弹珠,像车子的轮子,都是可以滚动的。” 我们往往在空间设计中,让直线与曲线相辅相成而又互相成就,灯具与椅子都巧妙的用到了曲线,让静止的空间开始流动起来。
  • 图片
  • 图片
  • 图片
  • 图片
  • 图片
  • 图片
  • 图片
  • 图片
  • 图片
  • 图片
  • 图片
  • 图片
  • 图片
  • 图片
  • 图片
  • 图片
  • 图片
  • 图片
  • 图片
  • 图片
  • 图片
  • 图片
  • 图片
  • 图片
  • 图片
  • 图片
  • 图片
  • 图片
  • 图片
  • 图片
  • 图片
  • 图片
  • 图片
  • 图片
  • 图片
  • 图片
  • 图片
  • 图片
  • 图片
  • 图片
  • 图片
  • 图片
  • 上一个 下一个
    2024第八届金腾奖 私宅(独居)丨私宅(多人居)丨餐饮丨酒店丨办公丨商业丨公共丨公益丨人物丨NEW100 jintengAWARD(小金_金腾奖组委会) 广州市海珠区琶洲大道68号华新中心21楼
    金腾奖视频号 金腾奖小红书号 监制:刘译遥
    统筹:张俊媚
    运营:赖钰炼 曹凯月 刘芳棋 小金
    新媒体:王贝贝 严洁 张文一
    技术:黄天佑 丁德昌
    最终解释权归金腾奖主办方所有