线条与色彩的叙事
作品详情
  • Details of the work 标题横线
    头像或者logo
    图片 为睦设计 EDG贰道杠传媒特约推荐
    城市:苏州
    公司:为睦设计
    参赛作品: 线条与色彩的叙事
    空间类型:别墅
    个人/公司简介:
    为睦设计是一家专注于私宅设计研究的工作室,以为私宅客户提供精细化设计解决方案为目标。我们坚持住宅空间设计,应该立足于空间使用者本身,充分了解并尊重每一个人不同的生活方式。让设计建立于生活之上,服务于生活,并且兼具美学与人文。将家营造成令人身心愉悦,轻松自如的生活空间。为住家,睦生活。
    设计说明 | Design Instruction
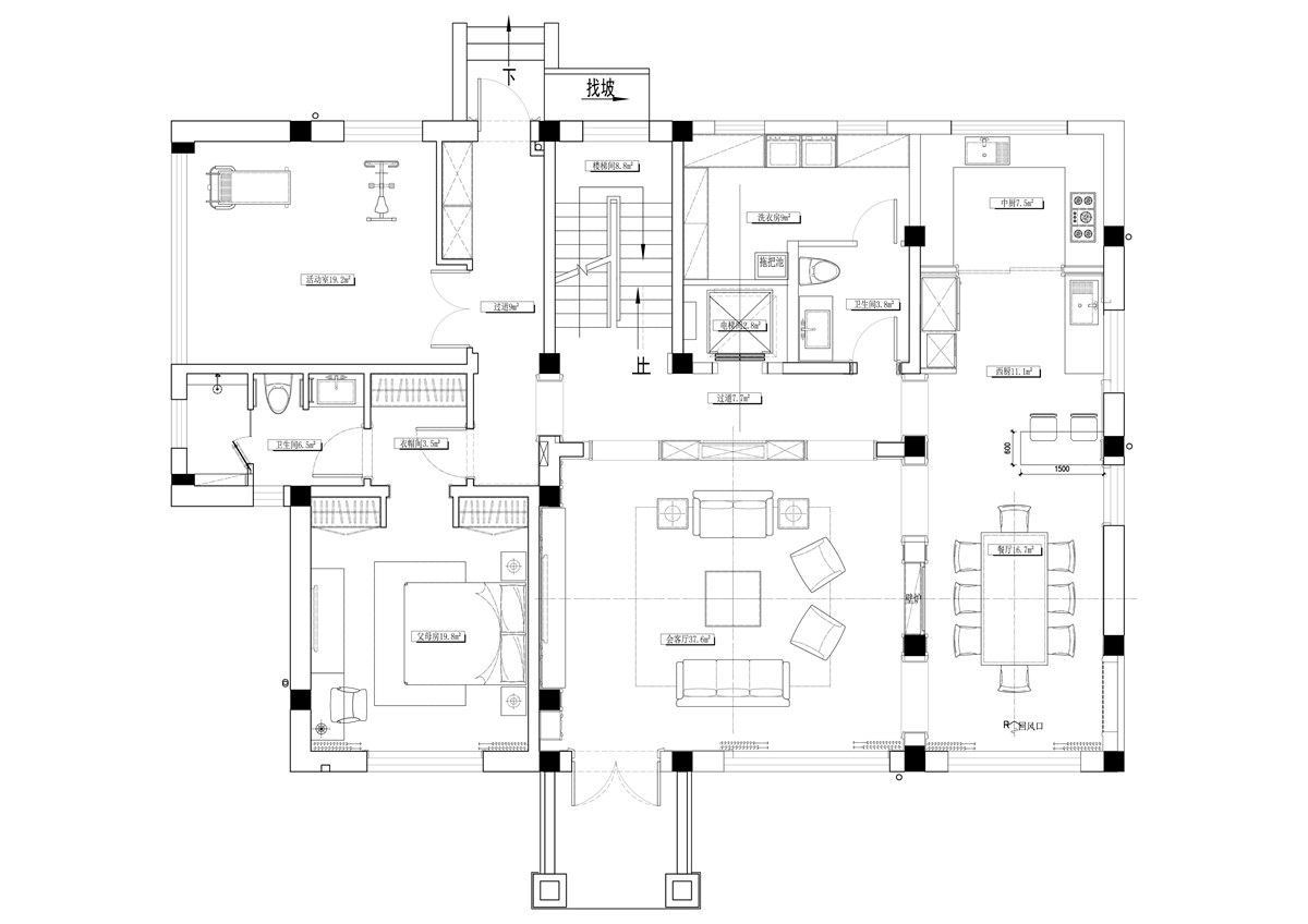
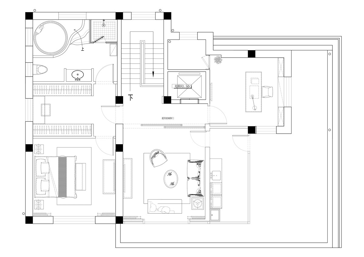
  • 为睦设计 | 线条与色彩的叙事 空间的表达是情感的映射 在家这个空间里,我们能遇见真实的自我 The expression of space is the mapping of emotions 本案是位于昆山的别墅,我们用线条与色彩作为设计的主体语言,细致刻画出空间的秩序和家的情绪氛围,诠释业主对浪漫精致生活的理解。 PART 01 / 客厅 Living room 挑高的空间创造开阔的格局,引入充足的自然光,形成美妙的光影,带给居者舒适美好的空间体验。依托挑高的开阔视野,二楼走廊的悬挑露台成为了空间的视觉焦点。露台处于空间核心位置,以流畅优美的弧线打破常规,吸引着人的目光,诠释法式典雅的美学渊源。 空间原有的梁柱被修饰得整齐划一,细腻的几何线条排列出井井有条的序列,简约而精致,充实着空间,将法式优雅浪漫的情愫浸染在细节里。 双通道设计打开空间的格局,连通客厅与餐厅,形成流畅便捷的动线。从不同角度看过去,空间格局均成中正对称的形态,赋予空间庄重的仪式感。走廊地毯由设计团队设计,更符合空间气质,为新家创造独一无二的归属感。 光是鲜活的,让人对空间产生不一样的感知。 纯净的一隅成为画布,光影游走其上,随时间推移变幻,留下一幅生动的时间画作。纯白的色调剥去繁杂,壁炉渲染出家的舒适放松,坐在安静舒适的空间里,感受时光缓慢的脚步。 色彩是情绪的表达,是生活态度的展现。缤纷的色调在地毯上交融,绚丽而不张扬,中和空间的素净,赋予感官丰富的体验,用看得见的方式展现生活方式的多样。 PART 02 / 餐厨空间 Dining and Kitchen Space 一体化的餐厨空间设计缩短动线,让日常的餐饮更加便捷,也拉近了人与人之间的距离。功能的叠加酝酿丰富的场景变化,一日三餐,聚会,下午茶......无论是平淡的日常还是充满仪式感的时刻,都洋溢着温暖的烟火气。 餐厅的色调温柔而优雅,布艺和木饰面从触感强化优雅气质,并平添舒适的体验。纤细的线条,金属与大理石的运用,彰显骨子里的精致格调。 艺术是生活的一部分,是对生活边界的探索,可以以任何形式存在于日常里,即便是微小的一部分,也足以让简单的生活变得趣味横生。艺术摆件靓丽的色调点亮空间,可爱的造型释放有趣的信号,带来的故事感打破关于空间的想象,创造不一样的精神场域。 PART 03 / 主卧 Master bedroom 卧室的舒适来自人对空间的全方位感知。尖顶的天花设计以线条的汇聚拉伸着空间和视线,塑造开阔的空间体验;色彩在浓淡之间达成平衡和谐,低调舒缓而不缺乏鲜活气息。 PART 04 / 女儿房 Girl's Bedroom 双开门设计贯穿整个空间,从卧室到衣帽间,无一不彰显着生活的精致感与仪式感 。木质与布艺包裹空间,奠定温和舒适的基调。斑斓的色调有别于其他空间,宣告居住者的活力,以及她对于生活的理解:热情,丰富多彩,跃动着生命力。 PART 05 / 楼梯 Stairs 黑金的经典搭配低调奢华有质感。图案作为最直观的表达,由线到面,用重复工整的序列传达空间的精致典雅。
  • 图片
  • 图片
  • 图片
  • 图片
  • 图片
  • 图片
  • 图片
  • 图片
  • 图片
  • 图片
  • 图片
  • 图片
  • 图片
  • 图片
  • 图片
  • 图片
  • 图片
  • 图片
  • 图片
  • 图片
  • 图片
  • 图片
  • 图片
  • 图片
  • 图片
  • 图片
  • 图片
  • 图片
  • 图片
  • 图片
  • 图片
  • 图片
  • 图片
  • 图片
  • 图片
  • 图片
  • 图片
  • 图片
  • 图片
  • 图片
  • 图片
  • 上一个 下一个
    2024第八届金腾奖 私宅(独居)丨私宅(多人居)丨餐饮丨酒店丨办公丨商业丨公共丨公益丨人物丨NEW100 jintengAWARD(小金_金腾奖组委会) 广州市海珠区琶洲大道68号华新中心21楼
    金腾奖视频号 金腾奖小红书号 监制:刘译遥
    统筹:张俊媚
    运营:赖钰炼 曹凯月 刘芳棋 小金
    新媒体:王贝贝 严洁 张文一
    技术:黄天佑 丁德昌
    最终解释权归金腾奖主办方所有