无上岩板总部展厅
作品详情
  • Details of the work 标题横线
    头像或者logo
    图片 孙招展
    城市:厦门
    公司: 孙招展设计事务所
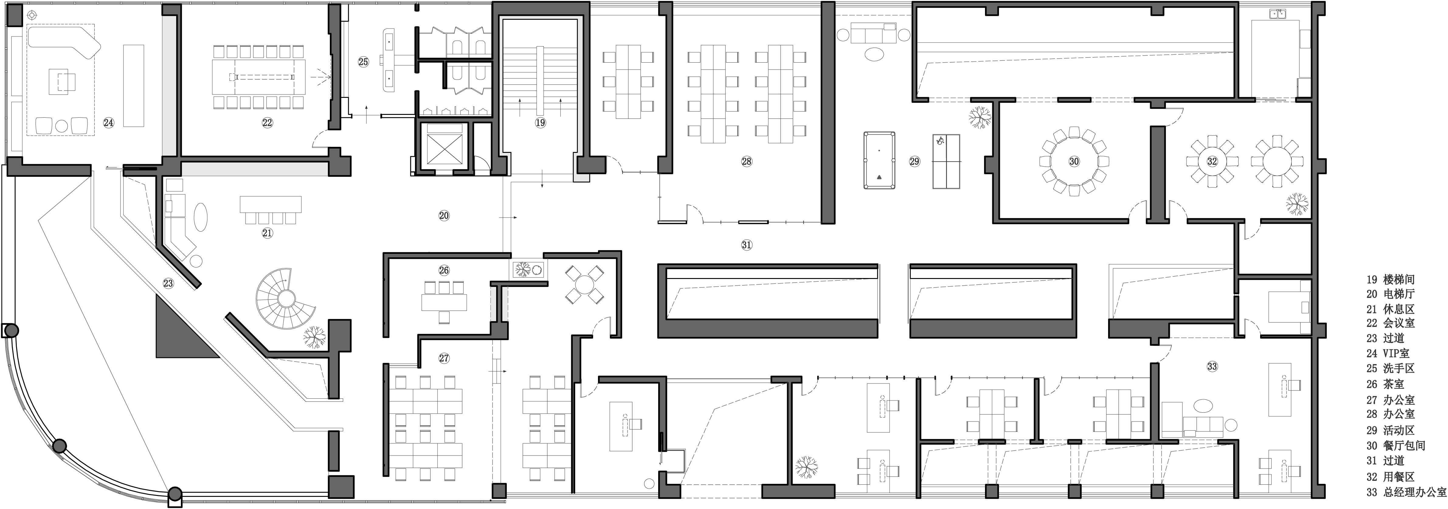
    参赛作品: 无上岩板总部展厅
    空间类型:办公
    个人/公司简介:
    1999年厦门工艺美术学院毕业,从业25年。 设计理念:设计是解决问题,业主需求是设计师所要思考的。建筑空间跟自然光的关系是设计师必须要思考的。
    设计说明 | Design Instruction
  • 穿插是现代建筑设计手法之一,设计师采用穿插,解构设计思维,让本案充满艺术气息。错位与悬狐的元素成为空间的一部分,它们巧妙地与环境融合,营造出一种动态感与未知感,吸引着参观者的探索。空间高差的变化使得不同区域拥有独特的氛围与功能。 通道入口通过朴实无华的物理形态创造出安静的氛围,营造出未来感的宁静,融合了技术空间和建筑手法,植物造景三面通透。 设计描绘出空间的气质,也宣告着温暖与气质之间,可以找到一种完美的平衡,在空间的建构上,形成新的意指。 明和暗的差异自然地形成室内外不同空间划分的心理暗示。光的微妙的强弱变化造就空间的层次感。 光渲染气氛:晴空万里,细雨连绵,不同的环境带给我们不同的心情,这当中光的变化起着重要作用。光渲染的气氛对人的心理状态和光环境的艺术感染力有决定性的影响 呈现出休闲的空间感,宽敞整洁的内部空间,以独特外贯穿整个展厅。满满的细节工艺,也蕴含着无处不在的艺术感,深入感知艺术的细腻,明与暗的空间对比,衬托了时间的意义。无论是横向还是纵向,空间都满满的美学包裹着,让人不得不沉浸于这种享受之中。 在自然光影的照耀下,室内营造的氛围也将更为突出,并更好的展示材料肌理。通过玻璃砖透明材质、在光影的照射下,往往会产生宛如幻境的意境和富有朦胧感的艺术氛围。 用专业灯光团队打造,才能达到最好的展示效果。在灯光设计方面,我们使用暖色调的灯光来烘托岩板的质感和颜色,营造出温馨,舒适的环境氛围。在展示区,可以利用不同角度的照明来突出岩板的质感,提升产品的美感和品质。
  • 图片
  • 图片
  • 图片
  • 图片
  • 图片
  • 图片
  • 图片
  • 图片
  • 图片
  • 图片
  • 图片
  • 图片
  • 图片
  • 图片
  • 图片
  • 图片
  • 图片
  • 图片
  • 图片
  • 图片
  • 图片
  • 图片
  • 图片
  • 图片
  • 图片
  • 图片
  • 图片
  • 图片
  • 图片
  • 图片
  • 图片
  • 图片
  • 图片
  • 图片
  • 图片
  • 图片
  • 上一个 下一个
    2024第八届金腾奖 私宅(独居)丨私宅(多人居)丨餐饮丨酒店丨办公丨商业丨公共丨公益丨人物丨NEW100 jintengAWARD(小金_金腾奖组委会) 广州市海珠区琶洲大道68号华新中心21楼
    金腾奖视频号 金腾奖小红书号 监制:刘译遥
    统筹:张俊媚
    运营:赖钰炼 曹凯月 刘芳棋 小金
    新媒体:王贝贝 严洁 张文一
    技术:黄天佑 丁德昌
    最终解释权归金腾奖主办方所有