NATURE
作品详情
  • Details of the work 标题横线
    头像或者logo
    图片 王晨月
    城市:南京
    公司: 独立设计师
    参赛作品: 那特美业
    空间类型:办公
    个人/公司简介:
    独立设计师
    设计说明 | Design Instruction
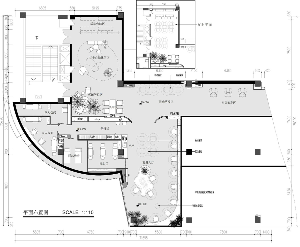
  • 作品设计理念:店名那特为英文“nature”的音译,业主希望整体调性是干净,自然的空间,我们结合了绿植,最大限度的保证了室内的采光,来给顾客打造一个更加自然舒适的空间。 作品创意点:在保证理发师使用舒适的尺寸同时,最大化的利用了空间,在有限的面积和预算内布置了较多的座位数,同时也结合了绿植在中岛位置做为剪发大厅的“门面担当”。 设计风格陈述:现代都市自然风
  • 图片
  • 图片
  • 图片
  • 图片
  • 图片
  • 图片
  • 图片
  • 图片
  • 图片
  • 图片
  • 图片
  • 图片
  • 图片
  • 图片
  • 图片
  • 图片
  • 图片
  • 图片
  • 图片
  • 图片
  • 图片
  • 上一个 下一个
    2024第八届金腾奖 私宅(独居)丨私宅(多人居)丨餐饮丨酒店丨办公丨商业丨公共丨公益丨人物丨NEW100 jintengAWARD(小金_金腾奖组委会) 广州市海珠区琶洲大道68号华新中心21楼
    金腾奖视频号 金腾奖小红书号 监制:刘译遥
    统筹:张俊媚
    运营:赖钰炼 曹凯月 刘芳棋 小金
    新媒体:王贝贝 严洁 张文一
    技术:黄天佑 丁德昌
    最终解释权归金腾奖主办方所有