JIANG SHAN DA JING
作品详情
  • Details of the work 标题横线
    头像或者logo
    图片 王晨月
    城市:南京
    公司: 独立设计师
    参赛作品: 江山大境
    空间类型:公寓(150㎡以下)
    个人/公司简介:
    独立设计师
    设计说明 | Design Instruction
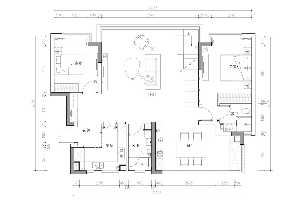
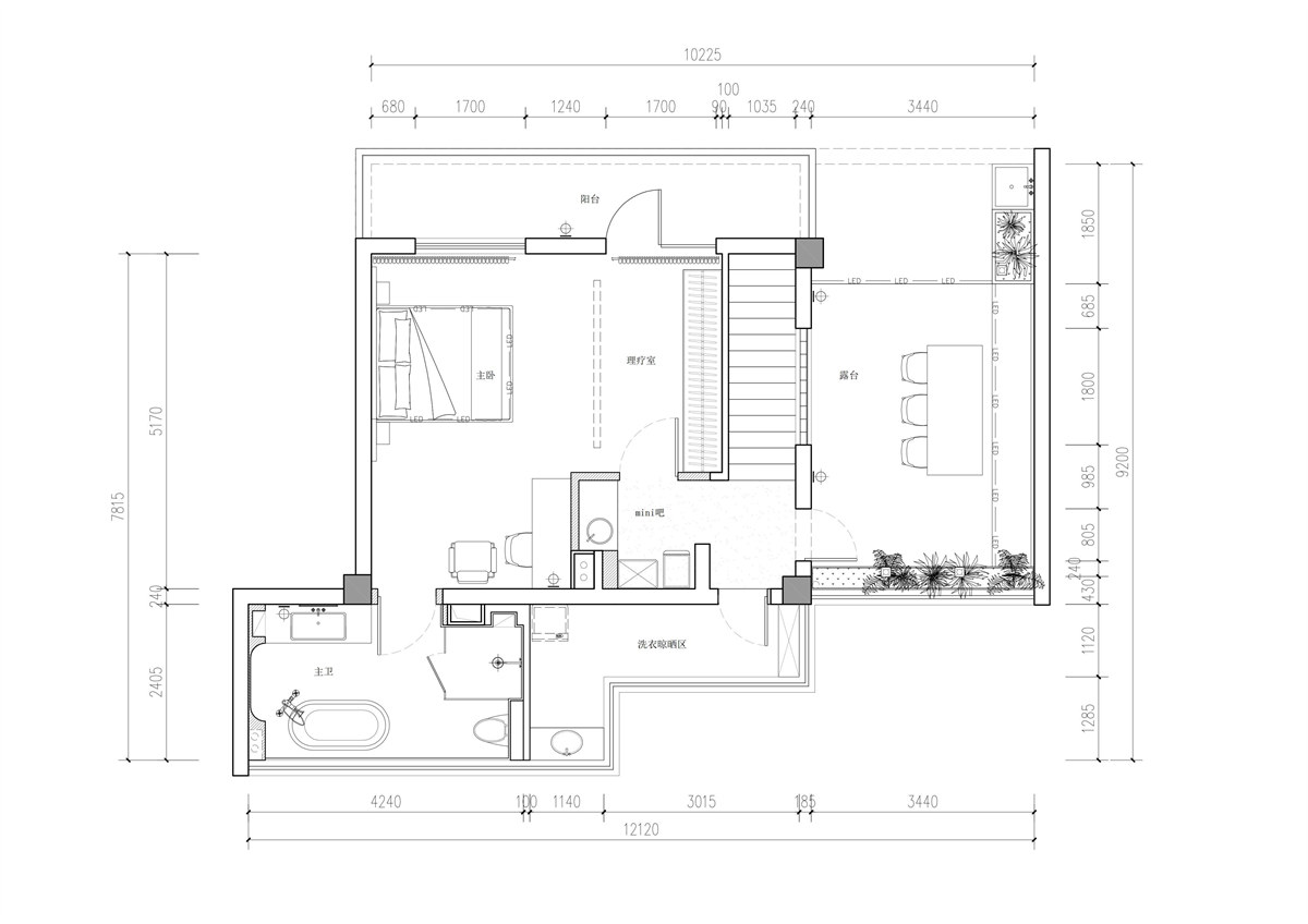
  • 房屋目前为夫妻二人居住,预留了老人房以及儿童房。房屋位于住宅顶层,有较多的露台空间,我们将一层的露台空间与阳台空间搭建为室内区域当作了餐厅空间与划分给了客厅。 二层原先的露台空间面积保留,留给业主作为露台空间,可以与朋友烧烤聚餐等。 设计风格大致可归为轻侘寂风,没有那么厚重的侘寂味道,但是有成熟沉静的空间质感,结合家具的实木纹理,是个内敛且具有品质感的室内设计空间。
  • 图片
  • 图片
  • 图片
  • 图片
  • 图片
  • 图片
  • 图片
  • 图片
  • 图片
  • 图片
  • 图片
  • 图片
  • 图片
  • 图片
  • 图片
  • 图片
  • 图片
  • 图片
  • 图片
  • 图片
  • 图片
  • 图片
  • 图片
  • 图片
  • 图片
  • 图片
  • 图片
  • 图片
  • 图片
  • 图片
  • 图片
  • 图片
  • 上一个 下一个
    2024第八届金腾奖 私宅(独居)丨私宅(多人居)丨餐饮丨酒店丨办公丨商业丨公共丨公益丨人物丨NEW100 jintengAWARD(小金_金腾奖组委会) 广州市海珠区琶洲大道68号华新中心21楼
    金腾奖视频号 金腾奖小红书号 监制:刘译遥
    统筹:张俊媚
    运营:赖钰炼 曹凯月 刘芳棋 小金
    新媒体:王贝贝 严洁 张文一
    技术:黄天佑 丁德昌
    最终解释权归金腾奖主办方所有