72家·造梦营
作品详情
  • Details of the work 标题横线
    头像或者logo
    图片 王星、梁飞 EDG贰道杠传媒特约推荐
    城市:苏州
    公司:王星、梁飞
    参赛作品: 72家·造梦营
    空间类型:
    个人/公司简介:
    巢羽设计事务所合伙人巢羽设计事务所由王星、梁飞联合创立于2017年。巢羽设计关注人的个体,建筑与环境的融合,通过研究建筑、人和自然的关系及意义,在不同地域、文化和经济条件下寻找合理的解决策略;探索空间情绪、叙述空间故事;努力通过适度自然材料的运用,对本土文化的深度挖掘,让建筑与空间产生更多可能。
    设计说明 | Design Instruction
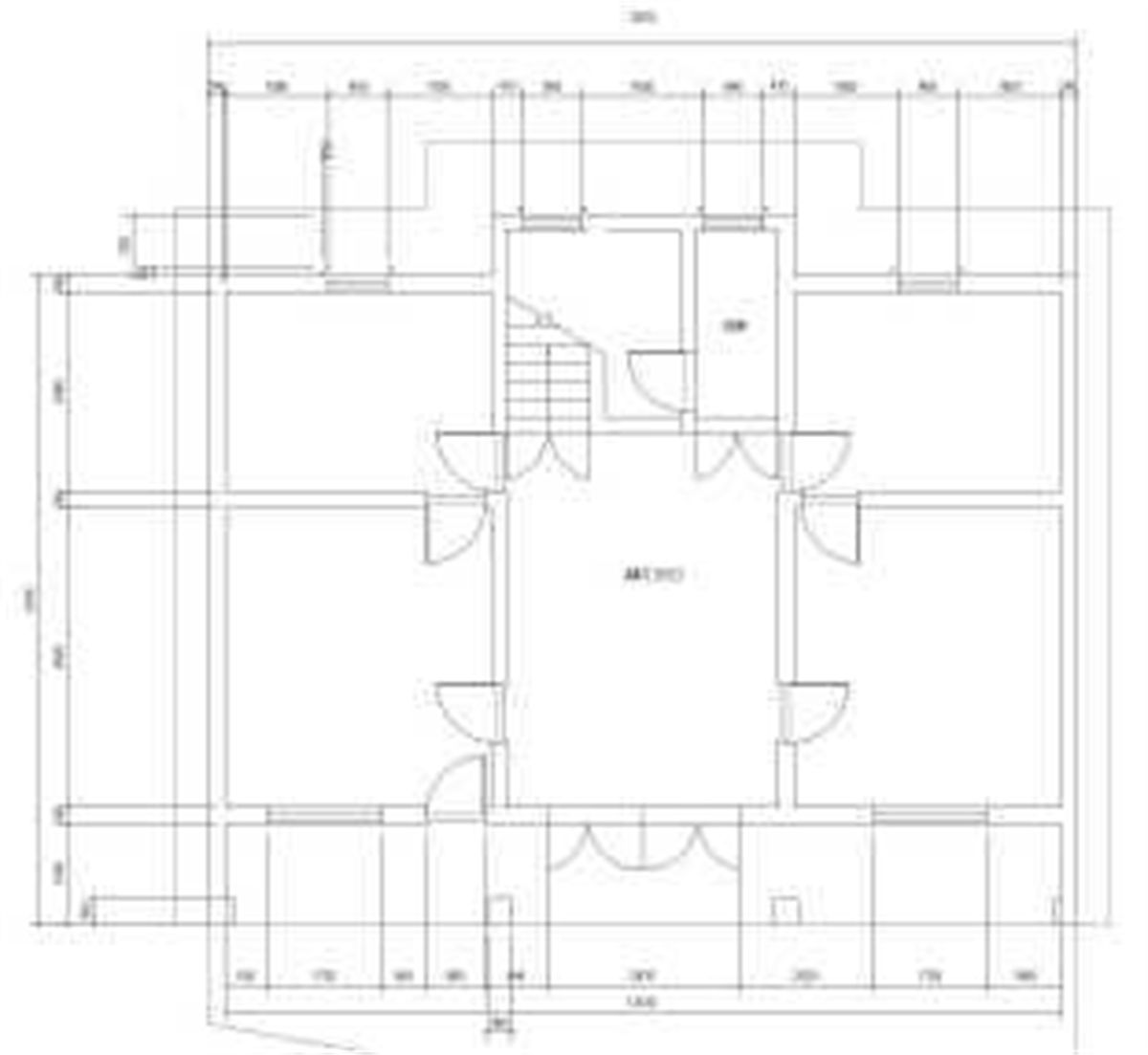
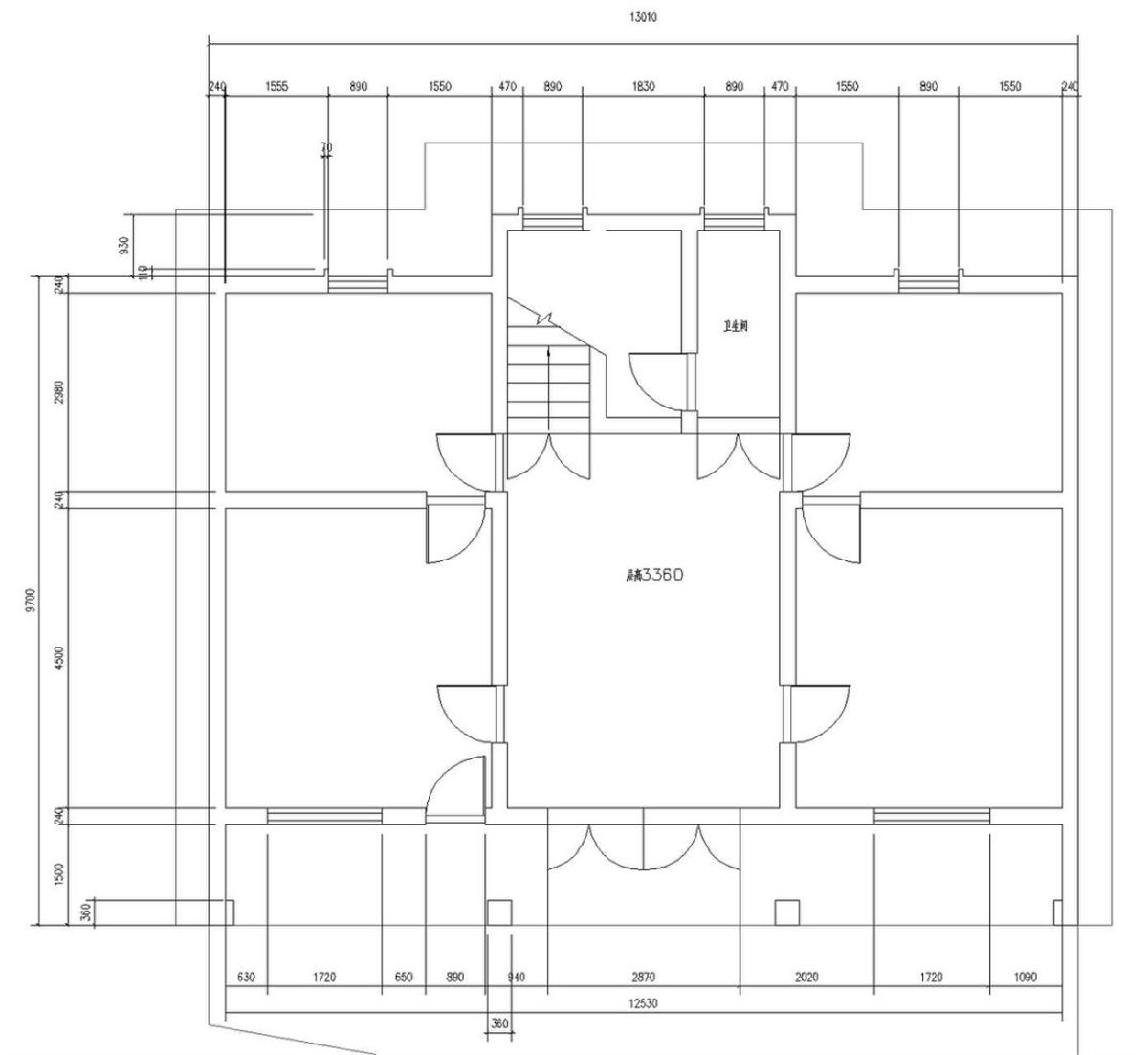
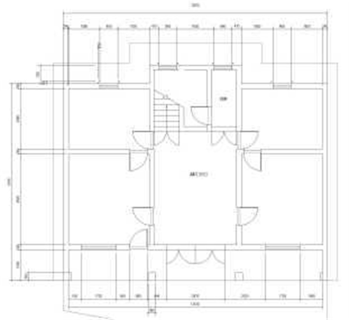
  • 在江南水乡的深处,隐藏着一个古老而富饶的村落——七十二家村。早在明代,一批渔民和农民沿着长江岸边定居下来,形成了一个小小的渔村。随着时间的推移,越来越多的农户加入到这个大家庭中,最终汇聚成了72户人家,共同组成了今天的七十二家村。 为了推动村落的可持续发展,七十二家村启动了一个名为“72家·造梦营”的项目。通过创新改造,将七十二家村建设成为一个集农业、文化、旅游于一体的现代化乡村。改善当地村民的生活质量的同时,吸引更多游客走进渔村,品尝地道的江南美食,体验到独特的渔村文化。“72家·造梦营”不仅是一个项目的名称,更是一个梦想的起点,它代表着七十二家村村民们对未来的无限期待和憧憬。 原始建筑比较陈旧,造型也相对传统,房屋的前后位置及高低都参差不齐,内部结构也无法满足新的功能需求。改造时保留建筑群的原始布局,针对建筑外形与内部都进行了大刀阔斧的整改。一个焕然新生的乡村活动中心应运而生,既保留了历史韵味,又注入了现代能量。
  • 图片
  • 图片
  • 图片
  • 图片
  • 图片
  • 图片
  • 图片
  • 图片
  • 图片
  • 图片
  • 图片
  • 图片
  • 图片
  • 图片
  • 图片
  • 图片
  • 图片
  • 图片
  • 图片
  • 图片
  • 图片
  • 图片
  • 图片
  • 图片
  • 图片
  • 图片
  • 图片
  • 图片
  • 图片
  • 图片
  • 图片
  • 图片
  • 图片
  • 图片
  • 图片
  • 图片
  • 图片
  • 图片
  • 图片
  • 图片
  • 图片
  • 图片
  • 图片
  • 图片
  • 图片
  • 图片
  • 图片
  • 图片
  • 图片
  • 图片
  • 上一个 下一个
    2024第八届金腾奖 私宅(独居)丨私宅(多人居)丨餐饮丨酒店丨办公丨商业丨公共丨公益丨人物丨NEW100 jintengAWARD(小金_金腾奖组委会) 广州市海珠区琶洲大道68号华新中心21楼
    金腾奖视频号 金腾奖小红书号 监制:刘译遥
    统筹:张俊媚
    运营:赖钰炼 曹凯月 刘芳棋 小金
    新媒体:王贝贝 严洁 张文一
    技术:黄天佑 丁德昌
    最终解释权归金腾奖主办方所有