Thirteen Villages——Art Construct in the Countryside
作品详情
  • Details of the work 标题横线
    头像或者logo
    图片 中电光谷OVU文创研究所
    城市:武汉
    公司:中电光谷OVU文创研究所
    参赛作品: “十三村——艺术建构在乡村”展览
    空间类型:
    个人/公司简介:
    中电光谷是是香港联交所主板上市的产业园区运营集团,在全国50个园区开发运营100个园区。OVU文创研究所是中电光谷集团旗下致力于创意空间构建与艺术设计服务的创新平台,秉持“让艺术为产业赋能”的理念,立足展览展示设计、场景设计、装置设计的深入实践,为更好的场景与体验感持续创造。OVU文创研究所基于公共空间特点、使用需求、受众人群进行针对性研究与策划,让空间营造更有创新性与创意性。文创研究所目前主要涉足园区企业展厅空间和企业办公空间氛围包装与企业文化空间打造。
    设计说明 | Design Instruction
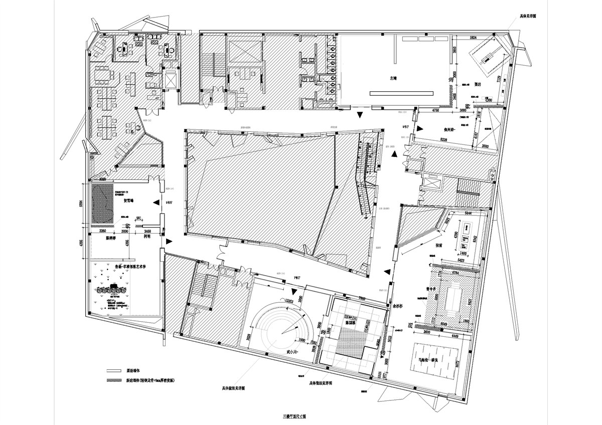
  • 本次案例展位于武汉市合美术馆三层,展区由三个展厅以及环形展廊组成,总面积约1250㎡。 展览展示了由艺术家、建筑师和学者通过艺术活动、设计、建筑、节庆、美育、数字艺术等不同媒介激活乡村文化的经典案例。乡建工作者通过多样的艺术文化形式介入乡村,重新挖掘和传承本土文化,引入新的艺术思想和创新元素,打造了一个个赏心悦目的村庄,为乡村注入新的文化活力和创造力。作为一次涉及乡村振兴领域众多大家的群展,参展方涉及领域诸多。如何突出各家展示主体,呈现各自风格,并做好平衡取舍,是本次展览设计中始终考量的重点。通过“多元合一”的设计理念,从不同的视角观察、提取关键词,转译拼出乡村振兴展览的视觉拼图,最终实现“共绘村景”,是本次设计理念及践行思路。 设计团队通过熟读并提取展示内容为素材,包括影像、图文、模型及文创产品等,形式丰富多样。为了契合展览主题,设计团队首先对相关材料进行梳理,如木材、织线、秸秆、砖石等。同时,挖掘每位参展方探索实践的关键词,如长效设计、宗祠、剧场、木构建筑、吊脚楼等。这些材料元素与展示要素共同构成了设计的骨架。此外,本次展示设计更是空间与平面相辅相成,合而为一的时间。从最初具有特色的拼贴风格到最终突出内容本体的方案,最终呈现简约明朗的风格,一种既能突显各家特色,又能统一于整体主题的展示方式。 “十三村”展览是一次对群展的设计探索与实践。以契合展示主题的材质与关键词为设计基底,设计团队在平衡各家所长的基础上,形成了和而不同的视觉呈现结果。本次展览不仅展示了多样的乡村文化实践案例,更为观众提供了一个全面了解乡村振兴成果的平台。 展览的设计旨在通过多元的展示手法,结合对材质和关键词的巧妙运用,既展示各家风格,又形成统一的视觉叙事,形成共绘村景和谐统一的效果。这种“多元合一”的设计方式,不仅突显了各个参展方的独特风采,更在整体上营造出和谐统一的视觉效果。展览不仅呈现了丰富的乡村文化实践案例,更展示了乡村振兴的多样性和创造力。观众可以通过参观展览,感受到乡村文化的独特魅力和无限潜力。
  • 图片
  • 图片
  • 图片
  • 图片
  • 图片
  • 图片
  • 图片
  • 图片
  • 图片
  • 图片
  • 图片
  • 上一个 下一个
    2024第八届金腾奖 私宅(独居)丨私宅(多人居)丨餐饮丨酒店丨办公丨商业丨公共丨公益丨人物丨NEW100 jintengAWARD(小金_金腾奖组委会) 广州市海珠区琶洲大道68号华新中心21楼
    金腾奖视频号 金腾奖小红书号 监制:刘译遥
    统筹:张俊媚
    运营:赖钰炼 曹凯月 刘芳棋 小金
    新媒体:王贝贝 严洁 张文一
    技术:黄天佑 丁德昌
    最终解释权归金腾奖主办方所有