依湖而居,回归“精神原乡”
作品详情
  • Details of the work 标题横线
    头像或者logo
    图片 朱峰 EDG贰道杠传媒特约推荐
    城市:苏州
    公司: 周晓安设计事务所
    参赛作品: 依湖而居,回归“精神原乡”
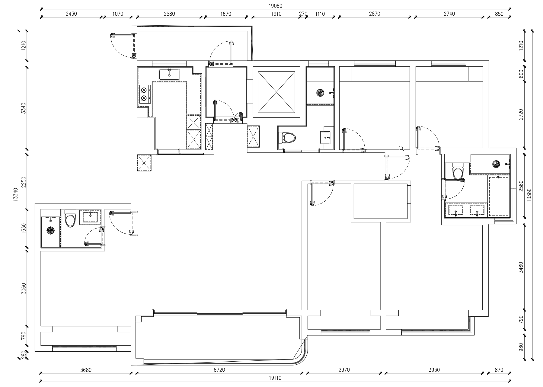
    空间类型:公寓(150㎡以下)
    个人/公司简介:
    代表案例:湖滨雅苑、大象山舍、今日家园、路径天御、融悦湾 设计理念: 两点之间未必直线最短,有时迂回曲折能够更好地抵达终点。 荣获奖项: 荣获“创意设计联盟”创意设计大赛铜奖 2016年室内设计大赛“永隆.星空杯”室内设计大赛 铜奖 2016年Hi-design第四届室内设计大赛 公寓组银奖 2017年达人网评为全国优秀设计师 2019红星美凯龙M+百强设计师 M+中国高端室内设计大赛全国城市榜TOP100 2020年40under40中国(苏州)设计杰出青年 2020年度红棉中国设计奖优秀极简空间设计奖 2020年度苏州好设计大赛优秀住宅空间设计奖 2020年度芒果奖住宅空间设计奖 2021G+AWARDS 全球设计精英大赛-中国(城市)TOP10 红棉中国设计奖·2021 年度最美现代空间设计奖 2021 ICS 国际色彩空间设计年度优秀色彩空间设计奖 世界青年设计师论坛(WYDF)2021年度大中华区室内设计金奖 亚洲软装风尚大奖(2021-2022)· 优胜奖 2021第三届柏厨杯设计大赛人气奖 2022年德国高仪中国城市住宅设计精英设计创新奖 2022年度优秀住宅空间设计 2023第十一届筑巢奖 2023芒果奖全国别墅空间类TOP100 2023pchouse私宅设计大奖TOP10设计机构 2023 DESIGN CHINA年度十大先锋
    设计说明 | Design Instruction
  • 本案坐落于太湖边,为让居住者拥有最佳观景视野,我们将原始空间阳台的移门拆除,打破隔阂,让自然景观与室内融为一体。自由开放的格局,强化人与空间的互动。 推开家门,与湖相见,让心静下来,回归到自己的“精神原乡”。
  • 图片
  • 图片
  • 图片
  • 图片
  • 图片
  • 图片
  • 图片
  • 图片
  • 图片
  • 图片
  • 图片
  • 图片
  • 图片
  • 图片
  • 图片
  • 图片
  • 图片
  • 图片
  • 图片
  • 图片
  • 图片
  • 图片
  • 图片
  • 图片
  • 图片
  • 图片
  • 图片
  • 图片
  • 图片
  • 图片
  • 图片
  • 图片
  • 图片
  • 图片
  • 图片
  • 图片
  • 图片
  • 图片
  • 图片
  • 图片
  • 图片
  • 上一个 下一个
    2024第八届金腾奖 私宅(独居)丨私宅(多人居)丨餐饮丨酒店丨办公丨商业丨公共丨公益丨人物丨NEW100 jintengAWARD(小金_金腾奖组委会) 广州市海珠区琶洲大道68号华新中心21楼
    金腾奖视频号 金腾奖小红书号 监制:刘译遥
    统筹:张俊媚
    运营:赖钰炼 曹凯月 刘芳棋 小金
    新媒体:王贝贝 严洁 张文一
    技术:黄天佑 丁德昌
    最终解释权归金腾奖主办方所有