INS 2F Public Area, Fuxing Park, Shanghai
作品详情
  • Details of the work 标题横线
    头像或者logo
    图片 成都万谦集环境艺术设计有限公司
    城市:成都
    公司:成都万谦集环境艺术设计有限公司
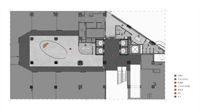
    参赛作品: 上海复兴公园INS 2F公区
    空间类型:
    个人/公司简介:
    在地探索、空间设计、商业赋能,人文商业深度交互设计品牌,聚焦人文业态倡导自然主义,构筑人文轻生活。
    设计说明 | Design Instruction
  • 该项目位于上海复兴公园INS新乐园二楼中央核心区域,作为一个有着一定凝聚力和向心力的公共艺术空间,旨在为二楼一系列高端精致料理品牌,提供一种可游、可憩、可感受、可体验的公共性服务。 项目所在的位置,曾是魔都(上海)夜生活档案里缀满华彩的一页。然而曾经的辉煌遗落了,显露出遗址与废墟的破败痕迹。如何保留,如何接续,如何涅槃并重生,成为设计亟待解决的问题。 630平米的原始面积,2.6米的原始层高,11根粗笨的结构柱,自然光源的严重缺失,整体空间低矮压抑……这一切,构成为了项目最起始的构筑条件。因为场域的限制性因素,本案构建了一个大胆的想法:在一个与户外隔绝的空间内,营造一个仿佛若有光、有水的自然秘境,山石、枯景、地面的倒影、符号化的废墟遗址,让这个戏剧张力十足的花园,既来自过去又开放向未来,并在杂糅与审慎、松弛与凝炼、空旷与高远之间,获得看似矛盾却极为丰富的空间张力。 在这个抽象的花园里,时间与空间相互分离,纪念性的、沉重的、静态的东西,被一种轻盈的、漂浮的且神秘的未来之物所把握。个体的感知,因这种语境的矛盾与多义,有了被高度发散的可能。也因此,空间得以回到最原始的容器状态,将空间的定义与自我的情绪归还给在其中不断移动的人群。
  • 图片
  • 图片
  • 图片
  • 图片
  • 图片
  • 图片
  • 图片
  • 图片
  • 图片
  • 图片
  • 图片
  • 图片
  • 图片
  • 图片
  • 图片
  • 图片
  • 图片
  • 图片
  • 图片
  • 图片
  • 图片
  • 图片
  • 图片
  • 图片
  • 图片
  • 图片
  • 图片
  • 图片
  • 图片
  • 图片
  • 上一个 下一个
    2024第八届金腾奖 私宅(独居)丨私宅(多人居)丨餐饮丨酒店丨办公丨商业丨公共丨公益丨人物丨NEW100 jintengAWARD(小金_金腾奖组委会) 广州市海珠区琶洲大道68号华新中心21楼
    金腾奖视频号 金腾奖小红书号 监制:刘译遥
    统筹:张俊媚
    运营:赖钰炼 曹凯月 刘芳棋 小金
    新媒体:王贝贝 严洁 张文一
    技术:黄天佑 丁德昌
    最终解释权归金腾奖主办方所有