Old Dream New Journey
作品详情
  • Details of the work 标题横线
    头像或者logo
    图片 曹瑜
    城市:成都
    公司: 集辰创意空间设计&CYAN空间设计
    参赛作品: 故梦新程
    空间类型:别墅
    个人/公司简介:
    曹瑜 集辰创意空间设计&CYAN空间设计创始人 1.2020 先锋潮创赛潮流空间组 2.2020中国设计星全国36强 3.2021届成渝双城设计大奖.银杏金鸟奖 4.2022上海国际设计周入选精英设计师 5.2021第十届筑巢优秀奖 设计理念:空间设计是对自律与欲望的平衡.也是规划和权衡当下及未来生活状态的另类展现形式.
    设计说明 | Design Instruction
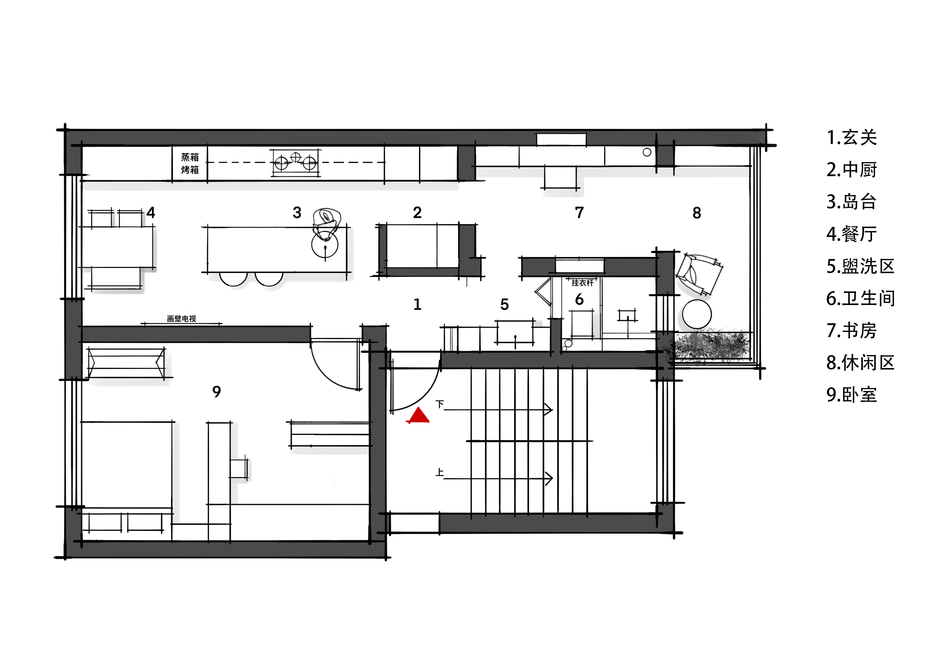
  • 家应是外部社区环境和内部居住空间的有机结合,衡量居住空间的价值的根本在于和城市连接,和人的连接。 Home should be an organic combination of external community environment and internal living space, and the fundamental measure of the value of living space lies in the connection with the city and the connection with people. 家的周围有繁华商业区,有苍蝇小馆,有独立咖啡店,有公园,有绿道,可以轻易地步入最市井的生活,热闹喧嚣以后又可以回归宁静、温暖的家,居住体验应是身心放松,闹中取静,悠闲惬意的。 There are bustling commercial areas around the home, there are small flies, there are independent coffee shops, there are parks, there is a green way, you can easily enter the most market life, after the hustle and bustle can return to a quiet, warm home, living experience should be physical and mental relaxation, quiet, leisurely. 摒弃了传统的沙发、茶几围合客厅的布局,全屋除了卧室、卫生间以外的区域被分为了动、静两片核心区域,玄关左侧是餐厨区,设置了中央岛台,让烹调的一切操作都能,右侧是书房和休闲阅读区。 Abandoning the traditional layout of sofa and coffee table surrounding the living room, the whole house is divided into two core areas except the bedroom and the bathroom. On the left side of the porch is the kitchen area and the central island is set up to enable all cooking operations. On the right side is the study and leisure reading area. 闲暇时的阅读也可以成为生活的一部分,书房和休闲区的划分平衡了伏案阅读和休闲阅读两种需求,搭配休闲区预留的茶饮咖啡台,给休闲空间中的放松惬意增加更多可能性 Reading in leisure time can also become a part of life. The division of study and leisure area balances the two needs of desk reading and leisure reading. With the tea and coffee table reserved in the leisure area, it increases the possibility of relaxing in the leisure space.。
  • 图片
  • 图片
  • 图片
  • 图片
  • 图片
  • 图片
  • 图片
  • 图片
  • 图片
  • 图片
  • 图片
  • 图片
  • 图片
  • 图片
  • 图片
  • 上一个 下一个
    2024第八届金腾奖 私宅(独居)丨私宅(多人居)丨餐饮丨酒店丨办公丨商业丨公共丨公益丨人物丨NEW100 jintengAWARD(小金_金腾奖组委会) 广州市海珠区琶洲大道68号华新中心21楼
    金腾奖视频号 金腾奖小红书号 监制:刘译遥
    统筹:张俊媚
    运营:赖钰炼 曹凯月 刘芳棋 小金
    新媒体:王贝贝 严洁 张文一
    技术:黄天佑 丁德昌
    最终解释权归金腾奖主办方所有