Rose Garden
作品详情
  • Details of the work 标题横线
    头像或者logo
    图片 力设计
    城市:杭州
    公司:力设计
    参赛作品: 月季花园
    空间类型:别墅
    个人/公司简介:
    力设计(LI DESIGN)成立于2012年,坐落于浙江杭州。设计从业十余载,力设计团队作为杭州“全案设计”理念的先行者,拥有成熟的设计、工程、产品与供应链一体化的全案体系。多年来以高质量的设计服务与实景落地为己任,探索专属于空间居住者的生活诗学,致力于成就每一个家庭对于美好新生活的向往。遇见力设计,遇见美好。
    设计说明 | Design Instruction
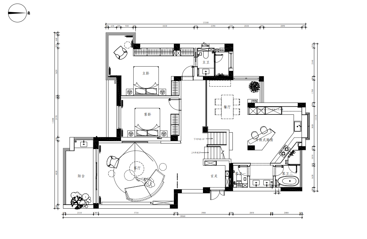
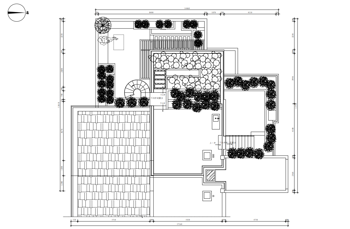
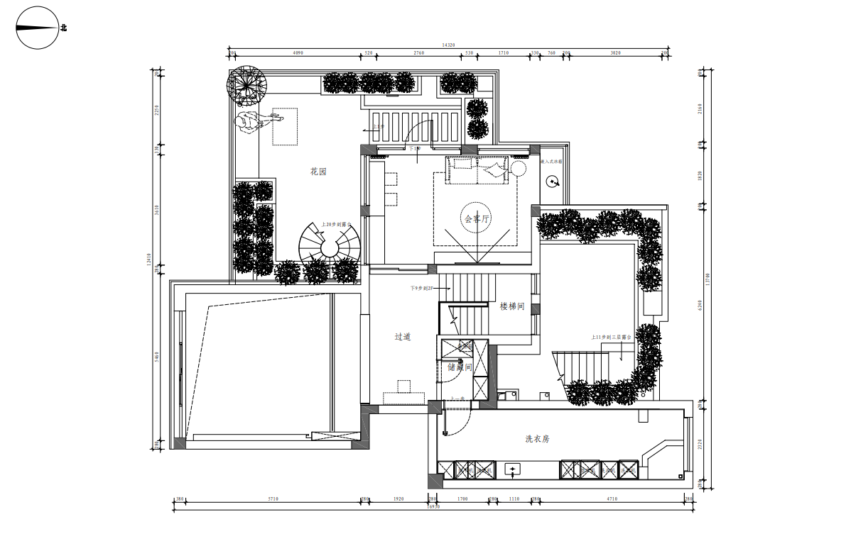
  • 本案位于杭州 · 竹海水韵芦花洲,当一座标志性的弧顶拉开生活序章,月季花园迎着微风如梦如幻的生长,这里是将爱与阳光交织在一起的地方。 本案的空间设计灵感来源于屋主一家对于自然诗意的执著和喜爱。绿意从入门玄关处开始蔓延,链接起公区生活各个区域,打造出了一个强烈感染力的建筑空间。面对业主大量的实体藏书需求,设计师在挑空区石材背景中嵌入跨越两个楼层的定制展示柜,一方面强化了空间竖向纵深的感受,另一方面营造了秩序与阅读的氛围感。寄情于景,设计师利用客餐厅部分优越的层高条件,让贯穿整个挑空的大弧顶与亚马逊绿一起组成了醒目的视觉符号,特别的下沉式空间带来幽深的光影,在厨餐厅空间中制造一些富有可能性的“异构”和变化。 卧室空间,设计师用最简洁的语言承接生活的支点,打造服务于人的休憩空间。浸润着新鲜的阳光 与露水的娱乐起居室,成为室内空间与外部花园的承接部分。置身花园,眺望远方的风景。
  • 图片
  • 图片
  • 图片
  • 图片
  • 图片
  • 图片
  • 图片
  • 图片
  • 图片
  • 图片
  • 图片
  • 图片
  • 图片
  • 图片
  • 图片
  • 图片
  • 图片
  • 图片
  • 图片
  • 图片
  • 图片
  • 图片
  • 图片
  • 图片
  • 图片
  • 上一个 下一个
    2024第八届金腾奖 私宅(独居)丨私宅(多人居)丨餐饮丨酒店丨办公丨商业丨公共丨公益丨人物丨NEW100 jintengAWARD(小金_金腾奖组委会) 广州市海珠区琶洲大道68号华新中心21楼
    金腾奖视频号 金腾奖小红书号 监制:刘译遥
    统筹:张俊媚
    运营:赖钰炼 曹凯月 刘芳棋 小金
    新媒体:王贝贝 严洁 张文一
    技术:黄天佑 丁德昌
    最终解释权归金腾奖主办方所有