The perceptual field of order
作品详情
  • Details of the work 标题横线
    头像或者logo
    图片 池旻烨 橙设传媒特约推荐
    城市:温州
    公司: 榀象设计
    参赛作品: 秩序的感知场域
    空间类型:别墅
    个人/公司简介:
    池旻烨 创始人 | 设计总监 90 后新锐设计师 房子是生活的容器 家,则是主人对生活之「美」的追寻,表达 不仅留于感知 更是一种态度,一种信仰 将生活融入设计,做有温度的设计 最好的设计,应该是一场和生活方式的对话
    设计说明 | Design Instruction
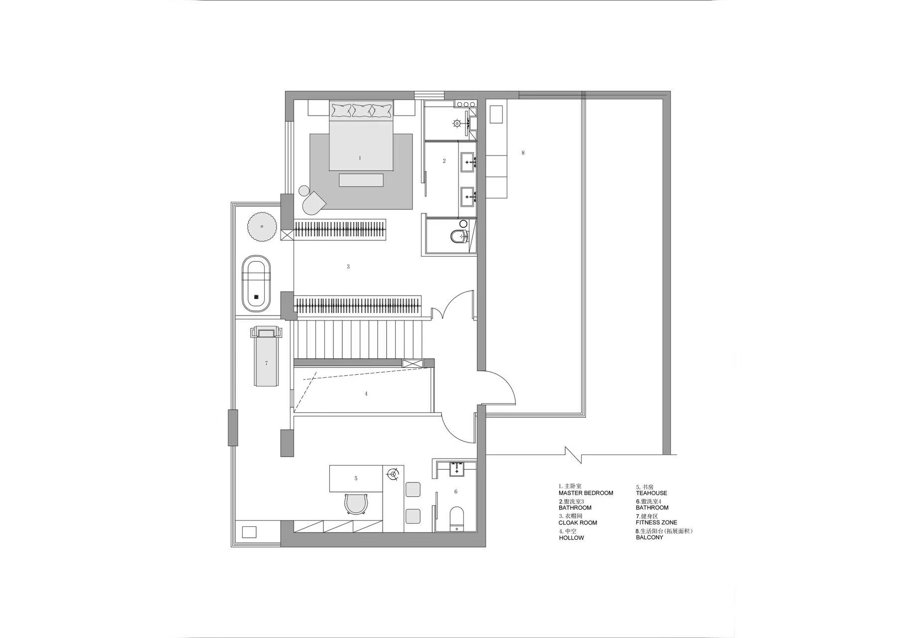
  • 01 建筑光识 人们试图冲破固有的建筑与容器,跟随尺度、光影、结构的外力引导,释放周身的感知力量,探寻生活的真实目的。身处其间,栖息于精神之回响,释放内心的平和与自由。 设计,是一场关于人与空间的体察。本案为顶跃空间改造,设计师以建筑思维布局场域流动,将设计退让于生活背后,关联使用场景与生活需求,在功能与美学中把控着秩序平衡,塑造舒缓松弛、生态可持续的居家体验。 入门为序,串联空间始末。从玄关至各个功能区,引导着住宅的理想路径,聚焦收纳布局,实现居家生活的有效管理,层层递进展开空间叙述。 玄关沿墙铺展鞋柜和衣物收纳,向里拓展空间纵深。原木搭配润白基底,汲取雅黑元素勾勒结构框架,材质、肌理、色泽互相嵌套,将内建筑的解构主义发挥得淋漓尽致,舒展空间序列。 设计以建筑语言重塑室内场景,客厅挑空实现界面的纵横交互,搭建庞大的几何“盒子”,清晰感知场域边界,凝聚向上而生的力量。 客厅呈围合式包裹,在低饱和的底色中置入同色系软装,为生活场域构建新的流动形态。墙面选用环保的石灰基艺术涂料,质感温润可触,释放自然、纯透的语境,人与空间共存共生。 设计将客厅与阳台互通,柔光入户,开阔透亮。在二层高处设一小窗,延伸结构层次,重构艺术框景。同时与对面挑空的落地窗呼应,形成建筑与光的松弛联结。 电视机背景墙从一层通体延伸,构建材质与体块的统一关系,表达建筑质朴语言。同时在立面层次中实现了空间扩容,呈现阔然大气的居家体验。 或躺或卧于窗前,徜徉纯澈的感官世界。素而不乏,彰而不显,探寻精神深度。 设计,是塑造生活方式的过程。而在可持续的居家结构中,收纳便成了核心需求。设计师充分利用楼梯下方空间,改造成更实用的储物容器,合理规划功能体系,创造有序的生活环境。 02 具象感知 当视野后退,餐厅与客厅之间的交互愈发微妙灵动。管状艺术灯切换不同角度,在规则与不规则间赋予设计格调的平衡感。空间感官逐渐温柔、沉静,生活本味开始回归。 餐厅呈开放式岛屿结构,长桌与岛台组合,为中厨扩展了西式操作界面,承载了生活的万般乐趣与滋味。餐边柜顺着墙体铺展,朴拙温厚的气质开始渗透,原本高效实用的空间于此转译,以柔和的艺术形式,定格更多精彩瞬间。 设计,同样为生活预设了一幕幕未知的惊喜。涵盖观影、聚会、亲子活动的多功能区隐匿于移门后,记载了家庭日常的生动叠影。同时作为生活的主要收纳区域,细致入微地兼顾了生活中清洁用品、备用家居等收纳需求。 03 柔光微静 楼梯入口隐于阳台转角,跟随线条的感知与指引,在转瞬即逝的时光脉络中逐层进阶,感受多重游走的趣味。 主卧延续低饱和搭配,以木色拼接简灰,舒展流畅线条,更强调材质本身的质感。在生活的微光点缀中,塑造轻盈温润的空间语态。 衣帽间的悬挂柜体作为区域过渡,将主卧进行分割处理,保持私密性的同时平衡着通透的空间感。设计将浴缸置于阳台,为主人铺设了一处浪漫的天地,浸润于仪式感的安逸奢享,持续探索生活诗意。 次卧并未做过多渲染与装饰,延续整体框架和居家语境,细腻洞察这份纯净的安逸与精神的丰盈。 儿童房以自然灵动的色彩铺陈,鲜丽的撞色活跃空间氛围,为孩子守护童趣的浪漫想象,呈现贴心的呵护与陪伴。 设计师以生活的观察者思维,为每一个平凡的日子探寻细微处的惊喜,体察人与空间的感官互动,为每一个家塑造独立的灵魂。
  • 图片
  • 图片
  • 图片
  • 图片
  • 图片
  • 图片
  • 图片
  • 图片
  • 图片
  • 图片
  • 图片
  • 图片
  • 图片
  • 图片
  • 图片
  • 图片
  • 图片
  • 图片
  • 图片
  • 图片
  • 图片
  • 图片
  • 图片
  • 图片
  • 图片
  • 图片
  • 图片
  • 图片
  • 图片
  • 图片
  • 图片
  • 图片
  • 图片
  • 图片
  • 图片
  • 图片
  • 图片
  • 图片
  • 图片
  • 图片
  • 图片
  • 图片
  • 图片
  • 图片
  • 图片
  • 图片
  • 图片
  • 图片
  • 图片
  • 上一个 下一个
    2024第八届金腾奖 私宅(独居)丨私宅(多人居)丨餐饮丨酒店丨办公丨商业丨公共丨公益丨人物丨NEW100 jintengAWARD(小金_金腾奖组委会) 广州市海珠区琶洲大道68号华新中心21楼
    金腾奖视频号 金腾奖小红书号 监制:刘译遥
    统筹:张俊媚
    运营:赖钰炼 曹凯月 刘芳棋 小金
    新媒体:王贝贝 严洁 张文一
    技术:黄天佑 丁德昌
    最终解释权归金腾奖主办方所有