at ease here
作品详情
  • Details of the work 标题横线
    头像或者logo
    图片 大墨空间设计 橙设传媒特约推荐
    城市:温州
    公司:大墨空间设计
    参赛作品: 自在此间
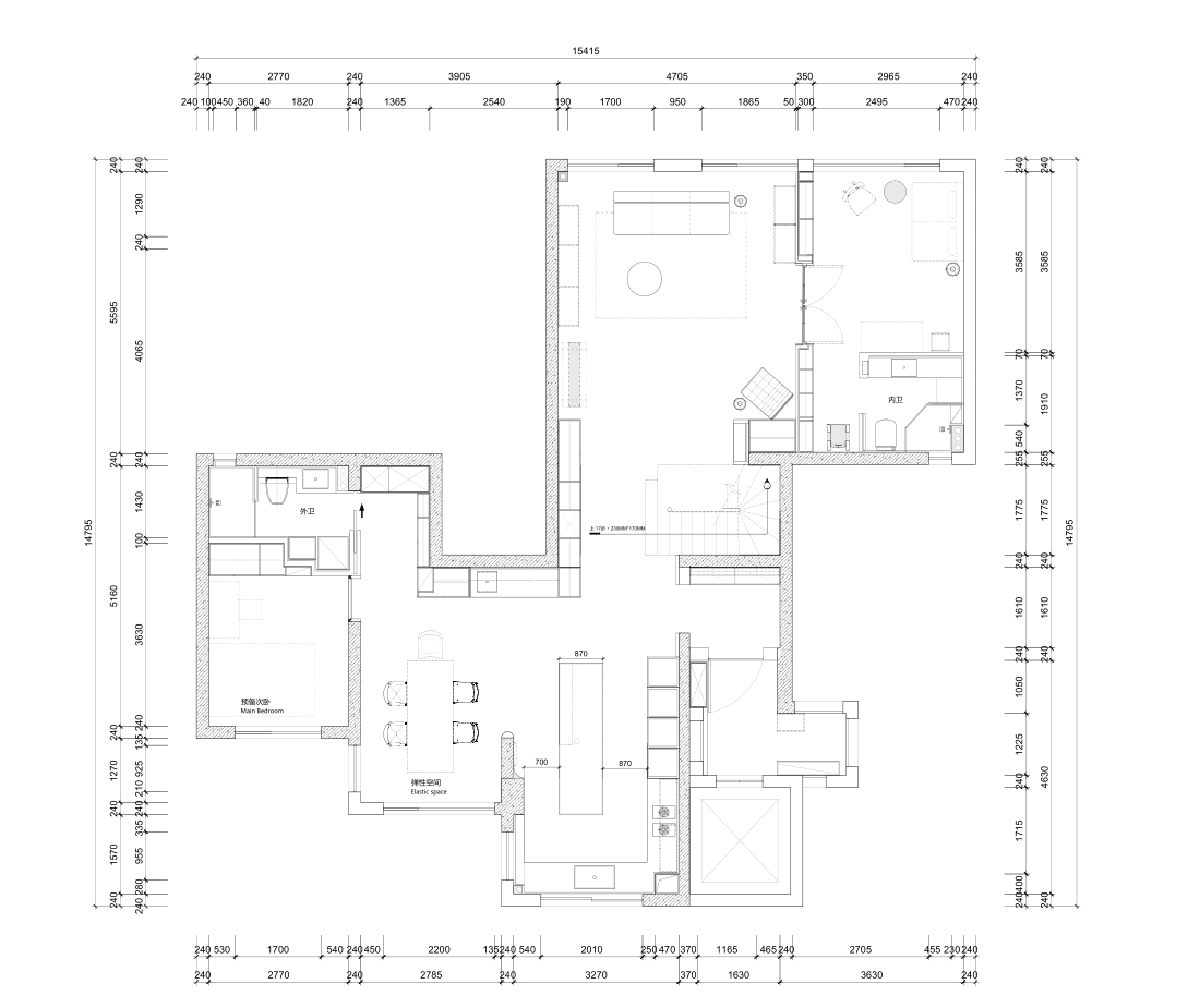
    空间类型:别墅
    个人/公司简介:
    正直、诚实、责任、上进 大墨空间设计创立于 2013 年。 我们以“人与自然”为基点展开设计,强调人与环境之间的物理情感关系; 我们提倡环保,思考空间与时间的相互作用,将时间跨度纳入设计的考量,探寻设计的存在意义; 不以标新立异成就自身,坚持设计具有积极情感意义与实用并存的空间状态。 大墨的愿景:通过响应人们内心最基本的诉求来改善我们的日常生活,从而为提高社会整体生活品质作出贡献。
    设计说明 | Design Instruction
  • 空间韵律 在宇宙的广袤画卷中,时间与光是最为神秘的笔触,交织着历史的纹理,描绘出万物共生的灵感图景。家,便悄然凝聚,生长。 阳光透过窗户洒落,投射出柔和灵动的光影,演绎着现实与浪漫交织的生活场景。灰白墨纹大理石茶点缀其间,成为空间内的焦点,传递出雅致氛围。时间流转,每一次的停留,都是一次与自我对话的机会。 光与影的碰撞,演绎着空间的故事感。双开复古玻璃门将空间联结,打破封闭感更加开阔通透,以此增加场域的流动性,将法式温情在不经意间流出。 居所不再是物理形态的空间,更是生活品质的体现。顺应空间的自由动线,容纳多种生活方式,以创造一个灵活的环境,满足不同家庭成员的活动需求。 多重美感 家不是一个按照既定风格的套餐式设计打造出来的生活场所,而是个性的延伸,是基于生活方式和情感记忆共同创造的空间。 餐厨区域被打造成既充满生活气息又具有浪漫情调的空间,每一处细节都经过深思熟虑,从色彩搭配到材质选择,无不体现对美好生活的追求和对家的深刻理解。 开敞式厨房,社交的岛台,所有的设定均以生活动线展开,通过洄游动线始终保持着开放沟通的姿态,留白的墙面搭配艺术装饰画,是静谧与动感的对话,丰富了空间的视觉效果,更是对空间文化内涵的表达和延伸。 情绪介质 从开放空间到私人领域的过渡,是由外向内引导心绪逐渐平和的转变过程。卧室以素雅、简洁的姿态,创造独特的舒适氛围,木质以其温润柔和的色调,悄然蔓延至每一个角落。 暖阳与木色皆是情绪表达的介质,以无声的情感语言,激发积极向上的情绪,融化世界浮躁,时光在这里变得柔和。
  • 图片
  • 图片
  • 图片
  • 图片
  • 图片
  • 图片
  • 图片
  • 图片
  • 图片
  • 图片
  • 图片
  • 图片
  • 图片
  • 图片
  • 图片
  • 图片
  • 图片
  • 图片
  • 图片
  • 图片
  • 图片
  • 图片
  • 图片
  • 图片
  • 图片
  • 图片
  • 图片
  • 图片
  • 上一个 下一个
    2024第八届金腾奖 私宅(独居)丨私宅(多人居)丨餐饮丨酒店丨办公丨商业丨公共丨公益丨人物丨NEW100 jintengAWARD(小金_金腾奖组委会) 广州市海珠区琶洲大道68号华新中心21楼
    金腾奖视频号 金腾奖小红书号 监制:刘译遥
    统筹:张俊媚
    运营:赖钰炼 曹凯月 刘芳棋 小金
    新媒体:王贝贝 严洁 张文一
    技术:黄天佑 丁德昌
    最终解释权归金腾奖主办方所有