River view villa, quiet home
作品详情
  • Details of the work 标题横线
    头像或者logo
    图片 丁林吉 橙设传媒特约推荐
    城市:温州
    公司: 上海·吉尚设计
    参赛作品: 江景别墅,静谧之居
    空间类型:别墅
    个人/公司简介:
    丁林吉 上海·吉尚设计公司创始人兼设计总监 资深豪宅别墅设计师,拥有27年豪宅别墅设计经验 其设计作品独具特色,擅长将自然元素与建筑风格相结合,打造实用性与功能性兼备的居住空间。 设计理念以质朴、自然、舒适、自由为核心,巧妙运用空间和光线,营造和谐、安逸的生活环境。在项目落地过程中,亲力亲为,确保设计方案得以最大程度还原。 秉持着目标不仅是打造具有艺术美感的建筑,更要创造出让人们愉悦享受空间的理念。
    设计说明 | Design Instruction
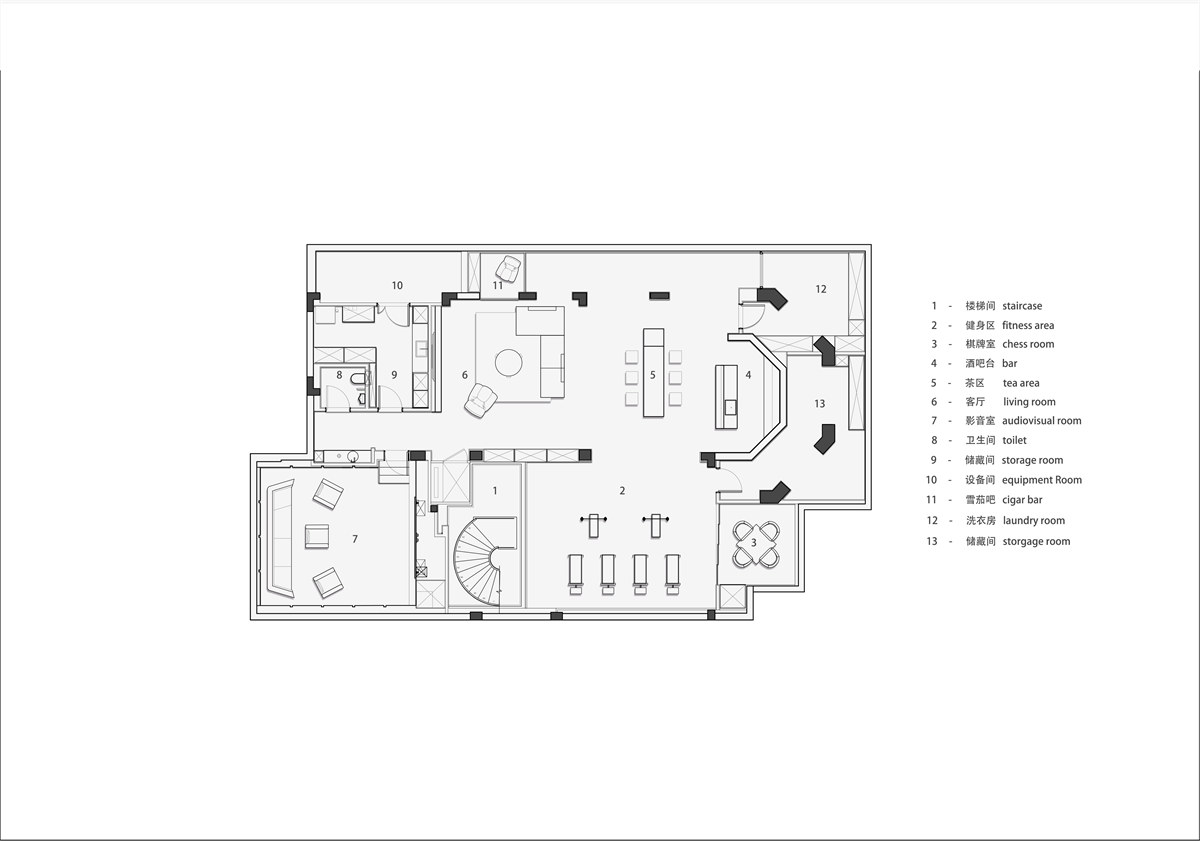
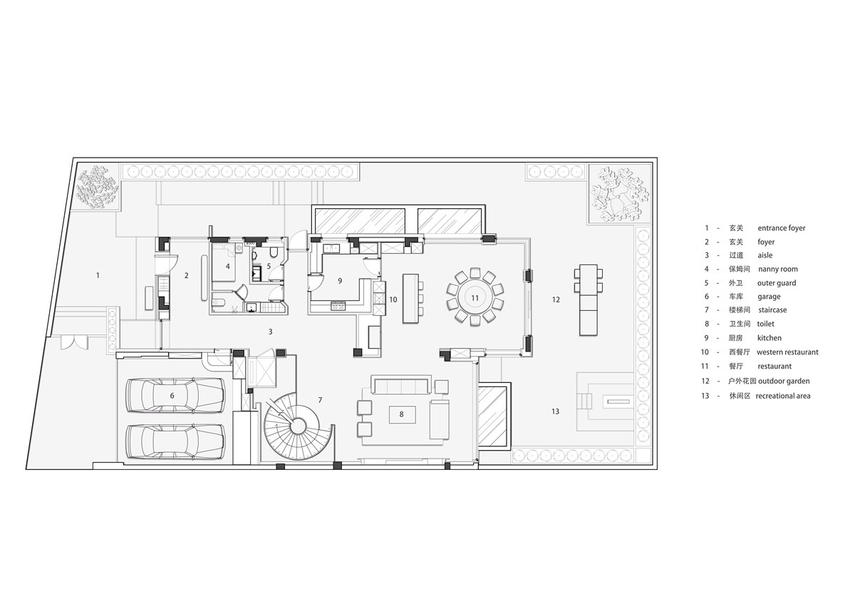
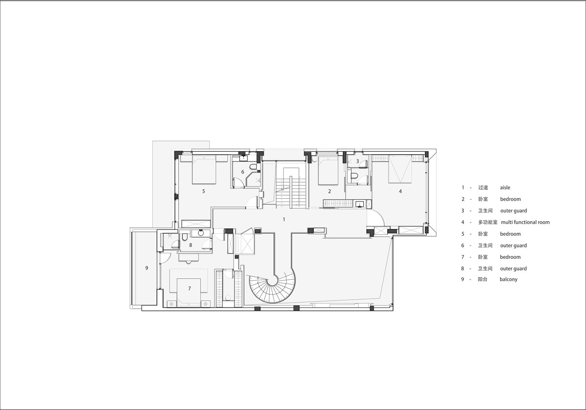
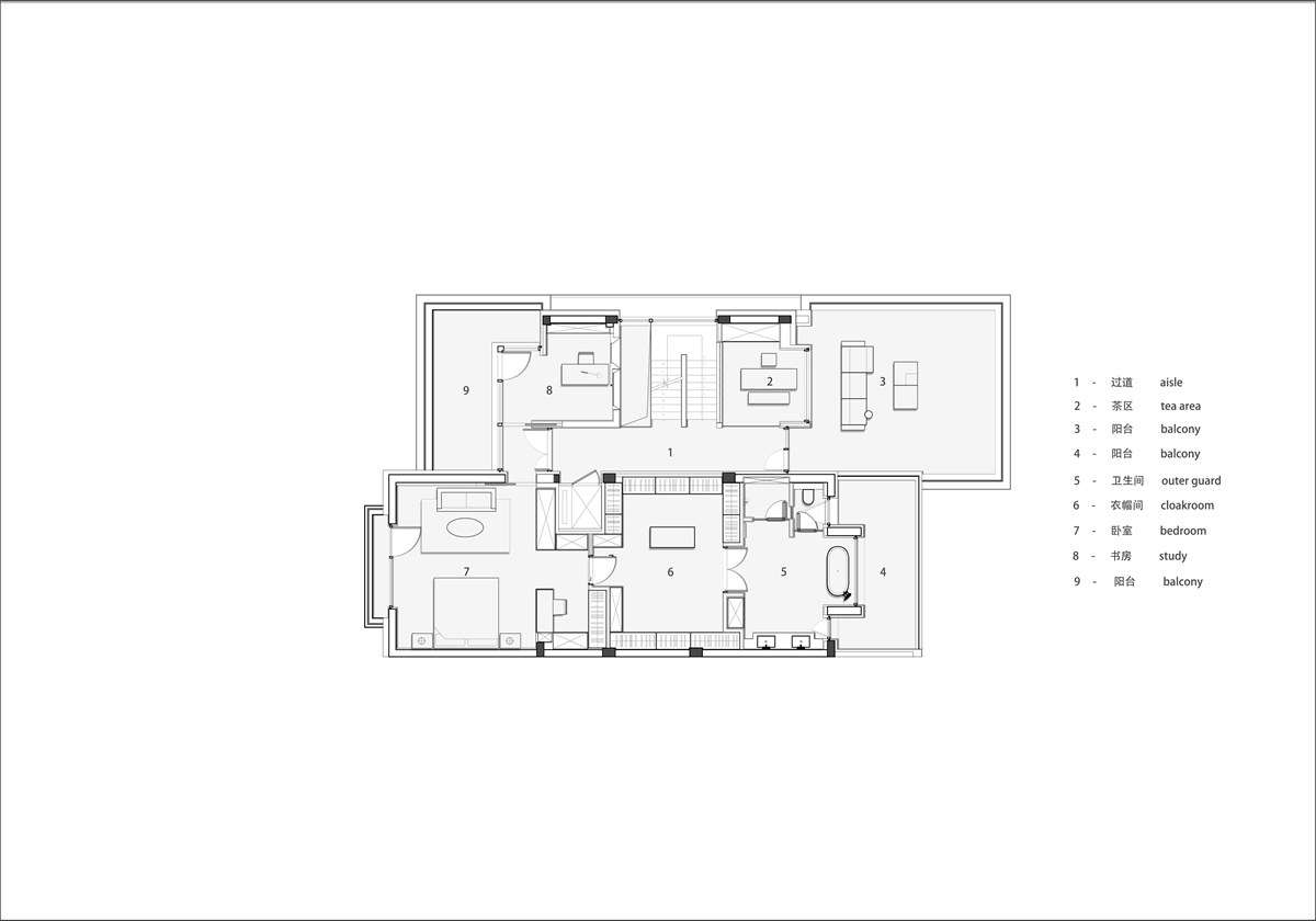
  • 本案位于江边一个岛屿上,背靠市区,面朝江景,远眺群山,其独特的地理位置,绝佳的视野和风景,为设计提供了丰富的灵感来源,设计师以融入自然为出发点,打造一个舒适、健康、宁静而有力量的居所。 原始建筑带有传统的欧式风格,相对封闭,与周边自然景观的融合度不高。设计师首先对建筑的结构和外立面进行了大刀阔斧地改造,将原有的封闭空间打开,更是满足功能的需求和合理的动线。大面积的极窄窗,将美景及光线引入室内,将室内外的环境融为一体。 玄关,是居住者整理和转换的空间,以柚木为外观材质,踏入门后,橡木的地板和木饰面在整个走廊中,如画卷般展开。视线延伸,空间轻盈延展。 在整个设计过程中,设计师以精准到厘米的规划,对建筑结构和工艺进行了仔细雕琢,用一种充满情感的笔触,确保每个细节都达到了简约美学的标准。 一个灵活高效的结构体系可以使室内空间更开放、更具多功能性。宽敞的布局和流畅的线条让空气与光线自由地穿梭,模糊了室内与室外的界限,门前的风、门后的空气、窗外的景致和窗内的人融为一体,迎接着每一位踏入空间的人。 开放式设计,让空间在开放与闭合之间自由转换。开门时,空间与周围环境融为一体;闭门时,又是一个独立的世界,创造出一种连续与方向的美感。 作为重要连接的楼梯,不仅仅是连接不同楼层的功能性构件,它还具有展示空间结构、秩序和线条之美的潜力。旋转楼梯连接了一楼和二楼,其设计巧妙地融入了整体空间的秩序结构中。 二楼与三楼的连接,整体结构呈现Z字形,使得楼梯成为连接两个楼层的重要视觉焦点。整体设计灵活地利用了空间,以其独特的角度展现了楼梯设计的多样性。 墙壁素雅如画,映衬着窗外柔和阳光的温柔洗礼,与飘渺的白色晨雾相互辉映,营造出一种宁静而雅致的氛围。窗旁悬挂的半透明白纱,轻盈飘逸,随风轻摆,为室内平添了一丝柔美的风情。在这个空间里,人们被邀请放下一切繁杂,用心去感受,去体验那专属于个人的宁静时刻。 书房与茶室在空间设计中的作用是多方面的,它们既是实用的功能空间,也是体现主人文化品味,提供精神慰藉和社交互动的重要场所在。 地下室整体采用微水泥材质,视觉效果更统一,设有健身区、酒吧和休息区,在表面的材质和装饰上,更注重功能性与实用性。同时自然光的巧妙引入不仅提升了室内照明的亮度,还增添了空间的舒适氛围与宜人体验。
  • 图片
  • 图片
  • 图片
  • 图片
  • 图片
  • 图片
  • 图片
  • 图片
  • 图片
  • 图片
  • 图片
  • 图片
  • 图片
  • 图片
  • 图片
  • 图片
  • 图片
  • 图片
  • 图片
  • 图片
  • 图片
  • 图片
  • 图片
  • 图片
  • 图片
  • 图片
  • 图片
  • 图片
  • 图片
  • 图片
  • 图片
  • 图片
  • 图片
  • 图片
  • 图片
  • 图片
  • 图片
  • 图片
  • 图片
  • 图片
  • 图片
  • 图片
  • 图片
  • 图片
  • 图片
  • 图片
  • 图片
  • 图片
  • 图片
  • 图片
  • 图片
  • 图片
  • 图片
  • 图片
  • 图片
  • 图片
  • 图片
  • 图片
  • 图片
  • 图片
  • 图片
  • 图片
  • 上一个 下一个
    2024第八届金腾奖 私宅(独居)丨私宅(多人居)丨餐饮丨酒店丨办公丨商业丨公共丨公益丨人物丨NEW100 jintengAWARD(小金_金腾奖组委会) 广州市海珠区琶洲大道68号华新中心21楼
    金腾奖视频号 金腾奖小红书号 监制:刘译遥
    统筹:张俊媚
    运营:赖钰炼 曹凯月 刘芳棋 小金
    新媒体:王贝贝 严洁 张文一
    技术:黄天佑 丁德昌
    最终解释权归金腾奖主办方所有