Follow the light, bustling into the sequence
作品详情
  • Details of the work 标题横线
    头像或者logo
    图片 蒋美玲 橙设传媒特约推荐
    城市:温州
    公司: 霖社空间设计
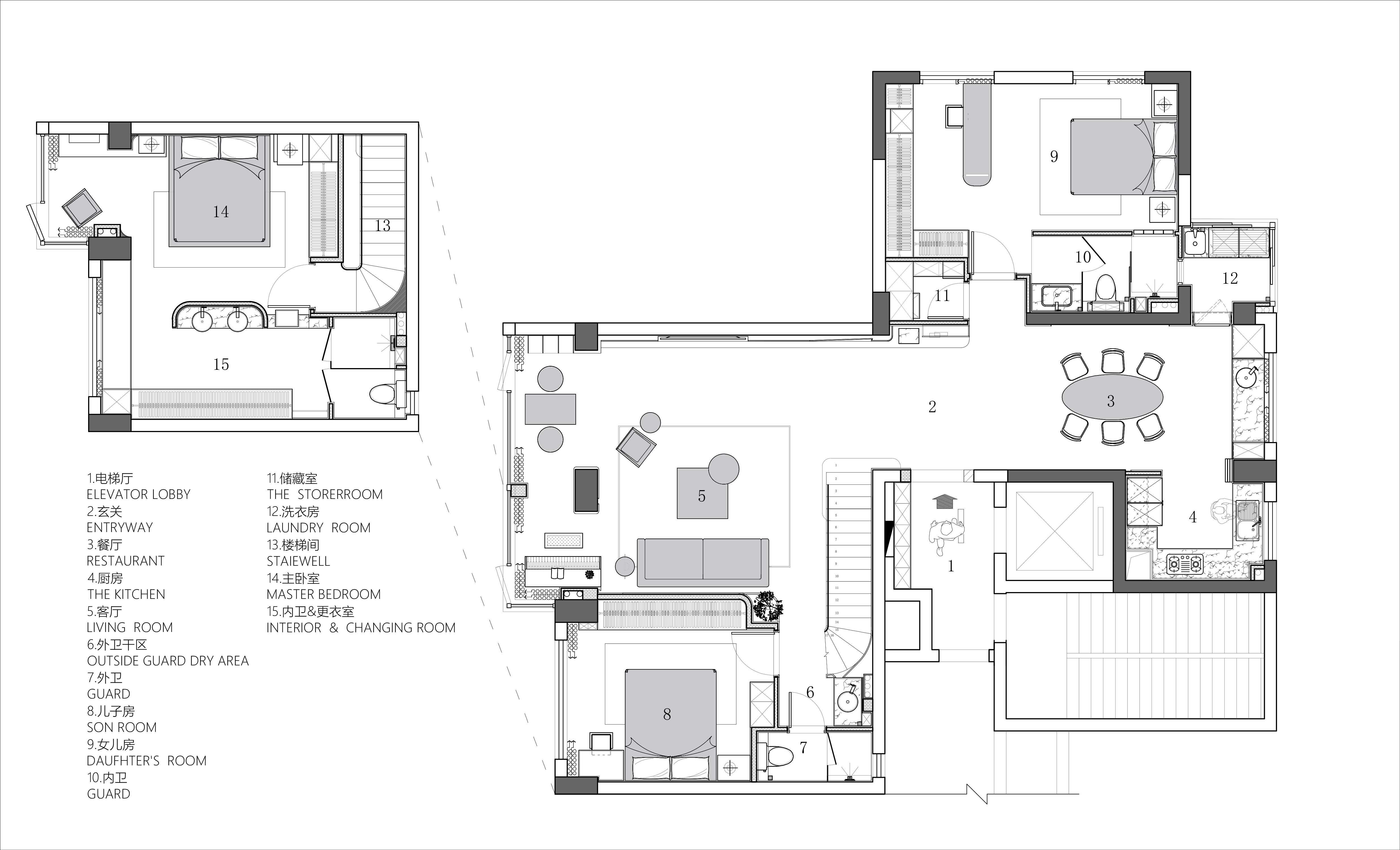
    参赛作品: 循光,繁华入序
    空间类型:别墅
    个人/公司简介:
    蒋美玲 L&S Desgdn 霖社·空间|设计|主理人 CIID 注册高级设计师 环境艺术设计专业毕业,后成立 L&S Desidn 霖社·空间|设计|,专注住宅空间 设计。曾赴西班牙进修建筑设计。 专业的学习及对建筑学习的背景让她具有理性思维,注重空间的逻辑性。强大的感性认 知与色彩的敏感度构建了她美学体系。对其而言,设计不止是设计,是对生活的感悟与 人生的体验而缔造出的结果,是一次又一次的自我超越。 学: 2016 年台湾游学 2017 年意大利游学 2017 年日本游学 2019 年西班牙建筑设计进修 2019 年摩洛哥古建筑深度游学 荣誉: 2018 年 4040(温州)设计杰出青年 2018 年 IDS 国际设计先锋榜 获“优胜奖” 2019 年 城市名宿设计创新大赛 获“最佳视觉奖” 2019 年 她设计奖 获“年度优秀空间设计奖” 2019 年 4040 设计“杰出青年” 2019 年 IDS 国际设计先锋榜 “铜奖” 2020 年乐清十佳家装设计大赛“十佳设计师” 2020 年 DESIGN FOCUS 国际居住空间设计 年度住宅公寓空间设计“优秀奖” 2021 年金住奖“十大居住空间设计师” 2021 年 4040 设计“杰出青年” 2023 年金住奖·十大居住空间设计师 设计理念:感悟生活 创造空间 设计改变生活方式
    设计说明 | Design Instruction
  • 01 繁花似锦 本案借设计之光,引艺术之彩,形影交互间勾勒生活的华实质感。 设计依循自然脉络,在生活与空间的交汇点上刻画光影路径,自由调度场域形态与意境,为这处私享空间搭建精致的复古主义框架,随时光流转,与自然共生。 客厅铺叙暗调氛围,以光束勾勒空间骨架,着明绘暗间穿透物质表面肌理,深刻感知光、线条、材质的和谐对冲,将每一处细节沉浸于对美学的细腻考量中。 沙发背景内嵌金属镂空装置,设计以雕刻手法将像素艺术进行可视化的趣味呈现,为质感复古空间增添现代潮流元素,实现多元灵感的碰撞与交融。 承重柱将客厅与阳台分隔过渡,设计采用大理石包裹柱体,通过“自然破碎”的形态处理,强化体块的存在感。蜿蜒的拼接处与弧形门洞柔和相辅,打造内建筑立体框架,以极致的艺术表现力塑造空间的平衡与游离。 循光在公共区蔓延游走,逐层打开一幅深邃的自然画框。电视机背景墙定制整块绿色大理石,层次纹理如碧波浮动,为公共区释放轻盈呼吸,沉浸于一场生态的质感体验。 临窗而席,沐光栖居,无形之韵在这方天地流转,释放无际生活纵深。灵活的陈设为居者搭建开放共享的公共空间,适时迎合未来生活方式的变化。 02 自然和鸣 公共区主脉络连接客餐厅始末,视野纵横间仿佛游走于不同的艺术世界。设计以光影画作为灵感,平衡整体暗调氛围,在色彩的张弛演绎中,释放更深刻的情绪感知。 餐边柜作为西厨的延伸,为厨房空间扩容,优化并丰富了烹饪内容。通过隐藏性的置物规划,实现更充分的收纳布局,释放空间功能的多样性。 楼梯作为上下立面的纽带,贴合建筑架构,以悬浮的形态逐层而上。每一级阶梯都是光影的舞台,通过跨立面的沟通感受每一幕生动流转。 楼梯处模拟了原生态栖居环境,观细微之朗华,塑一方灵气隽永的天地,恍若林深见鹿,聆听自然和鸣。原始生命力与生活质感于此形成紧密联动,焕新整个场域。 视野末端以弧形婉转落幕,在丰盈敞阔的实景中沉浸无限的精神世界,方寸间揽尽芳华。 03 艺术华彩 设计为家庭成员设置不同的卧室主题,贴合居者内心的真实世界。二楼进入主卧,目之所及演绎另一番美学表达。设计以留白转译空间的现代基因,以恰当的尺度布局内建筑体态,融汇丰富的空间层次。 弧形墙体似隔非断,形成若即若离的适宜尺度,平衡寝居、衣帽间、盥洗室的关系。墙体正反面分别是电视投影与洗手台,不仅满足实用需求与收纳功能,同时增添空间的流动感。 墙面铺贴花型马赛克,复古氛围中尊享低调质感,使优雅日常再度实现升级。晚霞灿然时,浪漫光影透入室内,自然与艺术达成共鸣,释放生活华彩。
  • 图片
  • 图片
  • 图片
  • 图片
  • 图片
  • 图片
  • 图片
  • 图片
  • 图片
  • 图片
  • 图片
  • 图片
  • 图片
  • 图片
  • 图片
  • 图片
  • 图片
  • 图片
  • 图片
  • 图片
  • 图片
  • 图片
  • 图片
  • 图片
  • 图片
  • 图片
  • 图片
  • 图片
  • 图片
  • 图片
  • 图片
  • 图片
  • 图片
  • 图片
  • 图片
  • 图片
  • 图片
  • 图片
  • 图片
  • 图片
  • 图片
  • 图片
  • 图片
  • 图片
  • 图片
  • 上一个 下一个
    2024第八届金腾奖 私宅(独居)丨私宅(多人居)丨餐饮丨酒店丨办公丨商业丨公共丨公益丨人物丨NEW100 jintengAWARD(小金_金腾奖组委会) 广州市海珠区琶洲大道68号华新中心21楼
    金腾奖视频号 金腾奖小红书号 监制:刘译遥
    统筹:张俊媚
    运营:赖钰炼 曹凯月 刘芳棋 小金
    新媒体:王贝贝 严洁 张文一
    技术:黄天佑 丁德昌
    最终解释权归金腾奖主办方所有