Pure guidance
作品详情
  • Details of the work 标题横线
    头像或者logo
    图片 施强虹 橙设传媒特约推荐
    城市:温州
    公司: 康居装饰设计
    参赛作品: 纯粹的指引
    空间类型:公寓(150㎡以下)
    个人/公司简介:
    施 强 虹 康居装饰设计 设计总监 2023 年“40UNDER 40“(温州)当代设计杰出青年 2023 年 金腾奖 JTA 标杆设计 NEW100 2022 年 金住奖 中国(温州)十大居住空间设计师 2020 年 ARTE MUNDI 美学设计大赛-人文设计师奖 2019 年 最美雅奢空间设计奖-年度优秀设计奖 2019 年 第七届“ID+G”金创意奖-家居空间奖 2019 年第 13 届大金内装设计大赛-浙江区新锐奖 2018 年中国建筑装饰行业“艾舍奖”-十佳全案设计师 2018 年 华鼎奖住宅公寓空间-银奖 2017 年 中国室内设计百强新锐设计师 2017 荣 华鼎奖住宅公寓空间-银奖 2016 年 中国营造空间设计峰会-创新设计成就奖
    设计说明 | Design Instruction
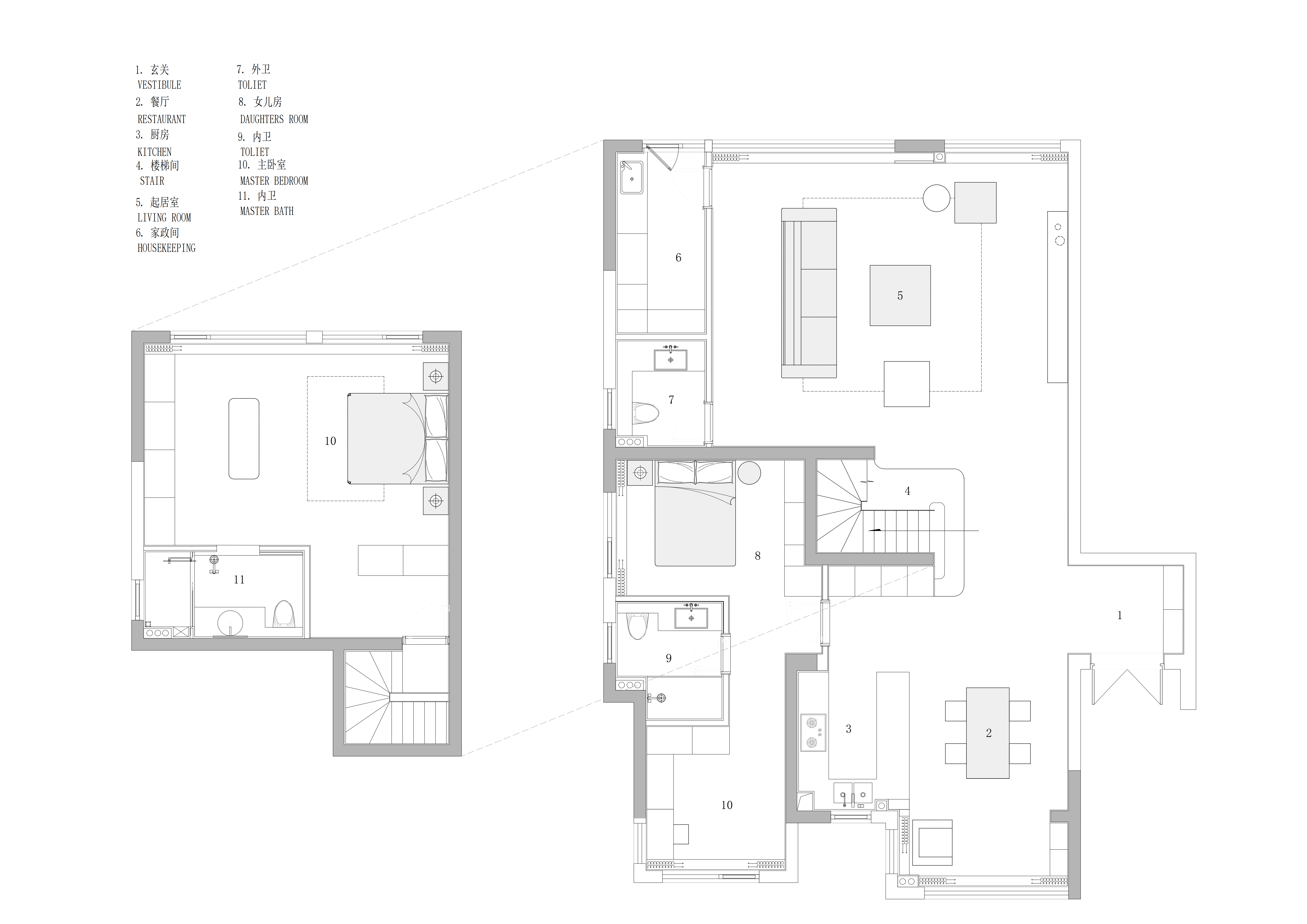
  • 空间纵深的体验感来自素色的搭配,低饱和度的透色自带温柔的场域氛围,且具有延展视觉的独特效果,与木色的点缀相配,融合为物与物之间的细腻关联。步入其中,以人为中心的空间发散,在直行线条的引领下,传递自然且舒适的生活状态。 “清逸起于浮世,纷扰止于内心。”黑色靠椅,盘虬盆景,空间看似不起眼的物件,搁置一方,却是锦上添花的妙笔。柔光自朦胧的帘布倾泻入室,在光的晕染下,大面积的天花留白成为空间的反光板,消融场域边界,自此,场景与物象达成和谐的平衡。舒展的情绪如湖上涟漪,层层透析。 介于空间自身的局限,难以联立为并行的整体,便决定打通客厅后的套房,改为家政区,将内卫扩为外卫,使之成为一体式的格局,以贯穿的空间构造建立内部新的秩序。而地板的铺设也延续此理念,通铺的木板包纳整个地板空间,并以顺延的状态贴合外卫的墙面,达到一气呵成的效果。 径深的立体观感,将视线引至末端。花束的吊灯与长条餐桌拢为整体,容纳色香味俱全的美味。对立面则单独设计厨房与岛台,避免烹饪时拥挤的行径。合理划分功能的分区的同时,形成开阔明朗的洄游动线。 空间的转折处,不仅负担上与下的连接功能,同时包藏着艺术的创造。优美的曲线作为空间少有的圆润线条,颇具错落的自由韵律,在几何场景中,出其不意的视差塑造,无不勾勒出独特的灵动之美。 墙壁以镂空的手法,借光的透射,打造楼梯内部的氛围感。作为承接空间的枢纽,在楼梯设计时,保持结构完整的同时,减少楼梯置物的冗余,才能最大程度贴合空间开阔的属性。于是,漫延的光成为被捕获的切口,映衬出场景自然的光影结构。 主卧整体以大空间为主,传统的电视机被省去,代之纯白的储物柜台。灰与白的糅合,纳入纯粹的理念,空间无多余的装饰,素雅的风格自浑然天成的陈列中渗出,而大片的背景留白,将简约发挥到极致。此时,生活内在的充盈,恰好作日后的氛围填补。 在女儿房的布景中得到充分体现,同时搭配童趣感的玩偶及配件,以自然活泼的配色打造纯真的梦幻世界。
  • 图片
  • 图片
  • 图片
  • 图片
  • 图片
  • 图片
  • 图片
  • 图片
  • 图片
  • 图片
  • 图片
  • 图片
  • 图片
  • 图片
  • 图片
  • 图片
  • 图片
  • 图片
  • 图片
  • 图片
  • 图片
  • 图片
  • 图片
  • 图片
  • 图片
  • 图片
  • 图片
  • 图片
  • 图片
  • 图片
  • 图片
  • 图片
  • 图片
  • 图片
  • 图片
  • 图片
  • 图片
  • 图片
  • 图片
  • 图片
  • 图片
  • 上一个 下一个
    2024第八届金腾奖 私宅(独居)丨私宅(多人居)丨餐饮丨酒店丨办公丨商业丨公共丨公益丨人物丨NEW100 jintengAWARD(小金_金腾奖组委会) 广州市海珠区琶洲大道68号华新中心21楼
    金腾奖视频号 金腾奖小红书号 监制:刘译遥
    统筹:张俊媚
    运营:赖钰炼 曹凯月 刘芳棋 小金
    新媒体:王贝贝 严洁 张文一
    技术:黄天佑 丁德昌
    最终解释权归金腾奖主办方所有