Above the clouds, floating light like a dream
作品详情
  • Details of the work 标题横线
    头像或者logo
    图片 施强虹 橙设传媒特约推荐
    城市:温州
    公司: 康居装饰设计
    参赛作品: 云层之上,浮光若梦
    空间类型:别墅
    个人/公司简介:
    施 强 虹 康居装饰设计 设计总监 2023 年“40UNDER 40“(温州)当代设计杰出青年 2023 年 金腾奖 JTA 标杆设计 NEW100 2022 年 金住奖 中国(温州)十大居住空间设计师 2020 年 ARTE MUNDI 美学设计大赛-人文设计师奖 2019 年 最美雅奢空间设计奖-年度优秀设计奖 2019 年 第七届“ID+G”金创意奖-家居空间奖 2019 年第 13 届大金内装设计大赛-浙江区新锐奖 2018 年中国建筑装饰行业“艾舍奖”-十佳全案设计师 2018 年 华鼎奖住宅公寓空间-银奖 2017 年 中国室内设计百强新锐设计师 2017 荣 华鼎奖住宅公寓空间-银奖 2016 年 中国营造空间设计峰会-创新设计成就奖
    设计说明 | Design Instruction
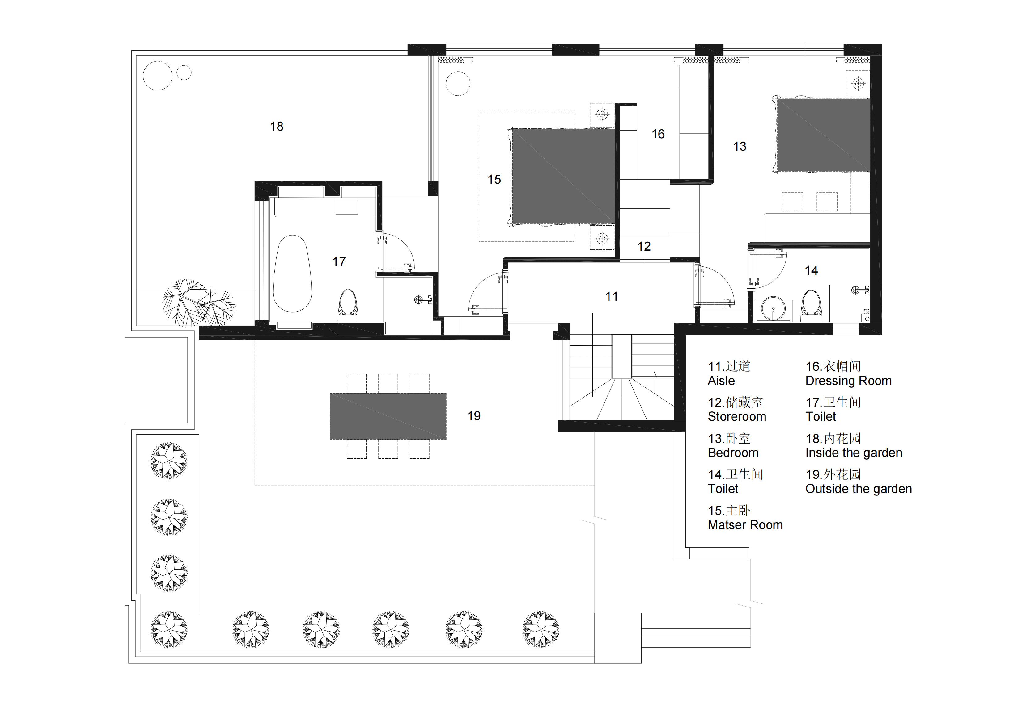
  • 01 感官印象 当事物突破表面局限,用建筑思维梳理结构框架,光与暗、静与动,触发层次之间的联结,居家灵感应运而生。 设计以细腻尺度述说着人与自然的交互,以光为介质凝聚精神场的纯粹感知,解构生活律动之息,唤醒形神归处。 玄关以原木作结构延伸,搭建一个自然包裹的骨架,在暖光营造中,为入门牵引一场回家的松弛感。 设计在功能上充分考虑外出衣物、鞋子、杂物的收纳,关照生活的每一处细节体验,举动间萦绕器物之韵,功能与美学平衡衔接。 客厅作为家庭成员的主要活动区,以低饱和色系融入整体感官,退让多余修饰,通过更随性的方式规划家具展陈,以此释放空间的自由度。柔光通透入里,虽简尤丰,为这处现代简约的场域塑造更多样的可能性。 客厅背景拼接局部木饰面,通过折转、内凹,打造出一隅自然天地。绿植静立,在光合作用中延展生命力的脉络,焕活一室生机。 两层结构同时塑造上下界面关系,将公共区与私人区秩序分布,合理调度生活动线。整体风格以留白为底,铺叙木色肌理,静享自然治愈。 电视机背景墙铺展大面积留白,嵌套黑色几何结构,以序列感的线条语言刻画极简艺术。黑白之间,明暗至简,感知内心深处的自我世界。 02 剧场演绎 立于自由通透的场域,赋予生活无限视角,塑造不同的情景剧场。从餐厅游走于客厅,人与人的交流界限被逐层打破,建立起一个强有力的纽带,串联空间始末,将生活本味绽放于各个角落。 开放式餐厅位于公共区的动线交织点,与各区域模块互动游离。圆桌凝聚家庭的温情,述说触手可及的日常。空间的开放式联通,让设计不再单一。餐边柜与客厅背景墙拼接融合,公共框架形成统一的整体。设计将餐厨开放联结,打通了用餐与烹饪之间的互动,为美食赋予更生动的寓意,充满期待与惊喜。 03 一隅安室 楼梯联通上下立面,由原木体块拼接,蜿蜒而上逐层生长,仿佛一处天然的装置,释放建筑体的跃动。 私人区根据不同风格的形式展现,以柔软的内核呈现居者更加细腻的生活方式。女儿房一改公共区素雅之貌,点缀活力的艺术色彩,搭配多元结构造型,述说灵动气息。 客卧保留简约修饰,色调搭配清丽简雅。自然光作为叙事的脉络之一,幻化时间的印记,伴随柔软触感,浮光入梦。 最真实的感知,往往存在于简约的形制中,深刻贴合着人的内心。主卧渲染润白基调,联结原木的自然属性,造清雅之意。设计基于生活合理调度功能布局,将衣帽间设置于床位后方,营造精致的生活仪式感。
  • 图片
  • 图片
  • 图片
  • 图片
  • 图片
  • 图片
  • 图片
  • 图片
  • 图片
  • 图片
  • 图片
  • 图片
  • 图片
  • 图片
  • 图片
  • 图片
  • 图片
  • 图片
  • 图片
  • 图片
  • 图片
  • 图片
  • 图片
  • 图片
  • 图片
  • 图片
  • 图片
  • 图片
  • 图片
  • 图片
  • 图片
  • 图片
  • 图片
  • 图片
  • 图片
  • 图片
  • 图片
  • 图片
  • 图片
  • 图片
  • 图片
  • 图片
  • 图片
  • 图片
  • 图片
  • 图片
  • 图片
  • 图片
  • 图片
  • 图片
  • 图片
  • 图片
  • 图片
  • 图片
  • 图片
  • 图片
  • 图片
  • 图片
  • 图片
  • 上一个 下一个
    2024第八届金腾奖 私宅(独居)丨私宅(多人居)丨餐饮丨酒店丨办公丨商业丨公共丨公益丨人物丨NEW100 jintengAWARD(小金_金腾奖组委会) 广州市海珠区琶洲大道68号华新中心21楼
    金腾奖视频号 金腾奖小红书号 监制:刘译遥
    统筹:张俊媚
    运营:赖钰炼 曹凯月 刘芳棋 小金
    新媒体:王贝贝 严洁 张文一
    技术:黄天佑 丁德昌
    最终解释权归金腾奖主办方所有